EasyManua.ls Logo

Fujitsu FGLair - Page 23

Fujitsu FGLair
58 pages
Print Icon
To Next Page IconTo Next Page
To Next Page IconTo Next Page
To Previous Page IconTo Previous Page
To Previous Page IconTo Previous Page
Loading...
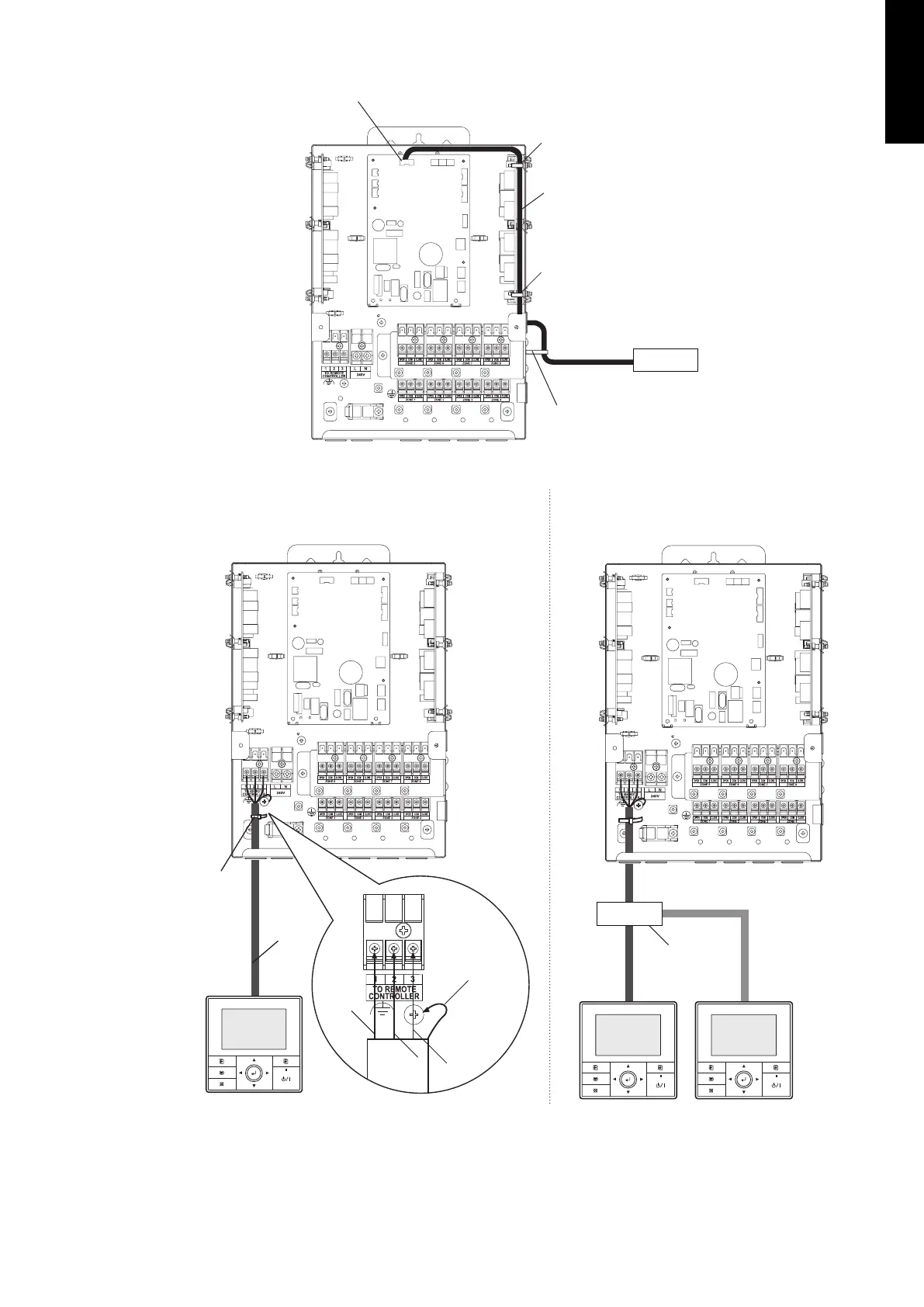
2) UTY-CDPXZD
1. Connecting with indoor unit:
(accessory)
Cable tie (small)
(accessory)
Cable tie (small)
(accessory)
Cable tie (small)
Indoor unit
Zone control interface
connecting cable
CN6
2. Connecting with remote controller:
Up to 2 more controllers can be installed.
When you install 2 remote controllers, use junction box
Junction box
(locally purchased)
Cable tie
(accessory)
(small)
Remote
cable
controller
Red
White
Black
Functional
earth (ground)
wire
- 19 -
ZONE CONTROL
SYSTEM

Related product manuals