EasyManua.ls Logo

Fujitsu WSYA 080 DA - Page 50

Fujitsu WSYA 080 DA
60 pages
Print Icon
To Next Page IconTo Next Page
To Next Page IconTo Next Page
To Previous Page IconTo Previous Page
To Previous Page IconTo Previous Page
Loading...
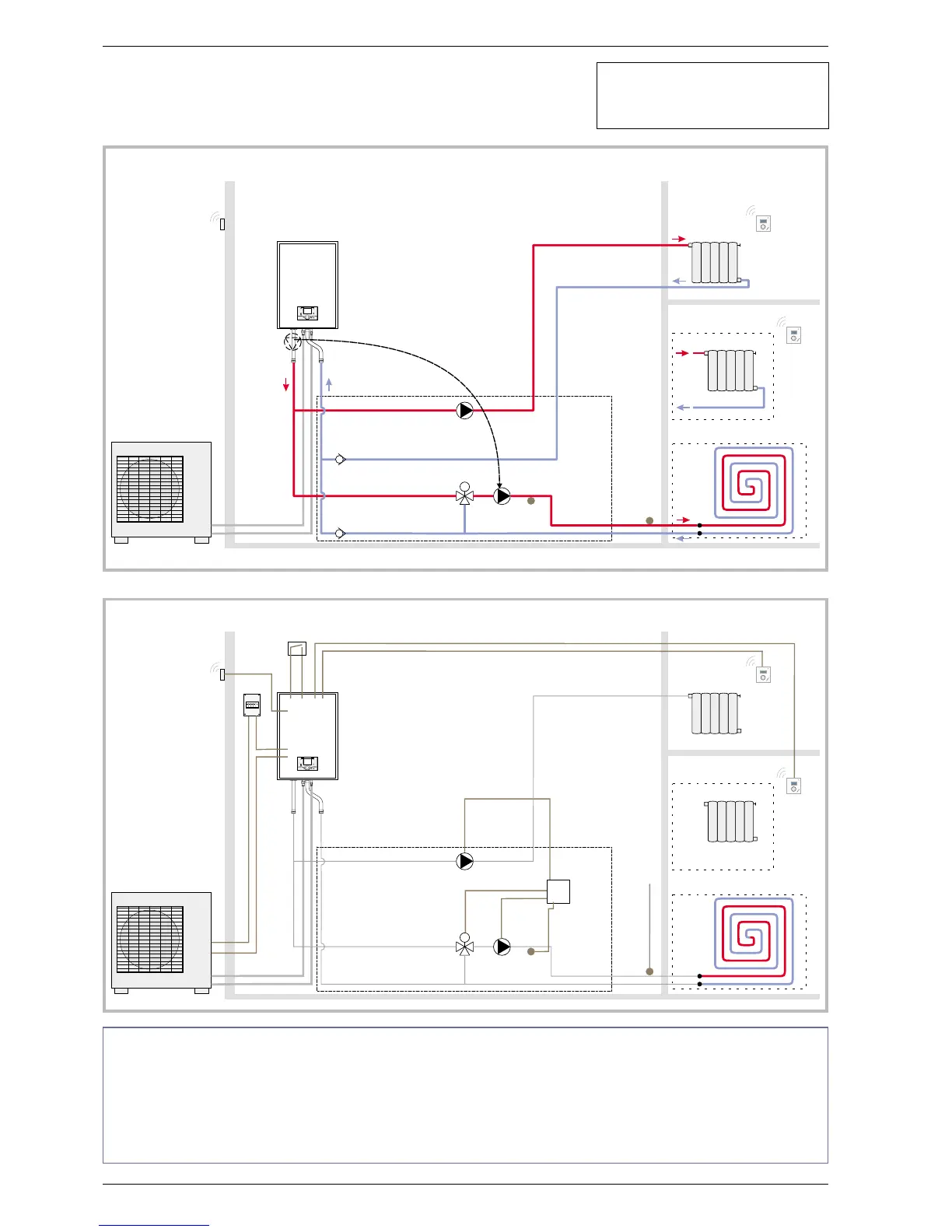
50 Installation and operating manual “1350-EN”
Heat pump, Split, single service
Configuration 3 :
2 heating circuits
Circuit 2
Circuit 1
CC2
M
VM1
CC1
SA2
SA1
K2c
SDp1
SE
R
SP
CAR
CAR
Circuit 2
Circuit 1
CC2
M
VM1
CC1
SA2
SA1
K2c
SDp1
SE
R
SP
1
2
3
4
5
11
12
13
14
5
6
AVS
20
Legend
CAR - Non-return valve
CC1 - Heating circulation pump, Circuit 1 (Remote heat
pump circulation pump)
CC2 - Heating circulation pump, Circuit 2
K2c - 2nd circuit kit
R - Radiators (or fan convectors)
SA1 - Room thermostat, Circuit 1 (option)
SA2 - Room thermostat, Circuit 2 (option)
SE - Outdoor sensor
SDp1 - Flow sensor, Circuit 1
SP - Heated floor thermal safety fuse
VM1 - Mixer valve, Circuit 1
Overview of all the electrical connections
Overall hydraulic layout
F
See detailed instructions
on Page 47

Table of Contents

Related product manuals