EasyManua.ls Logo

FUNAI D8A-A4110DB - Block Diagrams

FUNAI D8A-A4110DB
75 pages
Print Icon
To Next Page IconTo Next Page
To Next Page IconTo Next Page
To Previous Page IconTo Previous Page
To Previous Page IconTo Previous Page
Loading...
1-11-1
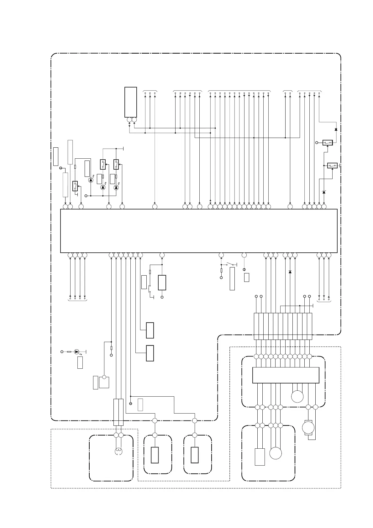
BLOCK DIAGRAMS <VCR SECTION>
Servo / System Control Block Diagram
E8G00BLS
MLOADING
MOTOR
CAPSTAN MOTOR
CONTROL
HEAD
CN504
ACE HEAD ASSEMBLY
MAIN CBA
KEY- 1
POWER-LED
ST-S
T-REEL
CTL(+)
RESET
REC-SAF-SW
CTL(-)
D-V-SYNC
D-REC-H
RF-SW
H-A-SW
C-ROTA
END-S
(DECK ASSEMBLY)
T-REEL
Q515
RESET
Q506
S-REEL
TIMER+5V
S-REEL
PS502
TP502
KEY- 2
IIC-BUS SDA
IIC-BUS SDA
IIC-BUS SCL
AUDIO-MUTE-H
IIC-BUS SDA
IIC-BUS SCL
Hi-Fi-H-SW
A-MODE
OUTPUT-SELECT
AUDIO-MUTE-H
Hi-Fi-H-SW
A-MODE
H-A-COMP
V-ENV
P-ON-H
C-POW-SW
P-ON-H
C-POW-SW
P-DOWN-H
P-DOWN-H
OUTPUT-SELECT
SW506
TO VIDEO
BLOCK DIAGRAM
TO Hi-Fi AUDIO
BLOCK DIAGRAM
TO AUDIO
BLOCK DIAGRAM
SDA
SCL
IC502 (MEMORY)
IIC-BUS SCL
D-V-SYNC
D-REC-H
RF-SW
H-A-SW
INPUT-SELECT
C-ROTA
IIC-BUS SDA
H-A-COMP
V-ENV
DVD-POWER
C-SYNC
INPUT-SELECT
FRONT-AV
FRONT-AV
DVD-POWER
C-SYNC
OUTPUT-SELECT
IIC-BUS SCL
LD-SW
AL+5V
AL+5V
SW507
LD-SW
AL+5V
D555
S-LED
TO POWER
SUPPLY BLOCK
DIAGRAM
TP501
Q507
SENS-INH
IC501
(SERVO/SYSTEM CONTROL)
LINE-MUTE
LINE-MUTE
5
6
SENSOR CBA
SENSOR CBA
END-S
ST-S
Q504
Q503
REC-SAFETY
END-S
CTL
TP503
CTL
SW511 RESET
TO DVD SYSTEM
CONTROL /SERVO
BLOCK DIAGRAM
<DVD SECTION>
TO DVD VIDEO/
AUDIO BLOCK
DIAGRAM
<DVD SECTION>
CN502
C-FG
C-CONT
D-PFG
C-F/R
LM-
FWD/REV
D-CONT
AL+20.5V/+12V
AL+12V(2)
P-ON+15V
P-ON+5V
58
20
41
82
6
17
16
13
15
18
33
71
72
KEY SWITCH
KEY SWITCH
CYLINDER ASSEMBLY
DRUM
MOTOR
PG
SENSOR
M
OUTPUT-SELECT
OUTPUT-SELECT
M
CAPSTAN
MOTOR
MOTOR
DRIVE
CIRCUIT
REMOTE
REMOTE-VIDEO
TO DVD SYSTEM
CONTROL /SERVO
BLOCK DIAGRAM
<DVD SECTION>
DRV-DATA
DRV-STB
DRV-CLK
DISPLAY-DATA
DISPLAY-STB
DISPLAY-CLK
68
69
70
Q508
Q509
DVD-LED
VCR-LED
D503
VCR
D502
DVD
AL+5V
D505
POWER
1 CTL(-)
2 CTL(+)
1
AL+20.5V/+12V
2 P-ON+5V
3 C-FG
4 C-F/R
5 C-CONT
6 GND
7
LM-FWD/REV
8 D-CONT
9 D-PFG
10 GND
11 AL+12V(2)
12 P-ON+15V
87
78
76
81
77
90
66
67
32
28
86
19
83
14
30
29
8
7
23
97
31
34
79
80
4
10
94
95
9
RGB-THROUGH
RGB-THROUGH
27
21
8POUT-1
JK1-8P-OUT
59
8POUT-2
60
SC2-IN
SC2-IN
1
DVD-8PIN-IN
DVD-8PIN-IN
42
Q513
Q514
AL+12V
www.freeservicemanuals.info
26/5/2013
World of free manuals

Other manuals for FUNAI D8A-A4110DB

Related product manuals