EasyManua.ls Logo

FUNAI DDVR-6830 - Page 30

FUNAI DDVR-6830
75 pages
Print Icon
To Next Page IconTo Next Page
To Next Page IconTo Next Page
To Previous Page IconTo Previous Page
To Previous Page IconTo Previous Page
Loading...
1-11-8
H9903BLVD
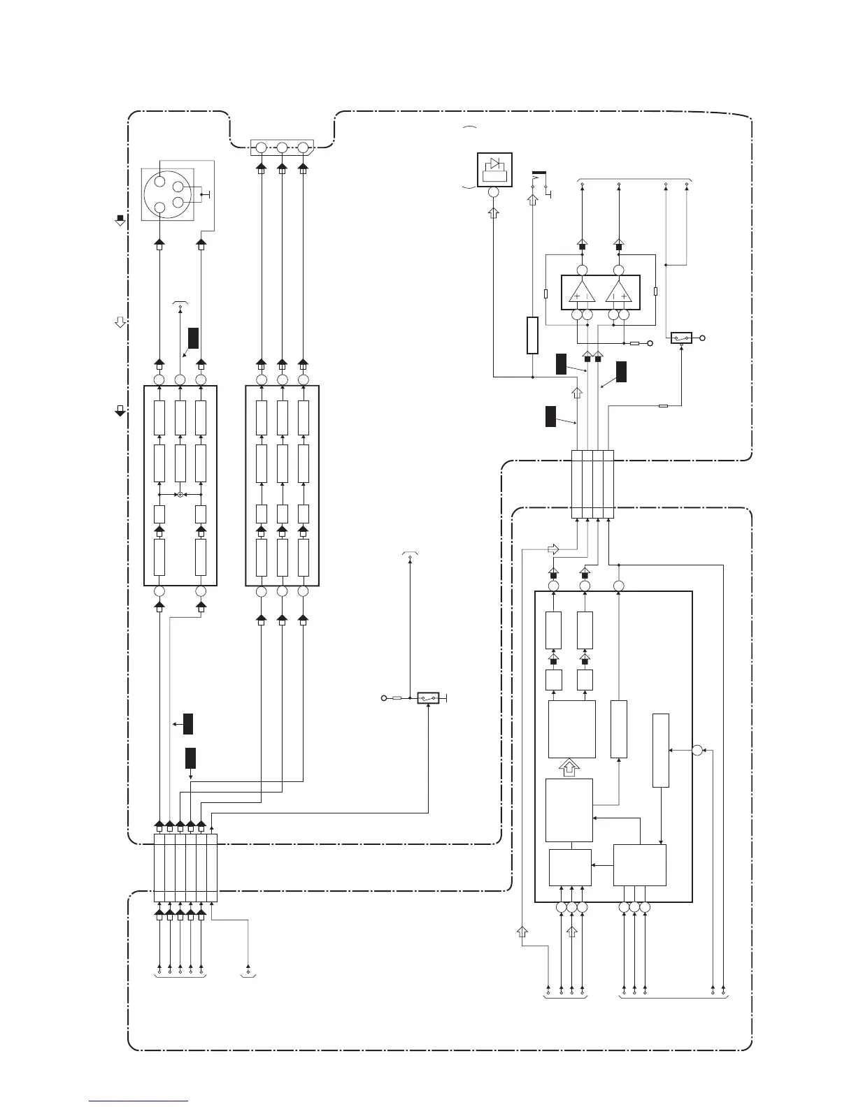
DVD Video / Audio Block Diagram
IC601 (AUDIO DAC)
15
14
16
BUFFER
Q1351
IC1201
AUDIO+5V
(AMP)
CN601 CN1601
13 13
DVD-AUDIO(L)
15 15
DVD-AUDIO(R)
14 14
DVD-AUDIO(R)-MUTE
7
6
8
4
3
2
5
FROM
DVD
SYSTEM
CONTROL
/SERVO
BLOCK
DIAGRAM
FROM
DIGITAL
SIGNAL
PROCESS
BLOCK
DIAGRAM
SERIAL
PORT
SERIAL
CONTROL
4X/8X
OVERSAMPLING
DIGITAL FILTER
/FUNCTION
CONTROLLER
ENHANCED
MULTI-LEVEL
DELTA-SIGMA
MODULATOR
DAC
LPF+AMP
L-CH
R-CH
LPF+AMP
DAC
ZERO DETECT
SYSTEM CLOCK
7
6
2
1
3
DVD-
AUDIO(L)-OUT
AUDIO(L)-MUTE
DVD-
AUDIO(R)-OUT
AUDIO(R)-MUTE
PCM-BCK
SPDIF
PCM-DATA
PCM-LRCLK
ADAC-MD
ADAC-MC
ADAC-ML
PCM-SCLK
MAIN CBADVD MAIN CBA UNIT
DVD AUDIO SIGNALDATA(AUDIO) SIGNAL
18
18
SPDIF
AUDIO-MUTE
Q1204
WF9
5
WF7
WF8
CN601
11VIDEO-Y(I)
10 10VIDEO-C
44VIDEO-Pr/Cr
88VIDEO-Y(I/P)
66
VIDEO-Pb/Cb
VIDEO-Y(I)
VIDEO-C
VIDEO-Pr/Cr
VIDEO-Y(I/P)
33ASPECT
FROM DIGITAL
SIGNAL PROCESS
BLOCK DIAGRAM
FROM DVD SYSTEM
CONTROL/SERVO
BLOCK DIAGRAM
DVD VIDEO SIGNAL
VIDEO-Pb/Cb
ASPECT
TO Hi-Fi AUDIO
BLOCK DIAGRAM
<VCR SECTION>
TO SERVO/SYSTEM
CONTROL BLOCK
DIAGRAM
<VCR SECTION>
15
7
11
JK101
DVD-R
DVD-B
DVD-G
FIBER OPTIC
TRANS MODULE
3
IC1204
JK1401
S-VIDEO
OUT
3 4
2
1
YC
DVD-VIDEO
TO VIDEO
BLOCK DIAGRAM
<VCR SECTION>
IC102 (VIDEO DRIVER)
154dB AMP 2dB AMP
LPF DRIVER
10
4dB AMP 2dB AMP
LPF DRIVER
11
4dB AMP 2dB AMP
LPF DRIVER
5
4dB AMP 2dB AMP
LPF DRIVER
6
8dB AMP
DRIVER
4dB AMP 2dB AMP
LPF DRIVER
3
1 7
8
IC1403 (VIDEO DRIVER)
-6dB
Q1502
+5V
CN1601
WF4
WF5
WF6
1
6
DVD-8PIN-IN
DIGITAL
AUDIO OUT
JK1202
DVD-P-ON+3.3V

Related product manuals