EasyManua.ls Logo

FUNAI LF320FX4F - [Type B]

FUNAI LF320FX4F
83 pages
Print Icon
To Next Page IconTo Next Page
To Next Page IconTo Next Page
To Previous Page IconTo Previous Page
To Previous Page IconTo Previous Page
Loading...
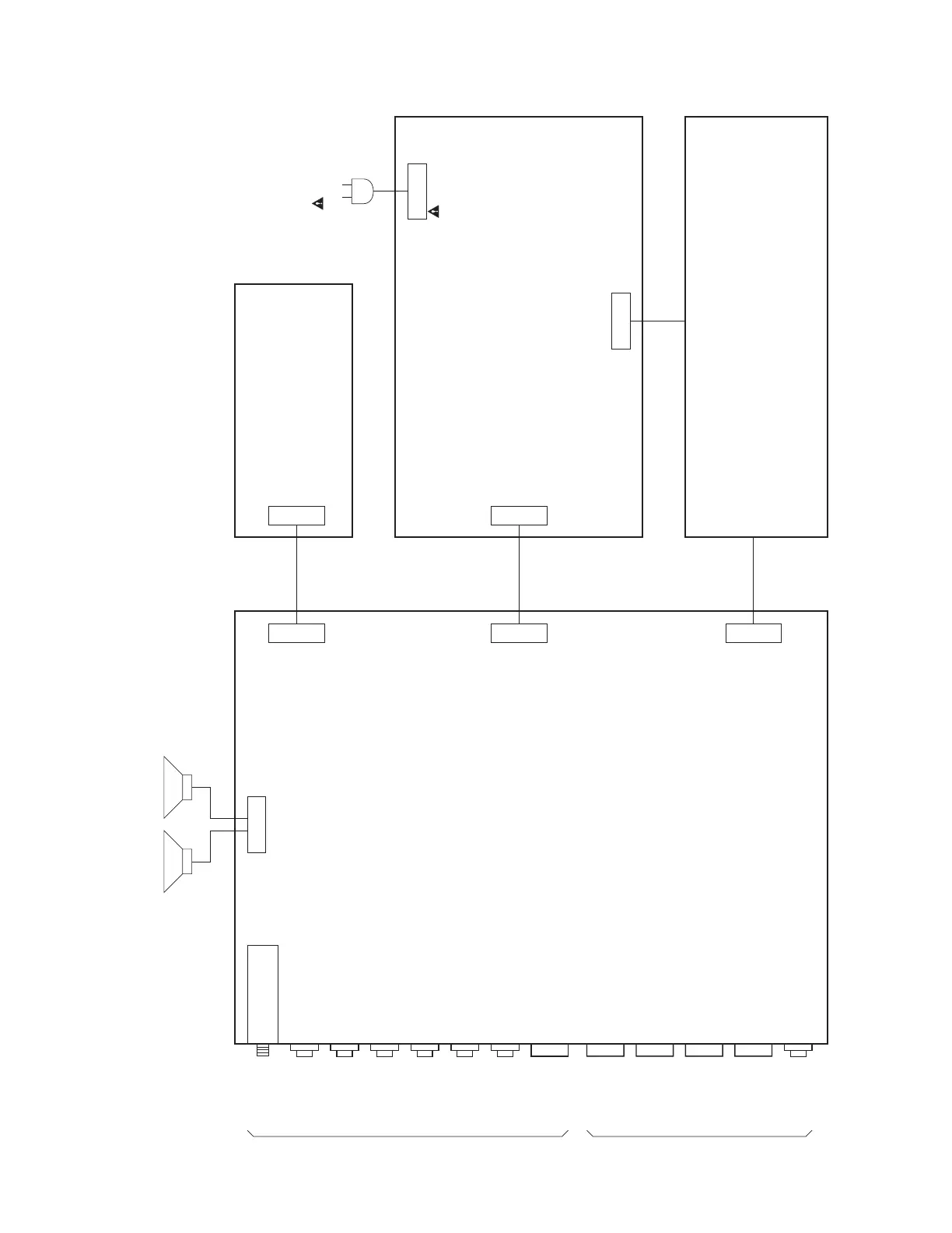
FL13.8BWI11-2
1
23
CN501
1
23
CN3701
1
30
CN3006
9
1
CN4052
1
9
CN3101
12
CN1001
BW
CN601
POWER SUPPLY CBA
FUNCTION CBA UNIT
LCD PANEL ASSEMBLY
AC CORD
CL3701
CL3006
CL3101
DIGITAL MAIN CBA UNIT
14
CN3801
SP3801
SPEAKER
L-CH
SP3802
SPEAKER
R-CH
CL3801
TUNER UNIT
COMPONENT
-Y/VIDEO-IN
COMPONENT
-Pb-IN
COMPONENT
-Pr-IN
AUDIO(L)-IN
AUDIO(R)-IN
REAR
DIGITAL
AUDIO-OUT
(COAXIAL)
HDMI-
CONNECTOR-1
HDMI-
CONNECTOR-2
HDMI-
CONNECTOR-3
PC-RGB-IN
USB JACK
SIDE
HEADPHONE
JACK
[TYPE B]

Related product manuals