EasyManua.ls Logo

FUNAI LH8-M40BB - Page 30

FUNAI LH8-M40BB
70 pages
Print Icon
To Next Page IconTo Next Page
To Next Page IconTo Next Page
To Previous Page IconTo Previous Page
To Previous Page IconTo Previous Page
Loading...
9-3
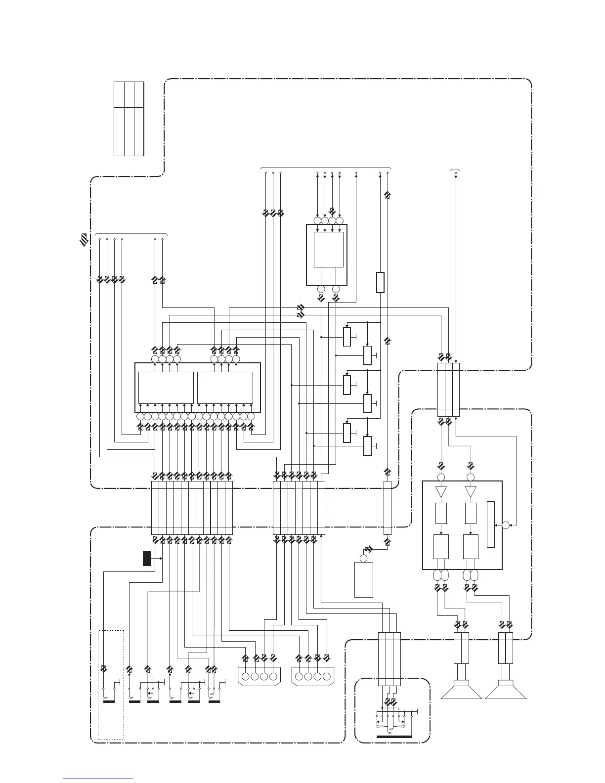
Audio Block Diagram
A03P0BLA
AUDIO SIGNAL
CN3704CN401
CN3704
CN3703
CN401
AUDIO(L)22 22
SPDIF11
AUDIO(R)21 21
COM-AUDIO(L)19 19
PC-AUDIO(L)25 25
PC-AUDIO(R)24 24
RGB-AUDIO(L)-IN1
10 10
RGB-AUDIO(R)-IN1
99
RGB-AUDIO(L)-IN2
16 16
RGB-AUDIO(R)-IN2
15 15
COM-AUDIO(R)
18 18
PC-AUDIO-IN
JK206
COMPONENT
AUDIO(L)-IN
COMPONENT
AUDIO(R)-IN
JK205
JK204
IC3802
(AUDIO SELECTOR)
ADC-OUT(L)
AUDIO(L)-2
AUDIO(L)-1
AUDIO(L)-0
ADC-OUT(R)
AUDIO(R)-2
AUDIO(R)-1
AUDIO(R)-0
MCLK
SIF(+)
AUDIO-MUTE2
HEADPHONE-DET
AUDIO-MUTE
SDATA0
BCK
LRCK
AUDIO(L)
-IN
DIGITAL
AUDIO-OUT
(COAXIAL)
AUDIO(R)
-IN
JK212
JK207
JK213
52
50
17
18
48
44
51
49
47
43
AUDIO
SELECTOR
(L-CH)
AUDIO
SELECTOR
(R-CH)
26
24
22
46
45
21
23
25
8
11
6
7
19
20
JK301
1
3RGB-AUDIO(L)-OUT1
RGB-AUDIO(R)-OUT1
6
RGB-AUDIO(L)-IN1
RGB-AUDIO(R)-IN1
JK302
1
3
RGB-AUDIO(L)-OUT2
RGB-AUDIO(R)-OUT2
6
RGB-AUDIO(L)-IN2
RGB-AUDIO(R)-IN2
POWER SUPPLY CBA
JACK CBA
TO DIGITALSIGNAL
PROCESS
BLOCK DIAGRAM
TO DIGITALSIGNAL PROCESS
BLOCK DIAGRAM
DIGITAL MAIN CBA UNIT
SIF-OUT
TU1
(TUNER UNIT)
14
IC3801
(AUDIO D/A CONVERTER)
D/A
CONVERTER
(L-CH)
(R-CH)
15
14
5
6
8
7
SIF(+)26 26
HEADPHONE(L)
33
HEADPHONE(R)
44
HEADPHONE-DET
22
CN3703CN403
AMP(L)-OUT10 10
AMP(R)-OUT88
AUDIO-MUTE12 12
TO SYSTEM CONTROL
BLOCK DIAGRAM
WF7
RGB-AUDIO(L)-OUT1
66
RGB-AUDIO(R)-OUT1
77
RGB-AUDIO(L)-OUT2
12 12
CL202BCL201A
HEADPHONE-DET
44
HEADPHONE(R)
33
HEADPHONE(L)
22
RGB-AUDIO(R)-OUT2
13 13
20
IC803 (AUDIO AMP)
1
44
9,10
13,14
35,36
31,32
MUTE CONTROL
CN802CL802
SP802
SPEAKER
L-CH
CN801
SP(R)- 1
CL801
SP801
SPEAKER
R-CH
PWM1
PWM2
DRIVE1
SP(R)+ 2
SP(L)- 1
SP(L)+ 2
DRIVE2
JK208
HEADPHONE
JACK
SPDIF
Q3813
Q3802, Q3809, Q3810
MUTE
DRIVE
Q3812
MUTE
Q3805
MUTE
Q3806
MUTE
Q3808
MUTE
Q3807
MUTE
A
CN403
2
2
Comparison Chart of
Models and Marks
Model Mark
LH8-M40BB A
B
LT8-M40BB

Related product manuals