EasyManua.ls Logo

Furuno IC-307 - Page 32

Furuno IC-307
34 pages
Print Icon
To Next Page IconTo Next Page
To Next Page IconTo Next Page
To Previous Page IconTo Previous Page
To Previous Page IconTo Previous Page
Loading...
2
43
A
1
B
C
MASS
名称
NAME
TITLE
kg
DRAWN
CHECKED
APPROVED
SCALE
DWG No.
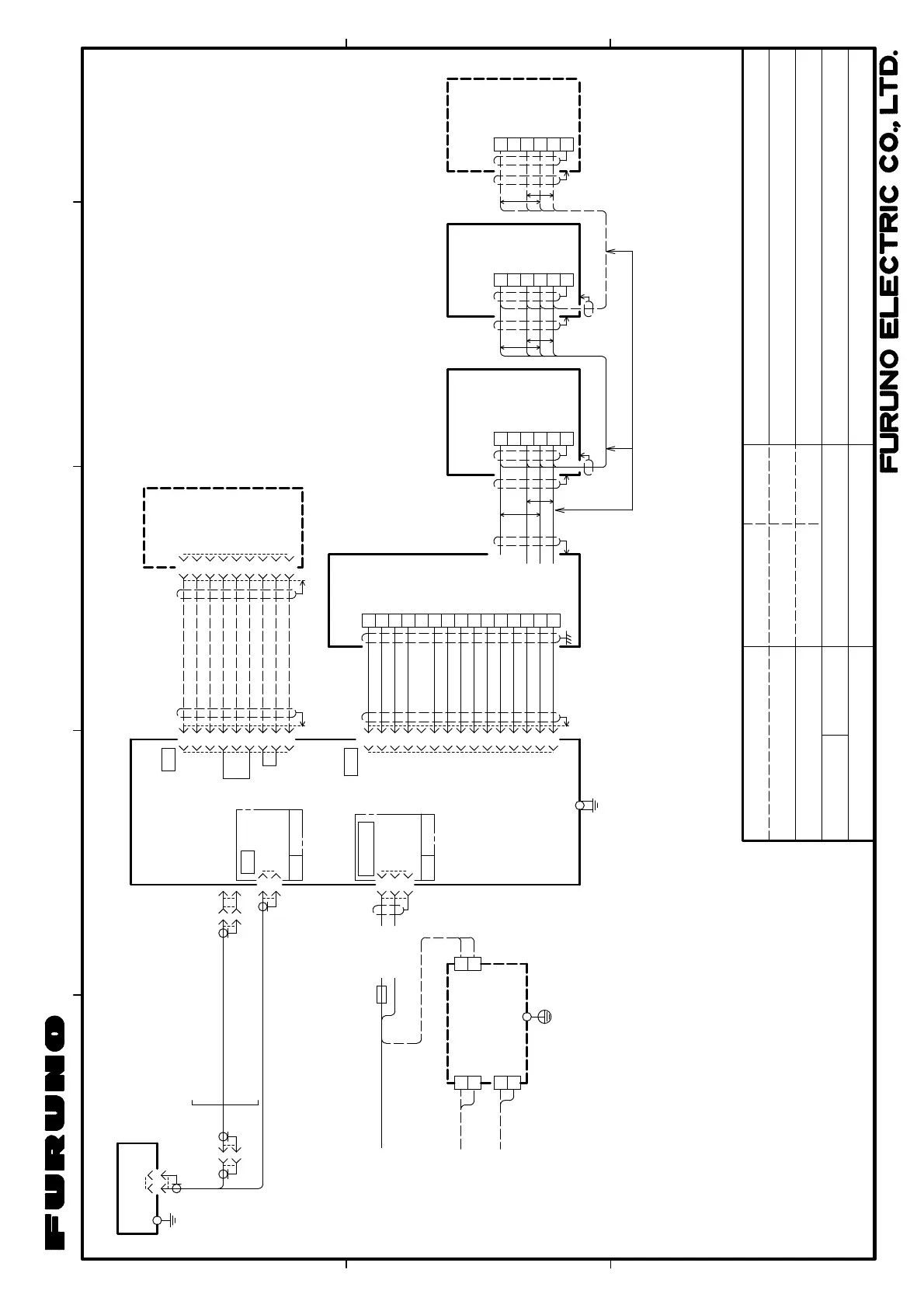
FELCOM 16
INTERCONNECTION DIAGRAM
相互結線図
CO-0.2x5P: CO-SPEVV-SB-C 0.2x5P,φ13.5
インマルサットMINI-C携帯移動地球局
INMARSAT MINI-C MES
NOTE
注記
*6. DO NOT SHORTEN ANTENNA CABLE.
*5)終端のIC-307はジャンパー設定を変更する。
*6)アンテナケーブルは切断して使用しないこと。
*5. CHANGE SETTING OF JUMPER IN IC-307 TO TERMINATE.
*4. STANDARD SUPPLY FOR SSAS SPEC.
*3. FITTED AT FACTORY.
*2. OPTION.
*1. SHIPYARD SUPPLY.
*1)造船所手配。
*2)オプション。
*3)工場にて取付済み。
*4)SSAS仕様時標準支給。
10
11
12
13
14
15
4
5
6
7
8
9
1
2
3
GND
D-sub15P
Vcc(6.5V)
TX/RX-A
TX/RX-B
SSAS_OUT-H
SSAS_CHECK
SSAS_IN-C
SSAS_CTRL
SSAS
GND
1
2
3
4
5
6
7
8
9
パソコン
PC
RXD
TXD
NC
DTR
DSR
CTS
RTS
NC
*3
2
3
1
4
5
6
7
8
9
*3 *3
17JE-23090
-02(D8C)-02(D8C)
17JE-13090
17JE-573-10,5m,φ8
*2
GND
RXD
TXD
1
2
3
BLKクロ
GND
DC(-)
DC(+)
12-24VDC
アカ RED
FM-C3FP
2B10
16P0227
FUSE
10A:12VDC
5A:24VDC
FM-C3FPS-002,3.5m,φ7.5
12-24 VDC
*3
ANT
2B02 16P0208B
TNCP-NJ
ANTENNA UNIT
アンテナユニット
IC-116
RW-4747
0.3m
IC-216
通信制御ユニット
COMMUNICATION UNIT
DTE
銅板 COPPER STRAP
W=30,1.2m
TP58A15W-RG58,15m,φ5
*6
+
-
24VDC
OUT
SUPPLY UNIT
AC/DC POWER
AC/DC
*2
電源ユニット
+
-
AC
IN
DC
IN
PE
保護アース
*1
PR-240
1φ,50/60Hz
100-115/
24 VDC
200-230 VAC
DPYC-4
DPYC-2.5
*1
*1
IV-2sq.
NC
NC
NC
NC
NC
NC
NC
10
11
12
13
14
15
4
5
6
7
8
9
1
2
3
DMC_OUT-H
DMC_OUT-C
DMC_IN-C
DMC_CTR
DMC_IN-H
GND
TD/RD-A
TD/RD-B
NC
TD-A
TD-B
RD-A
RD-B
GND
Vcc
接続箱
JUNCTION BOX
IC-315
*4
2m
1
2
3
4
5
6
SSAS_OUT-H
SSAS_IN-C
SSAS_CTRL
GND
SSAS_CHECK
NC
P
P
合計:最大200m
TOTAL: UP TO 200m
TTYCS-4(*1) OR CO-0.2x5P(*2)
IC-307 (No.1)
SSAS ALERT UNIT
保安警報発呼器
*4
SSAS ALERT UNIT
保安警報発呼器
IC-307 (No.2)
*4 *5
MAX. 3 UNITS AVAILABLE
最大3台まで接続可能
1
2
3
4
5
6
1
2
3
4
5
6
SSAS ALERT UNIT
保安警報発呼器
IC-307 (No.3)
*2 *5
P
P
P
P
C5638-C01- L
30/Mar/2010
30/Mar/2010
T.YAMASAKI
T.TAKAHASHI
TP5FBAW-5DFBB,30m,φ7.7
8D-FB-CV,50m,φ14.3: N-P-8DFB
12D-SFA-CV,100m,φ20: N-P-12DSFA
ケーブル/コネクタは選択
SELECT CABLE & CONNECTOR
TPA5FB0.4NJ5
FBA-5DFB,0.4m
5D-FB-CV,30m,φ10.7: N-P-5DFB
1/Apr/2010 Y.NISHIYAMA
S-2

Related product manuals