EasyManua.ls Logo

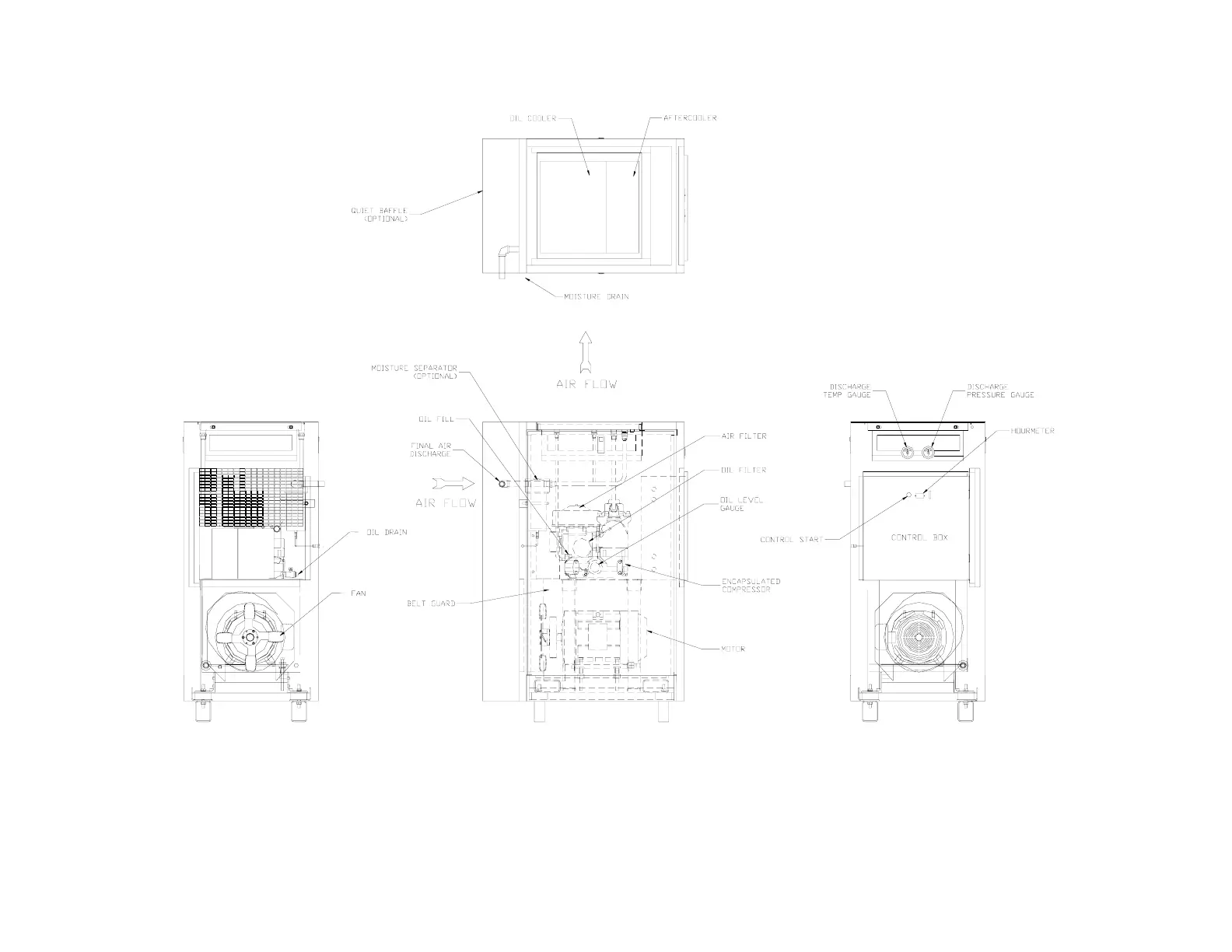
Gardner Denver INTEGRA EFB99A - Figure 1-2 - Compressor Illustration

Gardner Denver INTEGRA EFB99A
53 pages
Print Icon
To Next Page IconTo Next Page
To Next Page IconTo Next Page
To Previous Page IconTo Previous Page
To Previous Page IconTo Previous Page
Loading...
13-8-619 Page 2
300EFB797-A
(Ref. Drawing)
Figure 1-2 – COMPRESSOR ILLUSTRATION

Related product manuals