EasyManua.ls Logo

GE GNE25J

GE GNE25J
95 pages
To Next Page IconTo Next Page
To Next Page IconTo Next Page
To Previous Page IconTo Previous Page
To Previous Page IconTo Previous Page
Loading...
20 49-60805-1
Instrucciones de Instalación
MIDA LA ABERTURA DEL GABINETE DE ACUERDO CON EL ANCHO
DEL REFRIGERADOR
Mida el ancho de la abertura del gabinete donde el refrigerador será
FRORFDGR³%´$VHJ~UHVHGHWHQHUHQFXHQWDFXDOTXLHUSDUWHVDOLHQWH
de la mesada, el grosor del rodapié y cualquier despeje deseado.
(ODQFKR³%´QRGHEHUtDVHULQIHULRUDHQWUH´\´FP
FPGHSHQGLHQGRGHOPRGHOR(OUHIULJHUDGRUVHUiXELFDGR
aproximadamente en el medio de esta abertura.
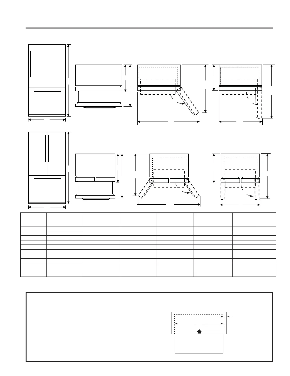
Back Wall
Front
Right
Side
REFRIGERATOR
B
El Grosor
del Rodapié
o el Espacio
Saliente de
la Mesada
&XDOTXLHUD6HD
Más Grande)
Además de
Cualquier
'HVSHMH
'HVHDGR
$57Ë&8/2 0RGHORVGH
pies cúb. con
puertas francesas
Modelos de 21
pies cúb. con una
sola puerta
Modelos de 21
pies cúb. con
puertas francesas
0RGHORVGH
pies cúb. con una
sola puerta
0RGHORVGH
pies cúb. con
puertas francesas
0RGHORVGH
pies cúb. con puertas
francesas
A* FP ´FP ´FP ´FP ´FP FP
% FP ´FP ´FP ´FP ´FP FP
C** FP ´FP ´FP ´FP
´FP FP
' FP ´FP ´FP ´FP >FP@
E FP ´FP ´FP ´FP ´FP FP
) 
cm)
´FP ´FP ´FP ´FP FP
G FP ´FP ´FP ´FP ´FP FP
+ 
cm)
´FP ´FP ´FP ´FP FP
I** FP ´FP ´FP ´FP ´FP FP
NOTA: *La altura del refrigerador hasta la parte superior de la puerta. ** Incluye la manija.
A
C
G
G
D
E
E
F
I
H
F
B
A
C
D
B
155Û
155Û
I
H
90Û
90Û
DIMENSIONES DEL ELECTRODOMÉSTICO
Modelos con Una Sola Puerta con Puer-
tas de Refrigerador y del Congelador
(en algunos modelos)
Modelos con Una Sola Puerta y
Cajón (en algunos modelos)
Modelos de Puerta Francesa
Pared Trasera
Lado
'HUHFKR
5()5,*(5$'25
)UHQWH
INSTRUCCIONES DE INSTALACIÓN

Other manuals for GE GNE25J

Related product manuals