EasyManua.ls Logo

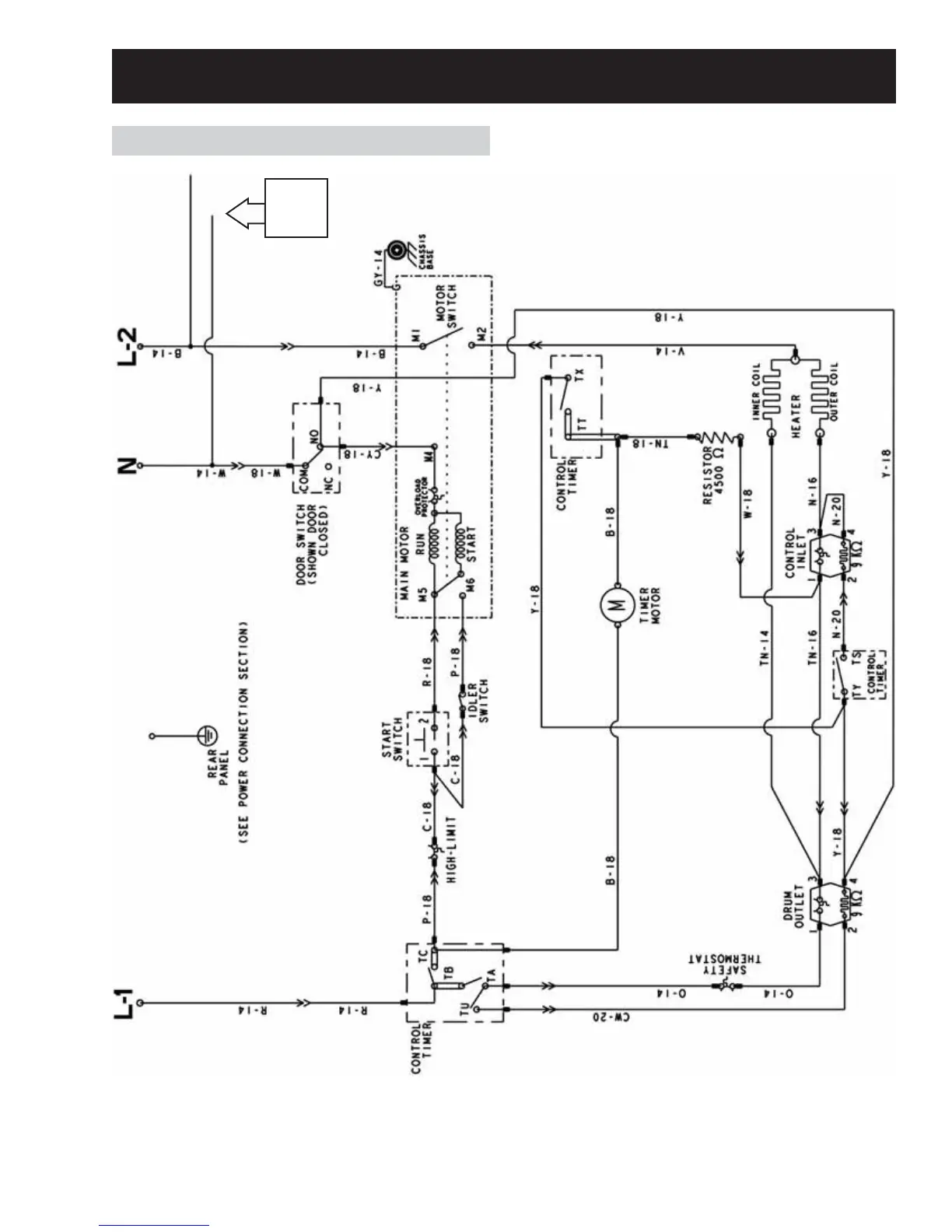
GE GUD24ESSMWW - Wiring Diagrams; Electric Dryer Wiring Diagram

GE GUD24ESSMWW
81 pages
To Next Page IconTo Next Page
To Next Page IconTo Next Page
To Previous Page IconTo Previous Page
To Previous Page IconTo Previous Page
Loading...
– 77 –
:LULQJ'LDJUDPV
To
Washer
Electric Dryer

Table of Contents

Related product manuals