EasyManua.ls Logo

GE JCBP66SPSS - Page 63

GE JCBP66SPSS
76 pages
Print Icon
To Next Page IconTo Next Page
To Next Page IconTo Next Page
To Previous Page IconTo Previous Page
To Previous Page IconTo Previous Page
Loading...
Service à la clientèle Dépannage Entretien et nettoyage Mode d’emploi
Instructions
de sécurité
La taille, le poids, l’épaisseur,
la température initiale et
vos préférences de degré de
cuisson affectent les durées
de cuisson au gril. Ce guide
est basé sur des viandes dont
la température initiale est
celle du réfrigérateur.
D’après le ministère de l’Agriculture
des États-Unis, « Le boeuf saignant
est populaire, mais vous devez savoir
que le cuire à seulement 60 °C
(140 °F) signifie que des organismes
provoquant des intoxications
alimentaires survivront peut-être ».
(Source : Safe Food Book. Your Kitchen
Guide. USDA Rév. juin 1985.)
14
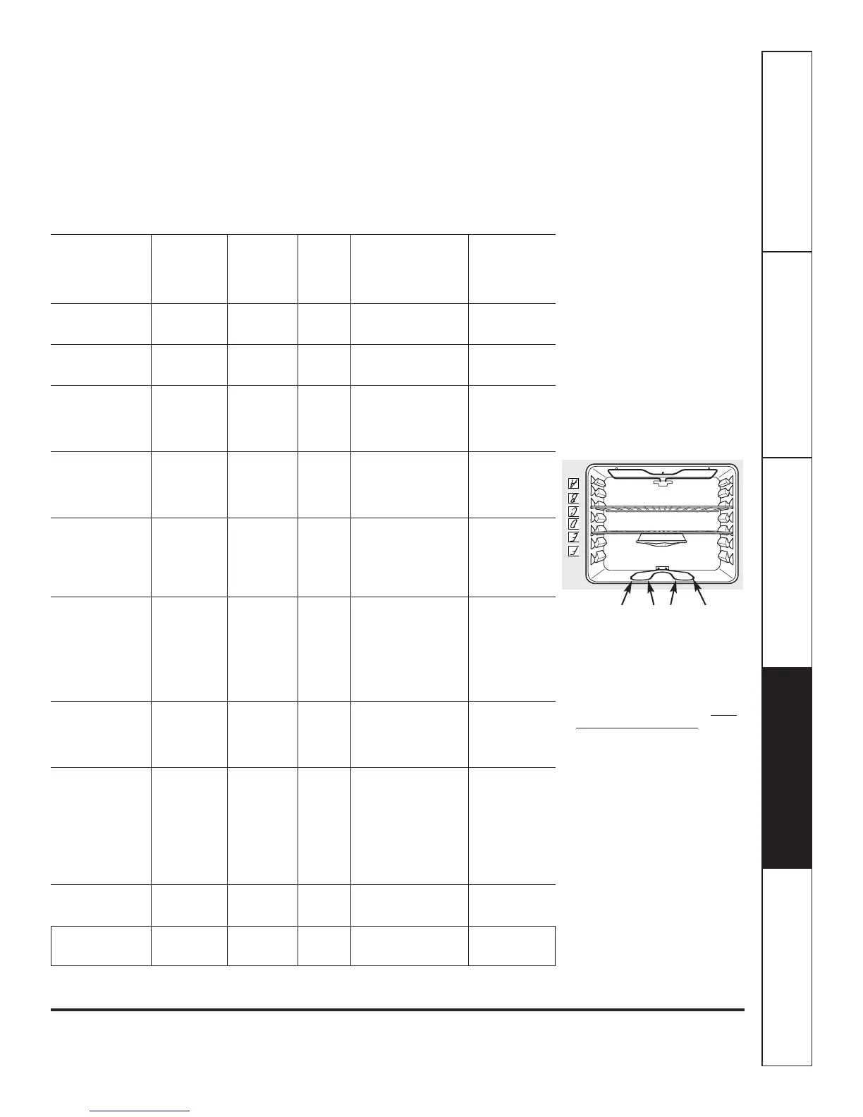
Utilisation du four.
Quantité et/ou Position* Premier côté
Deuxième côté
Aliment épaisseur de grille durée (mn) durée (mn) Commentaires
Boeuf hâché 454 g (1 lb) (4 portions) C 10 7–10 Espacer régulièrement.
1,25 à 1,9 cm (1/2 à 3/4 po) d’épaisseur
1,8 kg (4 lbs) (16 portions) C 15 11
Biftecks
Saignant † 1,9 à 2,5 cm (3/4 à 1 po) E 6 4 Les biftecks de moins
À point d’épaisseur D 8 6 de 1,9 cm (3/4 po)
Bien cuit 454 à 680 g (1 à 1
1
2 lb) D 10 7–10 d’épaisseur sont difficile
à cuire saignants.
Faire des fentes dans
Saignant † 3,8 cm (1
1
2 po) d’épaisseur C 10 8 le gras.
À point 900 g à 1,14 kg (2 à 2
1
2 lb) C 15 10–12
Bien cuit D 20 20
Poulet 1 poulet entier découpé B 25 25 Brossez chaque côté
900 g à 1,14 kg (2 à 2
1
2 lb), avec du beurre fondu.
fendre dans le sens de
la longueur Faire griller la peau en
Poitrine B 25 15 dessous d’abord.
Produit de
boulangerie
Pain (rôties) 2 à 4 tranches D 3 1 Espacez également.
Muffin 2 (partagés) E 3-4 Placez les muffins
la partie coupée vers
le haut et brossez avec
du beurre si vous
le désirez.
Queues de homards 2–4 B 18–20 Ne pas Fendre le dos de
retourner. la
carapace. Ouvrir.
Badigeonner
avec du
beurre fondu avant de
passer au gril, et à
mi-cuisson.
Filets de poisson 454 g (1 lb) 0,6 à 1,25 cm D 5 5 Manipuler et tourner
(1/4 à 1/2 po) d’épaisseur avec beaucoup de soin.
Badigeonner avec du beurre
citronné avant et durant
la cuisson, selon le goût.
Saumon
Steaks 2 (2,5 cm / 1 po d’épaisseur) D 10 5 Tourner avec beaucoup
Filets 2 (1,25 à 1,9 cm / D 10 de soin. Ne tournez pas
1
2 a
3
4 po d’épaisseur) la côté de la peau vers
le bas.
Tranches de 1,25 cm (1/2 po) d’épaisseur C 6 6
jambon 2,5 cm (1 po) d’épaisseur C 8 8
(précuit)
Côtes de porc 2 (1,25 cm /
1
2 po d’épaisseur) C 10 10 Faire des fentes dans
Bien cuit 2 (2,5 cm / 1 po d’épaisseur), C 15 15 le gras.
environ 454 g (1 lb)
Côtes d’agneau
À point 2 (2,5 cm / 1 po d’épaisseur), D 7 4 Faire des fentes dans
Bien cuit environ 312 à 375 g (10 à 12 oz) D 10 9 le gras.
À point 2 (3,8 cm / 1
1
2 po d’épaisseur) D 9 6
Bien cuit environ 454 g (1 lb) D 14 10
Guide de cuisson au gril – Élément de gril en 4 parties
*Voir l’illustration pour trouver la position des grilles.
Le four a 6 positions de grille.
Centrez les récipients dans le four.
Partie
4321

Related product manuals