EasyManua.ls Logo

GE JCBP70 - Page 67

GE JCBP70
88 pages
To Next Page IconTo Next Page
To Next Page IconTo Next Page
To Previous Page IconTo Previous Page
To Previous Page IconTo Previous Page
Loading...
Service à la clientèle Dépannage Entretien et nettoyage Mode d’emploi
Instructions
de sécurité
22
Utilisation du four autonettoyant.
Avant l’autonettoyage
Nous vous recommandons d’aérer votre
cuisine en ouvrant une fenêtre, ou d’utiliser
une hotte de ventilation pendant le premier
cycle d’autonettoyage.
Enlevez les grilles, les lèchefrites, les clayettes,
tous les ustensiles de cuisine et tout papier
d’aluminium du four.
REMARQUE :
Si les grilles de votre four sont brillantes et
de couleur argentée, retirez-les avant de
commencer le cycle d’autonettoyage.
Si votre four est équipé de grilles
porcelanisées de couleur grise, vous pouvez
les laisser dans le four pendant le cycle
d’autonettoyage.
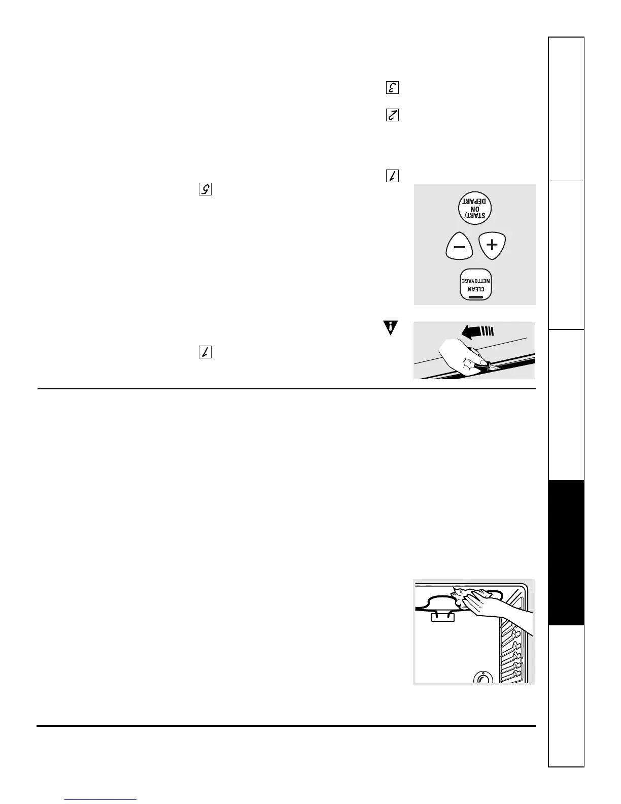
La saleté se trouvant sur l’armature
frontale de la cuisinière et autour de la partie
extérieure du joint de la porte devra être
nettoyée à la main. Nettoyez ces zones à l’eau
chaude et avec des tampons de laine d’acier
savonneux ou des produits nettoyants tels que
Soft Scrub
®
. Rincez-les soigneusement à l’eau
claire et séchez-les.
Ne nettoyez pas le joint. Il est fait en fibre de
verre qui ne résiste pas aux produits abrasifs.
Il est essentiel que le joint reste intact. Si vous
remarquez qu’il s’use ou qu’il s’effiloche,
remplacez-le.
Essuyez tous les renversements importants sur
la sole du four.
Assurez-vous que la protection de l’ampoule
électrique du four est bien en place et que la
lampe du four est éteinte.
IMPORTANT : Certains oiseaux sont
extrêmement sensibles aux vapeurs venant
du four de toutes les cuisinières lors du cycle
d’autonettoyage; elles peuvent affecter leur
santé. Déplacez les oiseaux et mettez-les dans
une autre pièce bien aérée.
Essuyez toute la saleté importante
sur la sole du four.
Comment régler le four pour l’autonettoyage
Suivez les instructions de la section Avant un
cycle de nettoyage.
AVERTISSEMENT :
Les éléments de surface sont automatiquement
débranchés pendant le cycle d’autonettoyage.
Assurez-vous que tous les réglages d’éléments
de surface sont éteints pendant tout le temps
du cycle d’autonettoyage. Tout élément de
surface qui est réglé en position de marche
pendant le cycle d’autonettoyage se mettra
automatiquement en marche à la fin du
cycle d’autonettoyage et peut se mettre à
chauffer sans surveillance. Attendez que le
cycle d’autonettoyage soit terminé pour
régler et utiliser les éléments de surface.
Verrouillez la porte.
NOTE : Ne forcez jamais sur le verrou. Si le
four est trop chaud, vous ne pourrez pas faire
glisser le verrou. Laissez refroidir le four.
Appuyez sur la touche CLEAN
(NETTOYAGE).
Appuyez sur les touches + ou jusqu’à
ce qu’apparaisse la durée de nettoyage.
La durée de nettoyage est normalement de 4 heures.
Vous pouvez changer la durée de nettoyage entre 3 et
5 heures, selon le degré de saleté de votre four.
Appuyez sur la touche START/ON
(
DÉPART
).
Le cycle d’autonettoyage commencera
automatiquement après qu’apparaisse CLEAN
(NETTOYAGE) et le temps restant sur l’afficheur.
Quand le four s’autonettoie, vous pouvez
appuyer sur la touche CLOCK (HORLOGE) pour
voir l’heure. Pour revenir au compte à
rebours de nettoyage, appuyez sur la touche
CLEAN (NETTOYAGE).
Le four s’arrête automatiquement quand le
cycle de nettoyage est terminé et 0:00
clignotera sur l’afficheur.
Faites glisser le manche du verrou aussi
loin que possible vers la gauche pour
ouvrir la porte.
Vous ne pourrez pas déverrouiller la porte
du four avant que la température baisse en
dessous de celle de verrouillage et le voyant
lumineux LOCKED (VERROUILLÉ) s’éteigne.
Quand le voyant lumineux LOCKED
(VERROUILLÉ) de la porte s’éteint,
déverrouillez la porte.
Ne forcez jamais sur la poignée du verrou. Si vous forcez sur la poignée, vous risquez d’endommager le mécanisme
de verrouillage de la porte.

Other manuals for GE JCBP70

Related product manuals