EasyManua.ls Logo

GE JTP20 - Page 39

GE JTP20
51 pages
Print Icon
To Next Page IconTo Next Page
To Next Page IconTo Next Page
To Previous Page IconTo Previous Page
To Previous Page IconTo Previous Page
Loading...
37
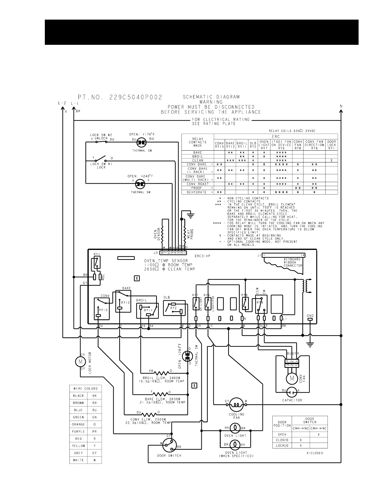
Models JCK915, JK915, and ZEK938 Schematic
Schematics and Wiring Diagrams

Other manuals for GE JTP20

Related product manuals