EasyManua.ls Logo

GE LanPro 11 U - Page 46

GE LanPro 11 U
46 pages
Print Icon
To Previous Page IconTo Previous Page
To Previous Page IconTo Previous Page
Loading...
GE Digital Energy
g
LanPro
®
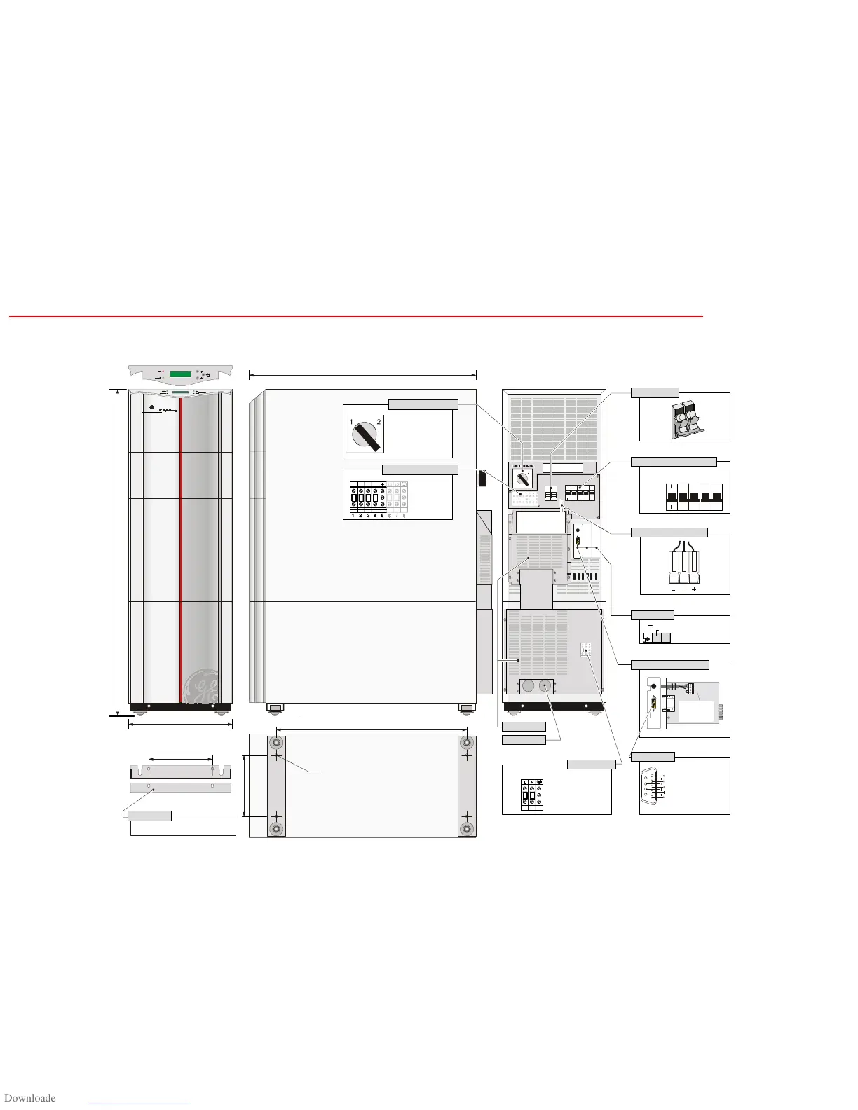
5/6-11U 120V input
MANUAL BYPASS SWITCH
NORMAL: POSITION 1
(LOAD ON UPS)
SERVICE: POS ITION 2
(LOAD ON BYPASS)
EARTH
CONNECTION
IS ESSENTIAL
UPS UTILITY
STATIC
BYPASS
ON
OFF
RS232 / CONTACT, SEE BELOW
SNMP CARD OR REL AY CARD
RPA CARD
PARALLEL OPERATION
1-2 BATTERY
DISCONNECTED
3-4 EMERGENCY
SHUTDOWN
1 - BATTERY LOW
6 - BYPASS ACTIVE
2 - SERIAL DATA OUT
7 - PLUG & PLAY / RTS
3 - SERIAL DATA IN / UPS SHUTDOWN
8 - MAINS FAILURE
4 - NOT USED
9 - GENERAL ALARM
5 - COMMON
INPUT / OUTPUT TERMINALS
BATTERY FUSES
CONTROLS / CIRCUIT BREAKERS
BATTERY PACK CONNECTOR
OPTION SLOTS
RS232 / CONTACT INTERFACE
SUB-D PINNING
EARTH
CONNECTION
IS ESSENTIAL
INPUT TERMINALS
CONDUIT BOX
CABLE ENTRY
d
h
w
z
y
POSITION A: FIX UPS TO THE FLOOR
POSITION B: LIFT UP S CASTORS FROM THE FLOOR
LEVELLER
4 x M8
CASTORS




Table of Contents

Related product manuals