EasyManua.ls Logo

GE Profile 42

GE Profile 42
100 pages
To Next Page IconTo Next Page
To Next Page IconTo Next Page
To Previous Page IconTo Previous Page
To Previous Page IconTo Previous Page
Loading...
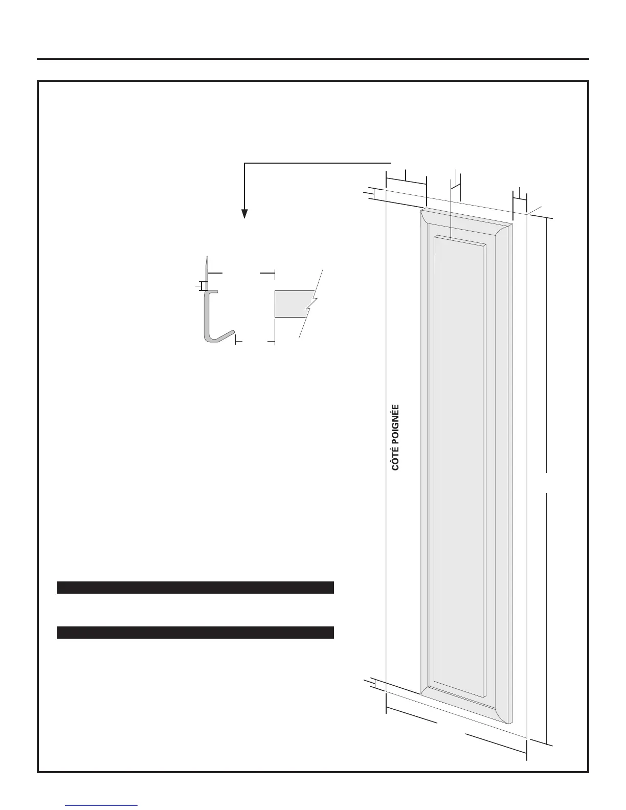
10 mm
(3/8 po)
79 mm
(3-1/8 po)
8 mm (5/16 po)
Épaisseur totale
de 25 mm (1 po)
ou 19 mm (3/4 po)
plus 6 mm (1/4 po)
pour le panneau arrière
B
64 mm
(2-1/2 po)
79 mm min.
(3-1/8 po)
6 mm max. (1/4 po)
A
8 mm (5/16 po)
Nécessaire pour obtenir l‘espace optimal
pour la poignée
PANNEAUX DE BOIS PERSONNALISÉS ENCADRÉS DE 19 MM
À POIGNÉES PRÉ-INSTALLÉES
Fixés à un panneau arrière fini de 6 mm. Cette conception
donne un aspect encadré.
Panneau de
compartiment pour
aliments frais
Instructions d’installation
72
Modèles de 1067 mm A B
Panneau arrière, 6 mm 567 mm (22-5/16) 1724 mm (67-7/8)
Panneau couvrant, 19 mm 478 mm (18-13/16) 1708 mm (67-1/4)
Modèles de 1219 mm A B
Panneau arrière, 6 mm 672 mm (26-7/16) 1724 mm (67-7/8)
Panneau couvrant, 19 mm 583 mm (22-15/16) 1708 mm (67-1/4)

Related product manuals