EasyManua.ls Logo

Geberit Silent-db20 - Page 39

Geberit Silent-db20
72 pages
Print Icon
To Next Page IconTo Next Page
To Next Page IconTo Next Page
To Previous Page IconTo Previous Page
To Previous Page IconTo Previous Page
Loading...
38
Geberit Drainage Systems
System installation
Installation
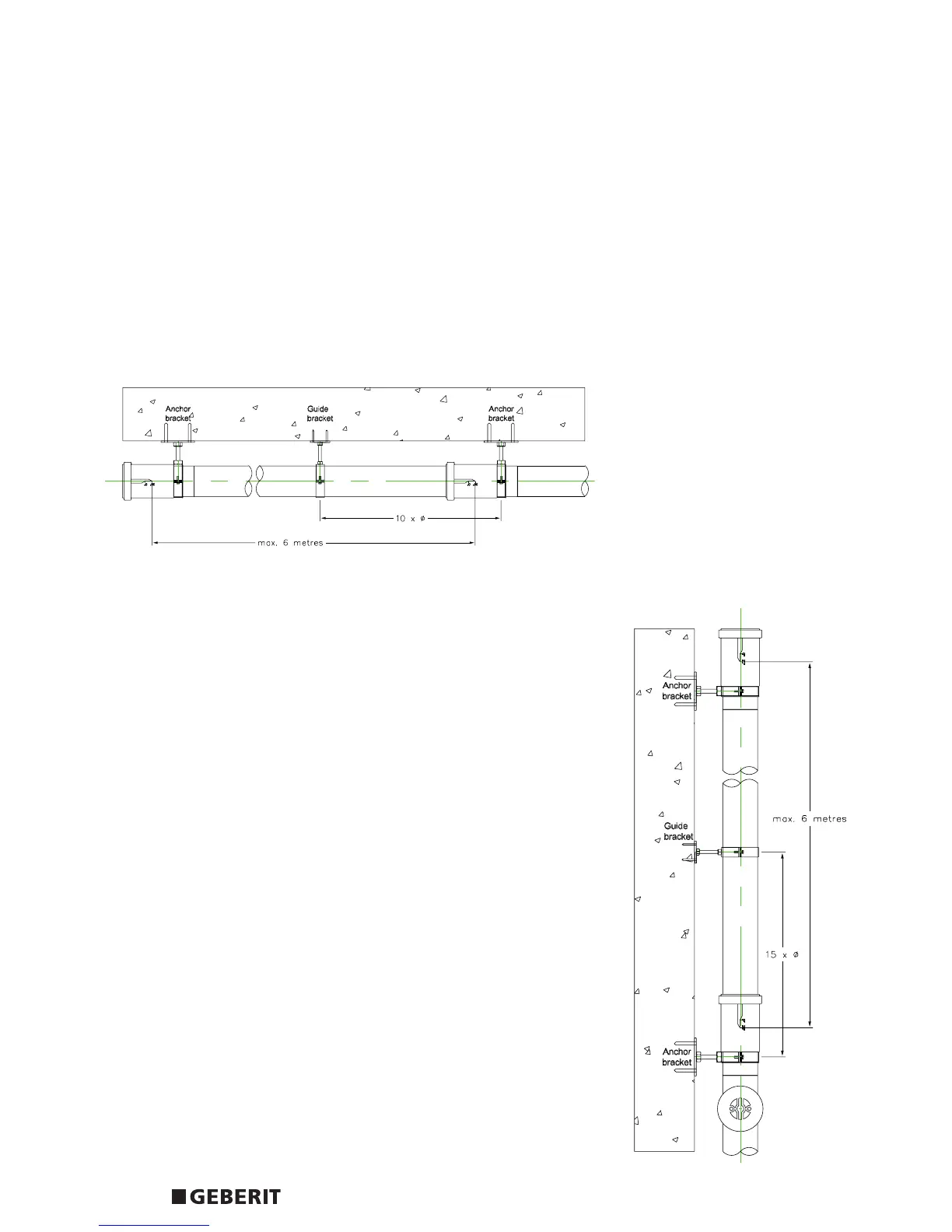
One secure fixed anchor bracket must be installed per
floor when branch connections exist and at a maximum of
6 metre centres on plain straight runs of pipe.
The special shape of the seal allows the pipe to slide
within the socket during expansion and contraction,
ensuring that the connection remains perfectly watertight
even under heavy hydraulic load.
The following conditions are important to ensure perfect
andeasyassemblyofthesleeve:
1 Chamfering the inserted pipe end to
approximately <) 15°.
2 Check the scale on the outer surface of the
expansion socket for insertion depth.
3 Mark the correct insertion depth on the pipe.
4 Lubricate the pipe end well with soluble lubricant,
silicone or Vaseline. Do not use oil or grease which
can damage the rubber seal.
When using expansion fittings, all other joints must
be tension resistant (see page 18).
Horizontal assembly (e.g. at 20°C)
Example:insertion
depth in an ambient
temperature of 20°C
(vertical assembly).

Table of Contents

Other manuals for Geberit Silent-db20

Related product manuals