EasyManua.ls Logo

Generac Power Systems Guardian 004992-2

Generac Power Systems Guardian 004992-2
48 pages
To Next Page IconTo Next Page
To Next Page IconTo Next Page
To Previous Page IconTo Previous Page
To Previous Page IconTo Previous Page
Loading...
43
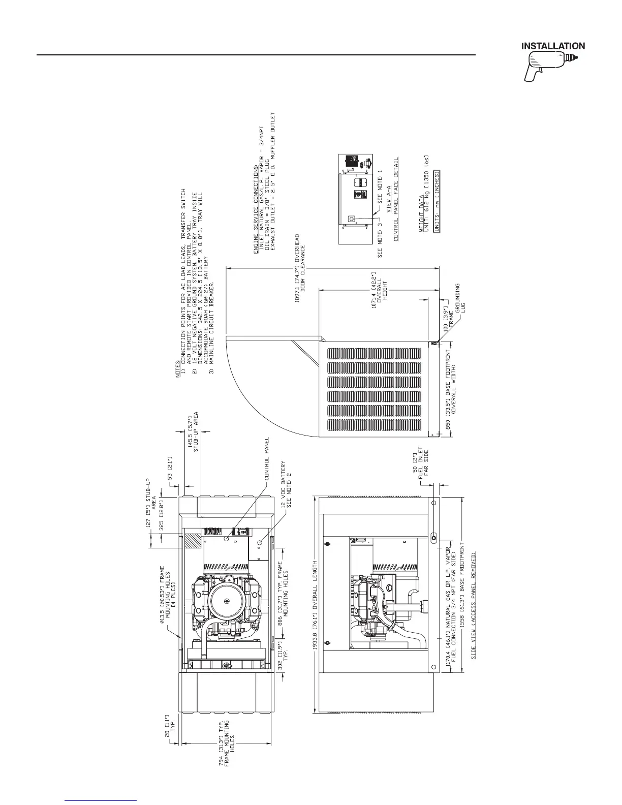
Section 8 — Installation Diagram
40kW Liquid-cooled Generators
Installation Diagram — Drawing No. 0E8422-A
OVERHEAD VIEW

Table of Contents

Related product manuals