EasyManua.ls Logo

General AOHG90LRLA - Pcb Circuit Diagram

General AOHG90LRLA
28 pages
Print Icon
To Next Page IconTo Next Page
To Next Page IconTo Next Page
To Previous Page IconTo Previous Page
To Previous Page IconTo Previous Page
Loading...
72 Type : 10A - AC250V ( F200 )
90 Type : 20A - AC250V ( F201 )
F70
3.15A - AC250V
UL1007 AWG20 RED
UL1007 AWG20 WHITE
UL1007 AWG24 BLACK
UL1007 AWG24 BLACK
BLACK
WHITE
RED
GREEN
YELLOW
BLUE
GRAY
VIOLET
BROWN
BLACK
WHITE
RED
GREEN
YELLOW
BLUE
GRAY
VIOLET
BROWN
BLACK
WHITE
RED
GREEN
YELLOW
BLUE
GRAY
VIOLET
BROWN
GRAY
RED
ORANGE
YELLOW
BLACK
BLACK
BLACK
BLACK
BLUE
YELLOW
ORANGE
PINK
GRAY
UL1015 AWG16
WHITE
UL1015 AWG16 WHITE
UL1015 AWG20 WHITE
UL1015 AWG20 RED
UL1015 AWG20
BLACK
UL1015 AWG16 WHITE
UL1015 AWG16 BLACK
204-1
204-3
72-1
L2
72-3
N2
72-5
Si
W260
W202
551-1
551-2
551-3
551-4
700-1
700-2
700-3
700-4
700-5
700-6
700-7
700-8
700-9
700-10
700-11
700-12
725-1
725-2
725-3
725-4
725-5
725-6
725-7
500-1
500-2
500-3
500-4
500-5
205-1
L1
205-3
N1
320-1
320-2
320-3
320-4
320-5
320-6
320-7
320-8
320-9
320-10
320-11
2-1
2-2
2-3
2-4
2-5
2-6
2-7
2-8
2-9
2-10
2-11
300-1
300-2
300-3
46-1
46-2
46-3
47-1
47-2
65-1
65-2
65-3
65-4
48-1
48-2
48-3
48-4
48-5
48-6
48-7
48-8
48-9
9-1
9-2
9-3
71-1
71-2
71-3
71-4
6-1
6-2
6-3
8-1
8-2
UL1430 AWG28 x 9
UL1430 AWG26 x 4
UL1430 AWG28 x 9SQMM 0.3 x 9
1-1
1-2
1-3
1-4
1-5
1-6
1-7
1-8
1-9
1-1
1-2
1-3
1-4
1-5
1-6
8-1
8-2
8-3
8-4
SIGNAL1
SIGNAL2
COM
9-1
9-2
9-3
9-4
9-5
9-6
9-7
9-8
9-9
9-10
9-11
9-12
1-1
1-2
1-3
1-4
1-5
UL1015
AWG16
GREEN
UL1015
AWG16
GREEN
UL1007 AWG22 WHITE
UL1007 AWG22 BLACK
UL1007 AWG22 RED
UL1007 AWG22 BLUE
UL1007 AWG22 ORANGE
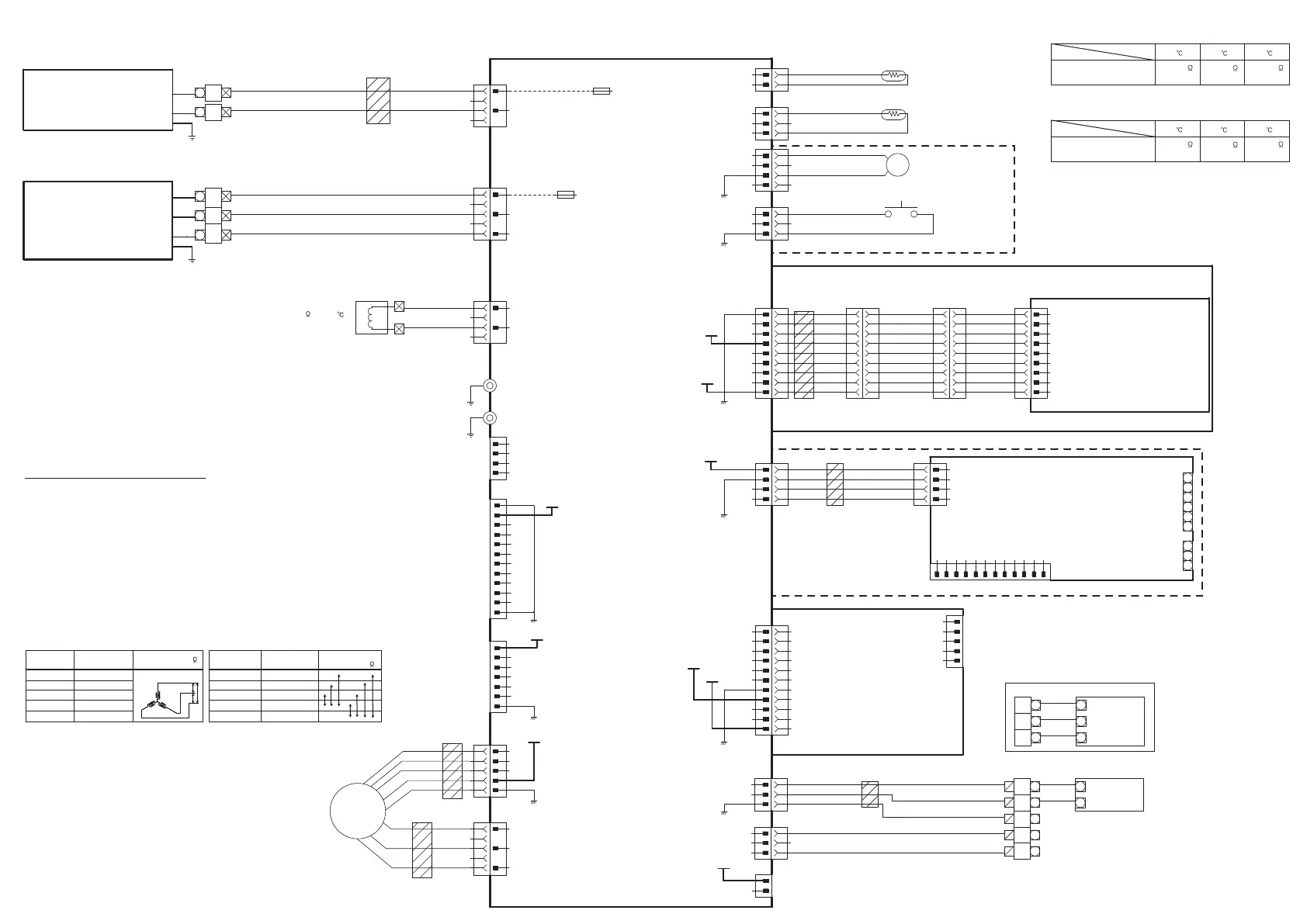
EMI FILTER
GRFC-13
2 TURNS
EMI FILTER
GRFC-13
4 TURNS
UL1430 AWG22 x 5
EMI FILTER
ZCAT2132-1130
2 TURNS
EMI FILTER
ZCAT2132-1130
2 TURNS
EMI FILTER
GRFC-7
2 TURNS
CN500
B06B-XASK-1-A
WHITE
HALL SENSOR
CN400
B3P5-VH-B
WHITE
FAN MOTOR
CN725
B07B-PASK-1
WHITE
CN700
B12B-PASK-1
WHITE
CN551
B04B-PAKK-1
BLACK
CN204
B2 ( 4-2.5 ) B-PSIY-B1
YELLOW
REACTOR ASSY
22mH 5A
CN72
B3 ( 8.0 ) B-PSILE-1
BLUE
CN205
B2 ( 4-2.4 ) B-PSILE-A1
BLUE
CN1
S09B-PASK-2
WHITE
CN8
B04B-PASK-1
WHITE
CN2
11PSL-JE
WHITE
CN8
B02B-XASK-1-A
WHITE
CN6
B03B-PASK-1
WHITE
CN71
B04B-XASK-1-A
WHITE
CN9
B03B-XARK-1-A
RED
CN48
B09B-PASK-1
WHITE
CN65
B04B-PASK-1
WHITE
CN320
11R-JE
WHITE
CN300
B03B-XNISK-A-1
WHITE
CN46
B3B-XH-AM
WHITE
CN47
B02B-PASK-1
WHITE
TMA1
HP-T5338-1-3P
BLACK
TMB1
HP-T5338-1-6P
BLACK
CN9
B12B-PASK-1
WHITE
CN1
SM05B-SRSS-TB
WHITE
DC DRAIN PUMP
FLOAT SWITCH
THERMISTOR ( PIPE TEMP. )
THERMISTOR ( ROOM TEMP. )
REMOTE
CONTROL
UNIT
( 3-WIRE )
2-WIRE TYPETERMINAL
Y1
Y2
Y3
Y1
Y2
Y3
1
2
1
2
3
1
2
TERMINAL
TERMINAL
DC FAN MOTOR
FM
400-1
400-3
400-5
UL1015 AWG16 x 3
RED
WHITE
BLACK
REMOTE
CONTROL
UNIT
EX. IN
DRAIN PUMP UNIT ( OPTION )
UTZ-PX1NAB
RECEIVER UNIT ( OPTION )
UTY-LBTYM
INDICATOR PCB
K14WT-1500HSE-D0
DC Resistance
950.00mMax (20 )
EX. IN & OUT PCB
K14VB-1400HSE-CA0
TEST
EX. IN & OUT UNIT
( OPTION )
3-WIRE TYPE
FLASH
M
TEST MAIN
AC INPUT 1
AC INPUT 2
MAIN PCB
K16GY-1601HSE-C1
EMI FILTER
ZCAT2132-1130
2 TURNS
POWER SUPPLY
TO OUTDOOR UNIT
AC230V50Hz
PCB CIRCUIT DIAGRAM
DC Fan motor
Resistance when the main power supply is OFF.
CN400 Winding coil resistance (U,V,W) CN500 Location circuit resistance
Pin number
(wire color)
Terminal function
(symbol)
1 (Red)
2
3 (White)
4
5 (Black)
Motor Winding U
Motor Winding V
Motor Winding W
Pin number
(wire color)
Terminal function
(symbol)
)wolleY( 1
2 (Blue)
3 (Orange)
4 (Pink)
5 (Gray)
Hu
Hw
Hv
Vcc
GND
U
V
W
Resistance: 1.49
Resistance:
More than 10k
DC5V-1
A
DC5V-2
A
DC5V-3
DC13V-1
DC13V-1
DC5V-1
DC13V-1
DC13V-1
DC5V-1
COMMUNICATION PCB
( NON-POLAR 2 WIRE )
K14VS-1400HSE-CA0
CONTROL UNIT
EZ-0160SHSE
2017.04.05 8
Model : ARHG90LHTA
CN6
Thermistor Characteristics.
Thermistor ( Pipe - mid. temp. )
176.0 k
62.9 k
39.6 k
1.1 V
2.2 V 2.8 V
(20 ) (30 )
( 0 )
Thermistor
Temperature
CN8
Thermistor Characteristics.
Thermistor ( Room temp. )
33.6 k
12.5 k
8.0 k
1.1 V
2.2 V 2.8 V
(20 ) (30 )
( 0 )
Thermistor
Temperature

Related product manuals