EasyManua.ls Logo

Gerber DCS 1500 - Un Vistazo a la Máquina

Default Icon
176 pages
Print Icon
To Next Page IconTo Next Page
To Next Page IconTo Next Page
To Previous Page IconTo Previous Page
To Previous Page IconTo Previous Page
Loading...
Page 9
Español
¨ El modo local permite al operador controlar manualmente las
funciones de hardware, como mover el cabezal de corte y el
posicionar el puntero láser. Se accede al modo de Moviendo con
palanca (jogging) a través del modo local y permite al operador
mover el cabezal de corte y el puente.
¨ El modo en línea es el modo predeterminado cuando la cortadora se
enciende por primera vez y después de un reinicio del sistema. Este
modo permite enviar los archivos de corte.
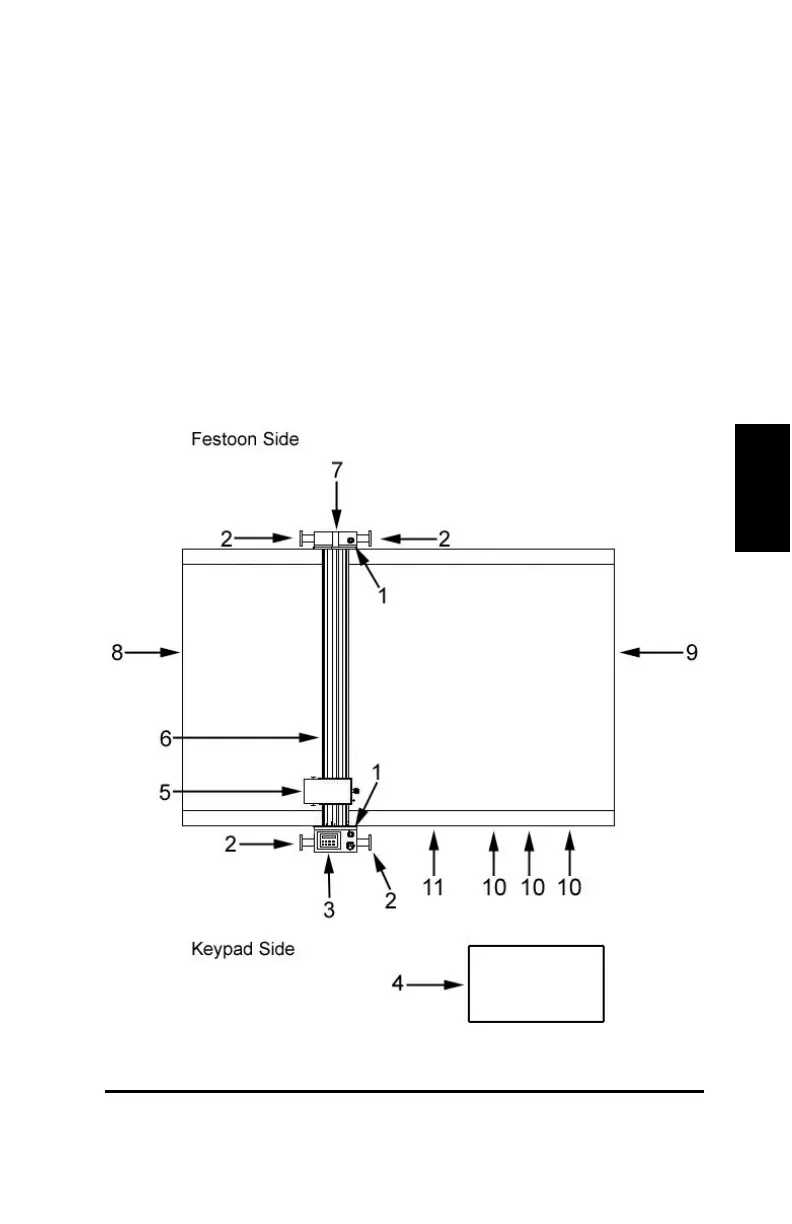
Un Vistazo a la máquina
Figure 2:

Table of Contents

Related product manuals