EasyManua.ls Logo

Germfree BBF-6SSRX - Page 28

Default Icon
52 pages
Print Icon
To Next Page IconTo Next Page
To Next Page IconTo Next Page
To Previous Page IconTo Previous Page
To Previous Page IconTo Previous Page
Loading...
DETAILS
XXX-XXXX-XX
- CATEGORY -
BBF-4 USER MANUAL DRAWING
1 OF 1
THIS PRINT IS PROVIDED ON A
RESTRICTED BASIS AND IS NOT TO
BE IS ANY WAY DETRIMENTAL TO
THE INTERESTS OF GERMFREE
LABORATORIES
SIGNATURES
DRAWING NO.
MATERIAL
THICKNESS
DATE
SHEET
REV.
A
P:\Engineering Vault\Employee Folders\Jafa, V\BBF Manual Drawings\BBF-4\E-GERM-003-1000-00.dft
Germfree Laboratories
UNLESS OTHERWISE
SPECIFIED:
TOLERANCES ARE:
.XX =
±
.03
.XXX =
±
.010
FRACTIONS =
±
1
16
ANGLES =
±
.5
°
DIMENSIONS ARE IN
INCHES.
DO NOT SCALE DRAWING.
SHEET NAME
DRAWN BY:
APPROVAL:
XX/XX/XX
05/08/20
B.SERLE
T. JAFA
CHECKER:
B.SERLE
XX/XX/XX
N/A
MATERIAL
FINISH
N/A
N/A
REVISIONS
Rev Description Date Drawn By Checked By Approved
A INITIAL RELEASE xx/xx/xx XXX XXX XXX
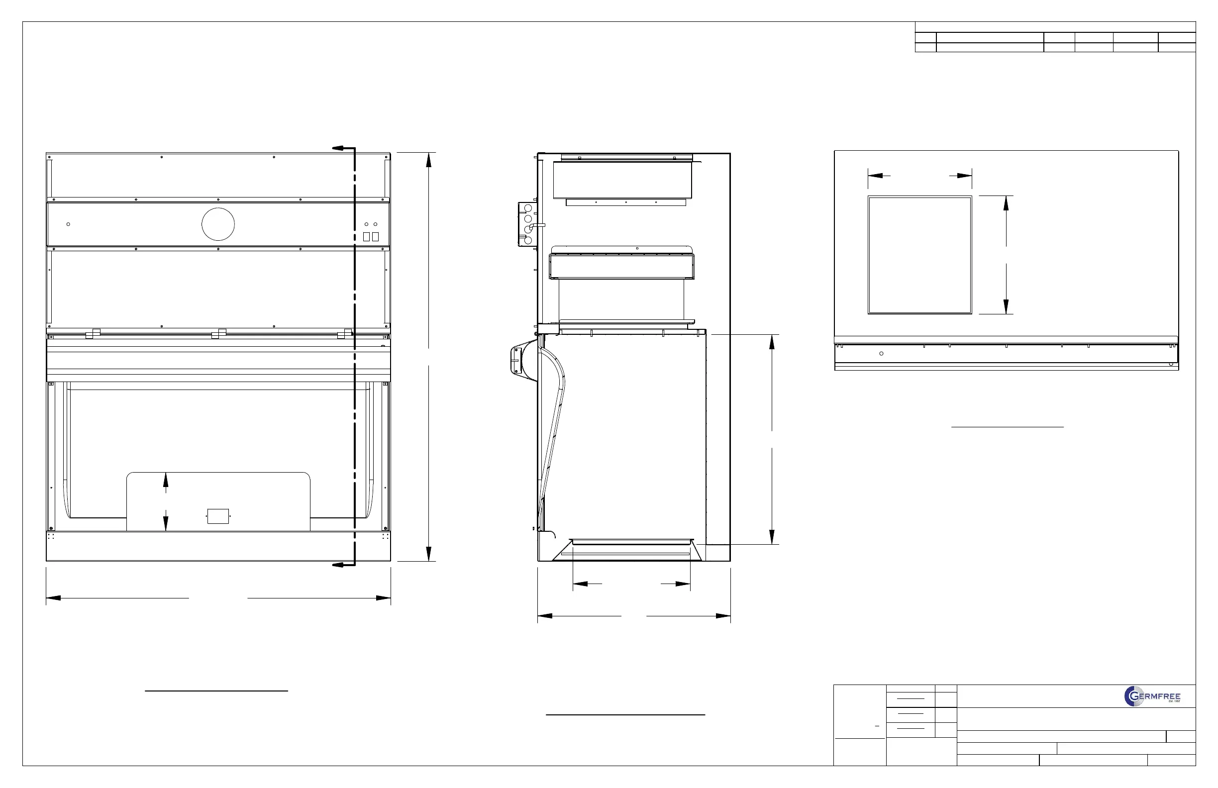
FRONT VIEW
TOP VIEW
A
A
SIDE VIEW
(SECTION A-A)
57
48 1/8
8 1/8
29 1/4
16 3/8
27
14 1/2
16 1/2

Related product manuals