EasyManua.ls Logo

GIGA GSP01 - Page 13

GIGA GSP01
16 pages
Print Icon
To Next Page IconTo Next Page
To Next Page IconTo Next Page
To Previous Page IconTo Previous Page
To Previous Page IconTo Previous Page
Loading...
7 - RESERVED FOR TECHNICAL SUPPORT
0878_GB_99 - ELECTRIC OVEN
13 · 16
01/2012
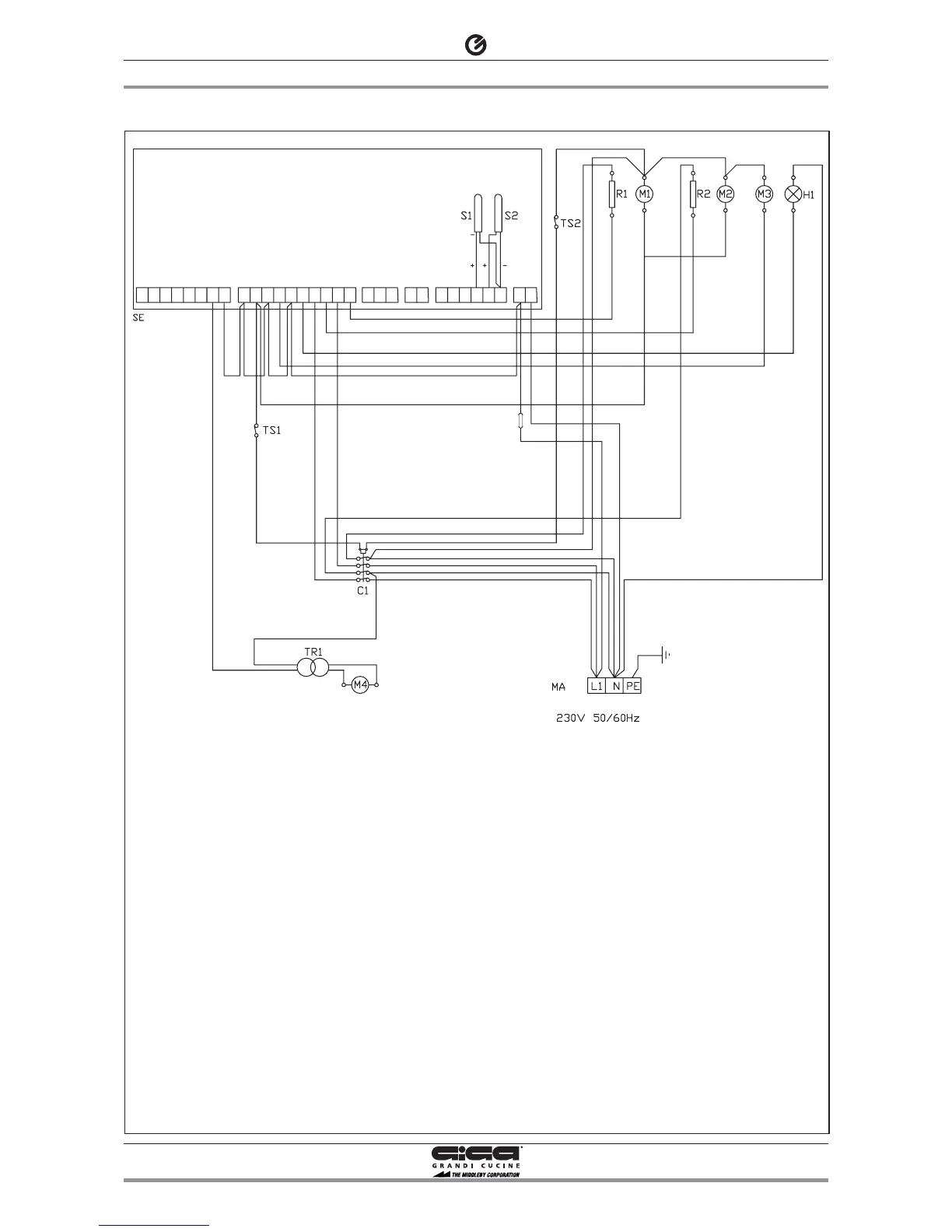
1 2 3 4 5 6 7 8 9 101112131415 18 23 2425 262728293031 3233222116 17
F1
mA
SE
S1
S2
R1
R2
M1
M2
M3
M4
H1
TS1
TS2
C1
TR1
F1
Line input terminal board
Electronic card
Lower temperature sensor
Upper temperature sensor
Lower heating element 1600W
Upper heating element 1200W
Upper heating element motor-fan 32W
Lower heating element motor-fan 32W
Cooling motor-fan 35W
Keyboard fan cooling (+red/-black) 1,8W
Oven interior light 25W
Chamber safety thermostat
Cooling motor safety thermostat
Contactor
Transformateur
Fuse

Other manuals for GIGA GSP01