EasyManua.ls Logo

gledhill ElectraMate 2000 - Page 24

gledhill ElectraMate 2000
44 pages
Print Icon
To Next Page IconTo Next Page
To Next Page IconTo Next Page
To Previous Page IconTo Previous Page
To Previous Page IconTo Previous Page
Loading...
Supplied By www.heating spares.co Tel. 0161 620 6677
Page 24
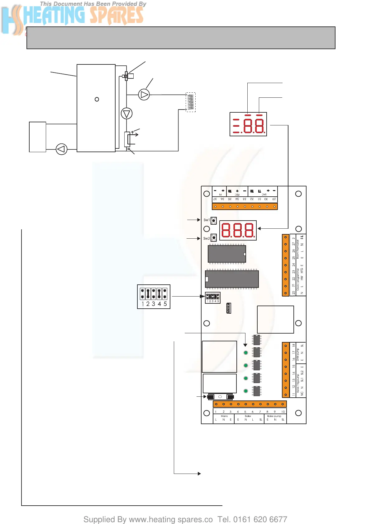
2.0 INSTALLATION
2.3 COMMISSIONING
1
2
3
4
APPLIANCE CONTROL BOARD (A.C.B)
4 = PERMANENTLY ON
3 = HEATING PUMP ON
2 = BOILER PUMP ON
1 = ELEC. BOILER ON
Green
LED'S
Fuse
Jumper
Settings
SW1
SW2
8
LED DISPLAY
BAR 1 - HT ON
BAR 2 - ST ON
BAR 3 - HW ON
BAR 5 - OFF PEAK ON
BAR 6 - WINTER SWITCH ON
Pump over-run = 3 minutes
Heating
Heating pump
circuit
Sensor T1
Domestic
hot water
Mixing valve
Heat
exchanger pump
Sensor T3
Sensor T2
Thermal store
Boiler pump
Elec.
Flow
Boiler

Related product manuals