EasyManua.ls Logo

Goodman *MEC96 - Wiring Diagrams and Diagnostics; Diagnostic Codes and Wiring Notes

Goodman *MEC96
9 pages
Print Icon
To Previous Page IconTo Previous Page
To Previous Page IconTo Previous Page
Loading...
HIGH VOLTAGE!
DISCONNECT ALL POWER BEFORE SERVICING OR INSTALLING THIS
UNIT. MULTIPLE POWER SOURCES MAY BE PRESENT. FAILURE TO
DO SO MAY CAUSE PROPERTY DAMAGE, PERSONAL INJURY OR DEATH.
9
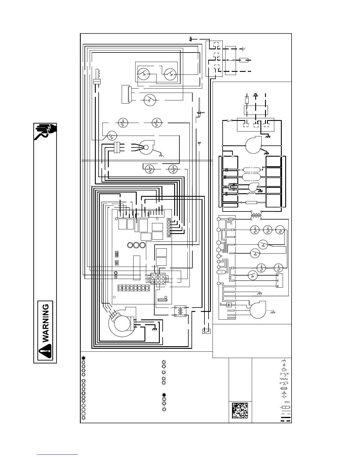
Wiring is subject to change. Always refer to the wiring diagram on the unit for the most up-to-date wiring.
WIRING DIAGRAMS
*MEC96
G
N
G
N
D
C
O
L
O
R
C
O
D
E
S
:
G
N
G
R
E
E
N
R
D
R
E
D
G
Y
G
R
A
Y
P
U
P
U
R
P
L
E
P
K
P
I
N
K
B
K
B
L
A
C
K
B
L
B
L
U
E
W
H
W
H
I
T
E
B
R
B
R
O
W
N
Y
L
Y
E
L
L
O
W
O
R
O
R
A
N
G
E
G
N
D
B
K
RD
RD
GN
GN
24
VAC
115
VAC
G
N
D
GRD
BK
Y
L
O
Y
W
1
W
2
R
G
C
T
W
I
N
0140F0201
1-A
BR
PK
GY
OR
GN
BL
YL
S
2
S
1
BK
HUM
X-FMR
L1
CIRC-H
EAC-H
5
2
14
3
2
4
V
3
A
F
U
S
E
N
E
U
T
R
A
L
D
I
A
G
N
O
S
T
I
C
L
E
D
’S
5 CIRCUIT CONNECTOR
1
0
6
3
4
5
2
7
1
1
1
1
2
8
9
F
R
O
N
T
C
O
V
E
R
P
R
E
S
S
U
R
E
S
W
I
T
C
H
N
O
C
F
U
S
E
3
A
M
I
C
R
O
T
O
P
S
2
(
2
)
T
R
(
9
)
G
H
I
C
T
H
(
5
)
24V THERMOSTAT CONNECTIONS
V
A
L
V
E
G
A
S
W
2
T
R
A
N
S
F
O
R
M
E
R
H
L
I
(
6
)
Y
2
Y
1
H
L
O
(
1
1
)
G
N
D
(
4
)
O
M
V
L
(
7
)
N
O
W
1
C
R
C
O
N
T
R
O
L
S
A
U
T
O
R
E
S
E
T
A
U
X
I
L
I
A
R
Y
L
I
M
I
T
L
I
M
I
T
C
O
N
T
R
O
L
S
M
A
N
U
A
L
R
E
S
E
T
R
O
L
L
O
U
T
P
R
E
S
S
.
S
W
T
I
C
H
H
I
G
H
F
I
R
E
C
S
W
I
T
C
H
L
O
W
F
I
R
E
P
R
E
S
S
.
M
V
H
(
1
)
D
E
H
U
M
G
N
D
P
S
1
(
1
2
)
L
I
M
I
T
C
O
N
T
R
O
L
A
U
T
O
R
E
S
E
T
P
R
I
M
A
R
Y
2
4
V
A
C
N
O
P
M
M
V
C
(
8
)
I
N
T
E
G
R
A
T
E
D
C
O
N
T
R
O
L
M
O
D
U
L
E
C
B
L
W
R
A
I
R
I
N
D
O
O
R
C
I
R
C
U
L
A
T
O
R
R
T
O
M
I
C
R
O
T
O
T
O
+
V
D
C
E
A
C
H
U
M
I
D
I
F
I
E
R
I
D
N
E
U
T
R
A
L
WIRING TO UNIT
L
INTEGRATED CONTROL MODULE
H
O
T
S
U
R
F
A
C
E
G
N
D
B
L
W
R
N
E
U
T
R
A
L
WARNING:
GROUNDED.
OVERCURRENT PROTECT
IO
N DEVICE
MUST BE
P
ROPERLY
S
W
I
T
C
H
N
E
U
T
R
A
L
E
L
E
C
T
R
O
N
I
C
A
I
R
I
G
N
I
N
D
H
I
D
I
S
C
O
N
N
E
C
T
F
S
POLARIZED AND
N
E
U
T
R
A
L
L
I
N
E
N
E
U
T
R
A
L
J
U
N
C
T
I
O
N
B
O
X
B
L
W
R
I
N
D
L
O
N
I
N
D
O
O
R
A
I
R
C
L
E
A
N
E
R
H
U
M
D
O
O
R
N
E
U
T
R
A
L
INTEGRATED CONTROL MODULE
TO 115
VAC/
1 /60 HZ POWER SUPPLY WITH
1
1
5
V
A
C
H
U
M
-
O
U
T
I
G
N
IT
E
R
C
I
R
C
U
L
A
T
O
R
BEFORE SERVICING.
F
L
A
M
E
S
E
N
S
O
R
DISCONNECT POWER
L
I
N
E
G
N
D
T4
T1
T2
OR
BR
BK
WH
WH
WH
WH
PU
GY
YL
OR
BR
PK
RD
WH
BK
PU
GY
BR
OR
RD
BK
OR
BL
RD
WH
WH
T3
COM
L
I
N
E
N
O
L
I
M
I
T
C
O
N
T
R
O
L
A
U
X
I
L
I
A
R
Y
A
U
T
O
R
E
S
E
T
PK
WARNING:DISCONNECT
TRANSFORMER
40 VA
PU
G
Y
N
N
O
3
BR
1
S
W
I
T
C
H
P
R
E
S
S
U
R
E
L
O
W
F
I
R
E
S
E
N
S
O
R
F
L
A
M
E
P
R
E
S
S
U
R
E
S
W
I
T
C
H
F
R
O
N
T
C
O
V
E
R
C
TO UNIT MUST BE
BL
RD
AND GROUNDED.
1
JUNCTION BOX
WH
SWITCH (PRESS.)
FIELD SPLIC
E
FIELD GND
3
GN
BL
B
R
WH
N
O
L
I
M
I
T
C
O
N
T
R
O
L
A
U
T
O
R
E
S
E
T
P
R
I
M
A
R
Y
WH
1
OR
3
0
k
B
T
U
A
N
D
4
0
k
B
T
U
)
C
O
N
T
R
O
L
S
(
S
I
N
G
L
E
C
O
N
T
R
O
L
O
N
M
A
N
U
A
L
R
E
S
E
T
R
O
L
L
O
U
T
L
I
M
I
T
W
H
L
PU
GY
BK
S
W
I
T
C
H
A
S
S
E
M
B
L
Y
I
D
B
L
O
W
E
R
T
W
O
-
S
T
A
G
E
P
R
E
S
S
U
R
E
OR
WH
SERVICING. WIRING
EQUIPMENT GND
INTERNAL TO
S
W
I
T
C
H
P
R
E
S
S
U
R
E
H
I
G
H
F
I
R
E
PROT.
D
EVICE
INTEGR
ATED
CONTROL
PK
PU
PLUG CONNECTION
2
4
B
K
C
D
O
O
R
O
P
E
N
)
(
O
P
E
N
W
H
E
N
D
O
O
R
S
W
I
T
C
H
C
O
M
P
A
R
T
M
E
N
T
B
L
O
W
E
R
SWITCH (T
E
MP.)
G
N
D
1
BLOWER
CIRCULATOR
JUNCTION
OR
4
0
V
A
/
6
0
H
Z
D
I
S
C
O
N
N
E
C
T
(
W
H
I
T
E
R
O
D
G
E
R
S
)
G
A
S
V
A
L
V
E
T
W
O
S
T
A
G
E
O
V
E
R
C
U
R
R
E
N
T
C
O
N
N
E
C
T
O
R
2
C
I
R
C
U
I
T
LOW VOLTAGE (
24V)
YL
G
N
D
WH
CHASSIS GROUND
2
3
I
G
N
I
T
E
R
S
U
R
F
A
C
E
H
O
T
2
YL
PU
C
2
C
B
L
O
W
E
R
D
R
A
F
T
I
N
D
U
C
E
D
BK
PM
BK
B
L
O
W
E
R
C
O
M
P
A
R
T
M
E
N
T
1
1
5
V
A
C
/
1
OVERCURRENT
BK
HARNESS
ECM MTR
HI
TERMINAL
OR
POWER BEFORE
IGNITE
R
R
D
BK
T
O
RD
P
O
W
E
R
S
U
P
P
L
Y
W
I
T
H
B
U
R
N
E
R
C
O
M
P
A
R
T
M
E
N
T
P
R
O
T
E
C
T
I
O
N
D
E
V
I
C
E
PROPERLY POLARIZED
R
D
B
K
O
R
B
L
LOW VOLTAGE F
IEL
D
HI VOLTAG
E (115V)
HI VOLTAG
E FIELD
R
A
P
I
D
=
T
W
I
N
N
I
N
G
E
R
R
O
R
S
T
E
A
D
Y
O
N
=
I
N
T
E
R
N
A
L
G
V
E
R
R
O
R
,
M
I
C
R
O
A
N
D
F
R
E
Q
U
E
N
C
Y
C
H
E
C
K
1
F
L
A
S
H
=
F
L
A
M
E
S
E
N
S
E
D
W
H
E
N
N
O
F
L
A
M
E
S
H
O
U
L
D
B
E
P
R
E
S
E
N
T
4
F
L
A
S
H
E
S
=
O
P
E
N
L
I
M
I
T
S
W
I
T
C
H
0
4
3
2
1
R
E
D
L
E
D
F
L
A
S
H
C
O
D
E
2
F
L
A
S
H
E
S
=
P
R
E
S
S
U
R
E
S
W
I
T
C
H
S
T
U
C
K
C
L
O
S
E
D
/
I
N
D
U
C
E
R
E
R
R
O
R
3
F
L
A
S
H
E
S
=
1
S
T
S
T
A
G
E
P
R
E
S
S
U
R
E
S
W
I
T
C
H
S
T
U
C
K
C
L
O
S
E
D
/
I
N
D
U
C
E
R
E
R
R
O
R
5
F
L
A
S
H
E
S
=
O
P
E
N
R
O
L
L
O
U
T
/
O
P
E
N
F
U
S
E
D
E
T
E
C
T
E
D
6
F
L
A
S
H
E
S
=
P
R
E
S
S
U
R
E
S
W
I
T
C
H
C
Y
C
L
E
L
O
C
K
O
U
T
7
F
L
A
S
H
E
S
=
E
X
T
E
R
N
A
L
L
O
C
K
O
U
T
(
R
E
T
R
I
E
S
)
9
6
5
7
8
8
F
L
A
S
H
E
S
=
E
X
T
E
R
N
A
L
L
O
C
K
O
U
T
(
R
E
C
Y
C
L
E
S
)
9
F
L
A
S
H
E
S
+
G
R
O
U
N
D
I
N
G
O
R
R
E
V
E
R
S
E
D
P
O
L
A
R
I
T
Y
1
0
F
L
A
S
H
E
S
=
G
A
S
F
L
O
W
W
I
T
H
N
O
C
A
L
L
F
O
R
H
E
A
T
1
1
F
L
A
S
H
E
S
=
L
I
M
I
T
S
W
I
T
C
H
O
P
E
N
-
B
L
O
W
E
R
F
A
I
L
U
R
E
1
2
F
L
A
S
H
E
S
=
I
G
N
I
T
O
R
R
E
L
A
Y
F
A
I
L
U
R
E
1
1
1
0
1
2
3
D
O
U
B
L
E
F
L
A
S
H
E
S
=
2
N
D
S
T
A
G
E
P
R
E
S
S
U
R
E
S
W
I
T
C
H
S
T
U
C
K
O
P
E
N
/
I
N
D
U
C
E
R
E
R
R
O
R
3
F
L
A
S
H
E
S
=
W
2
P
R
E
S
E
N
T
W
I
T
H
N
O
W
1
2
F
L
A
S
H
E
S
=
N
O
R
M
A
L
O
P
E
R
A
T
I
O
N
W
I
T
H
C
A
L
L
F
O
R
2
N
D
S
T
A
G
E
H
E
A
T
1
F
L
A
S
H
=
N
O
R
M
A
L
O
P
E
R
A
T
I
O
N
W
I
T
H
C
A
L
L
F
O
R
1
S
T
S
T
A
G
E
H
E
A
T
(
W
1
)
2
4
3
1
4
F
L
A
S
H
E
S
=
Y
P
R
E
S
E
N
T
W
I
T
H
N
O
G
C
A
L
L
,
Y
L
O
P
R
E
S
E
N
T
W
I
T
H
N
O
G
C
A
L
L
A
M
B
E
R
LE
D
F
L
A
S
H
C
O
D
E
R
A
P
I
D
=
L
O
W
F
L
A
M
E
S
E
N
S
E
C
U
R
R
E
N
T
R
A
P
I
D
=
N
O
R
M
A
L
O
P
E
R
A
T
I
O
N
W
I
T
H
C
A
L
L
F
O
R
F
A
N
(
G
)
S
T
E
A
D
Y
O
N
=
S
T
A
N
D
B
Y
1
F
L
A
S
H
=
N
O
R
M
A
L
O
P
E
R
A
T
I
O
N
W
I
T
H
C
A
L
L
F
O
R
L
O
W
S
T
A
G
E
C
O
O
L
(
Y
L
O
+
G
)
0
2
1
G
R
E
E
N
L
E
D
F
L
A
S
H
C
O
D
E
2
F
L
A
S
H
E
S
=
N
O
R
M
A
L
O
P
E
R
A
T
I
O
N
W
I
T
H
C
A
L
L
F
O
R
H
I
G
H
S
T
A
G
E
C
O
O
L
/
O
R
S
I
N
G
L
E
S
T
A
G
E
C
O
O
L
I
N
G
(
Y
+
G
)
0
1
.
S
E
T
H
E
A
T
A
N
T
I
C
I
P
A
T
O
R
O
N
R
O
O
M
T
H
E
R
M
O
S
T
A
T
A
T
0
.
7
A
M
P
S
.
N
O
T
E
S
:
$
2
.
M
A
N
U
F
A
C
T
U
R
E
R
S
S
P
E
C
I
F
I
E
D
R
E
P
L
A
C
E
M
E
N
T
P
A
R
T
S
M
U
S
T
B
E
U
S
E
D
W
H
E
N
S
E
R
V
I
C
I
N
G
.
M
U
S
T
B
E
R
E
P
L
A
C
E
D
I
T
M
U
S
T
B
E
R
E
P
L
A
C
E
D
W
I
T
H
W
I
R
I
N
G
M
A
T
E
R
I
A
L
H
A
V
I
N
G
A
T
E
M
P
E
R
A
T
U
R
E
R
A
T
I
N
G
O
F
A
T
L
E
A
S
T
1
0
5
C
.
U
S
E
C
O
P
P
E
R
C
O
N
D
U
C
T
O
R
S
O
N
L
Y
.
4
.
U
N
I
T
M
U
S
T
B
E
P
E
R
M
A
N
E
N
T
L
Y
G
R
O
U
N
D
E
D
A
N
D
C
O
N
F
O
R
M
T
O
N
.E
.
C
.
A
N
D
L
O
C
A
L
C
O
D
E
S
.
5
.
T
O
R
E
C
A
L
L
T
H
E
L
A
S
T
6
F
A
U
L
T
S
,
M
O
S
T
R
E
C
E
N
T
T
O
L
E
A
S
T
R
E
C
E
N
T
,
D
E
P
R
E
S
S
S
W
I
T
C
H
F
O
R
M
O
R
E
T
H
A
N
2
S
E
C
O
N
D
S
W
H
I
L
E
I
N
S
T
A
N
D
B
Y
(
N
O
T
H
E
R
M
O
S
T
A
T
I
N
P
U
T
S
)
3
.
I
F
A
N
Y
O
F
T
H
E
O
R
I
G
I
N
A
L
W
I
R
E
A
S
S
U
P
P
L
I
E
D
W
I
T
H
T
H
E
F
U
R
N
A
C
E

Related product manuals