EasyManua.ls Logo

Goodman MH95 - Page 29

Goodman MH95
56 pages
Print Icon
To Next Page IconTo Next Page
To Next Page IconTo Next Page
To Previous Page IconTo Previous Page
To Previous Page IconTo Previous Page
Loading...
29
Natural Gas Capacity of Pipe
In Cubic Feet of Gas Per Hour (CFH)
Length of Nominal Black Pipe Size
Pipe in Feet 1/2" 3/4" 1" 1 1/4" 1 1/2"
10 132 278 520 1050 1600
20 92 190 350 730 1100
30 73 152 285 590 980
40 63 130 245 500 760
50 56 115 215 440 670
60 50 105 195 400 610
70 46 96 180 370 560
80 43 90 170 350 530
90 40 84 160 320 490
100 38 79 150 305 460
(Pressure 0.5 psig or less and pressure drop of 0.3" W.C.; Based on
0.60 Specific Gravity Gas)
CFH =
BTUH Furnace Input
Heating Value of Gas (BTU/Cubic Foot)
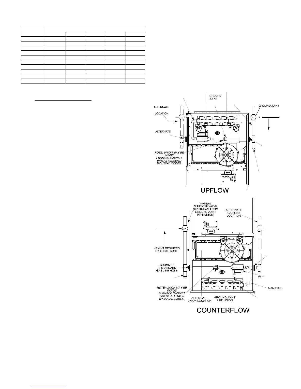
To connect the furnace to the building’s gas piping, the installer must
supply a ground joint union, drip leg, manual shutoff valve, and line and
fittings to connect to gas valve. In some cases, the installer may also
need to supply a transition piece from 1/2" pipe to a larger pipe size.
The following stipulations apply when connecting gas piping. Refer to
Gas Piping Connections figure for typical gas line connections to the
furnace.
Gas piping must be supported external to the furnace cabinet
so that the weight of the gas line does not distort the burner
rack, manifold or gas valve.
Use black iron or steel pipe and fittings for building piping.
Where possible, use new pipe that is properly chamfered,
reamed, and free of burrs and chips. If old pipe is used, be
sure it is clean and free of rust, scale, burrs, chips, and old
pipe joint compound.
Use pipe joint compound on male threads ONLY. Always
use pipe joint compound (pipe dope) that is APPROVED
FOR ALL GASES. DO NOT apply compound to the first two
threads.
Use ground joint unions.
Install a drip leg to trap dirt and moisture before it can enter
the gas valve. The drip leg must be a minimum of three
inches long.
Install a 1/8" NPT pipe plug fitting, accessible for test gauge
connection, immediately upstream of the gas supply
connection to the furnace.
Always use a back-up wrench when making the connection
to the gas valve to keep it from turning. The orientation of
the gas valve on the manifold must be maintained as
shipped from the factory. Maximum torque for the gas valve
connection is 375 in-lbs; excessive over-tightening may
damage the gas valve.
Install a manual shutoff valve between the gas meter and
unit within six feet of the unit. If a union is installed, the
union must be downstream of the manual shutoff valve,
between the shutoff valve and the furnace.
Tighten all joints securely.
Connect the furnace to the building piping by one of the
following methods:
Rigid metallic pipe and fittings.
Semi-rigid metallic tubing and metallic fittings.
Aluminum alloy tubing must not be used in exterior
locations. In order to seal the grommet cabinet penetration,
rigid pipe must be used to reach the outside of the cabinet.
A semi-rigid connector to the gas piping may be used from
there.
Use listed gas appliance connectors in accordance with their
instructions. Connectors must be fully in the same room as
the furnace.
Protect connectors and semi-rigid tubing against physical and
thermal damage when installed. Ensure aluminum-alloy tubing
and connectors are coated to protect against external corrosion
when in contact with masonry, plaster, or insulation, or subjected
to repeated wetting by liquids such as water (except rain water),
detergents, or sewage.
MANUAL
SHUT OFF VALVE
(UPSTREAM FROM
PIPE UNION)
GROMMET
IN STANDARD
GAS LINE HOLE
GAS LINE
GROMMET IN
GAS LINE
HOLE
HEIGHT REQUIRED
BY LOCAL CODE
PIPE
UNION
DRIP LEG
MANIFOLD
BURNERSGAS VALVE
ALTERNATE
UNION
LOCATION
GROMMET IN
ALTERNATE
GAS LINE
HOLE
DRIP LEG
BURNERS
GAS VALVE

Table of Contents

Related product manuals