EasyManua.ls Logo

Goodman MH95 - Wiring Diagram

Goodman MH95
56 pages
Print Icon
To Next Page IconTo Next Page
To Next Page IconTo Next Page
To Previous Page IconTo Previous Page
To Previous Page IconTo Previous Page
Loading...
49
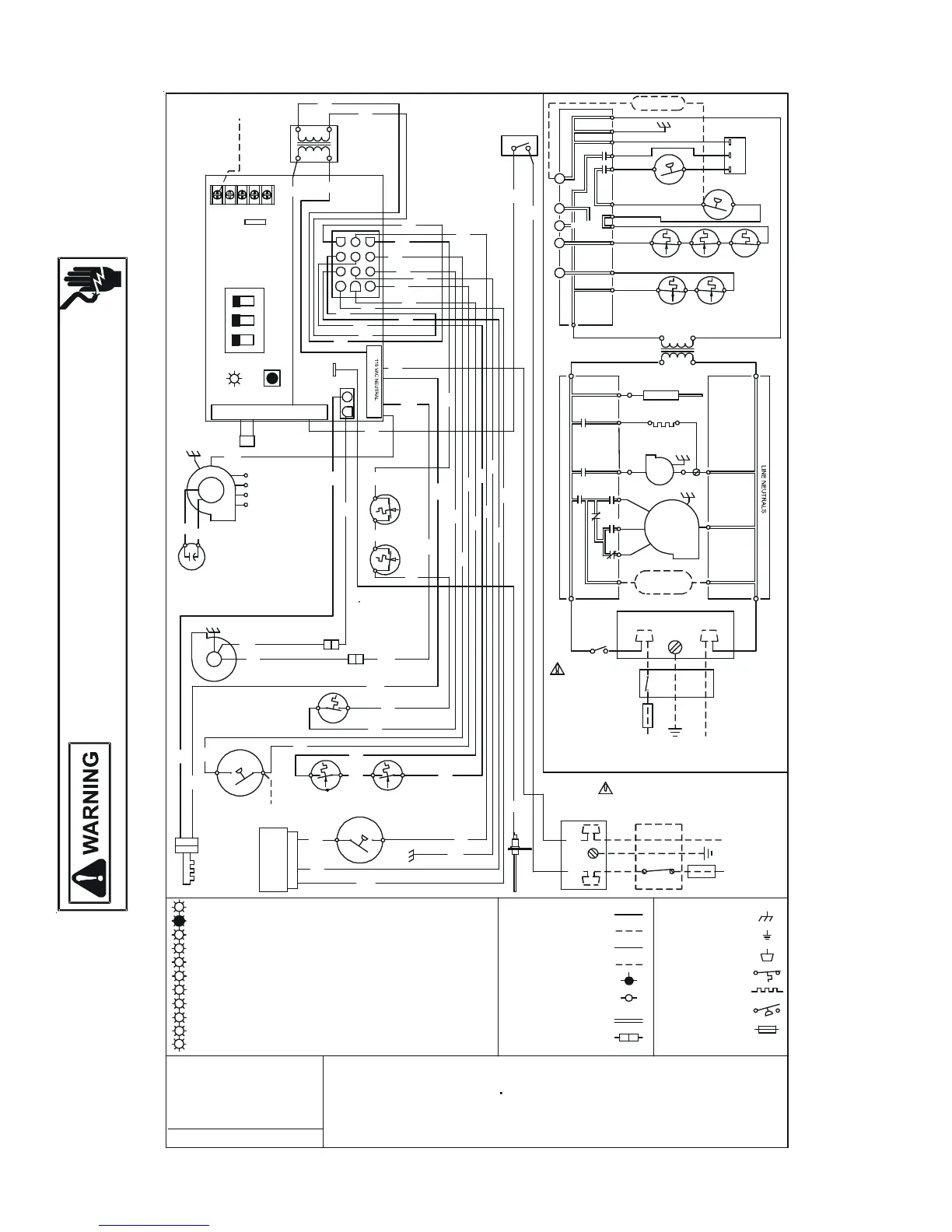
*MH95[0453,0704,0905D]
*MH95[0703,0904,1155]
Wiring is subject to change. Always refer to the wiring diagram on the unit for the most up-to-date wiring.
WIRING DIAGRAM
HIGH VOLTAGE!
D
ISCONNECT
ALL
POWER
BEFORE
SERVICING
OR
INSTALLING
THIS
UNIT
.
M
ULTIPLE
POWER
SOURCES
MAY
BE
PRESENT
. F
AILURE
TO
DO
SO
MAY
CAUSE
PROPERTY
DAMAGE
,
PERSONAL
INJURY
OR
DEATH
.
R
YL YELLOW
OR ORANGE
PU PURPLE
GN GREEN
BK BLACK
BR BROWN
WH WHITE
BL BLUE
GY GRAY
RD RED
COLOR CODES:
LOW VOLTAGE (24V)
LOW VOLTAGE FIELD
HI VOLTAGE (115V)
HI VOLTAGE FIELD
NOTES:
1. SET H EAT ANTICIPATOR ON ROOM THERMOSTAT AT 0.7 AMPS.
2. MANUFACTURER'S SPECIFIED REPLACEMENT PARTS MUST BE USED WHEN SERVICING.
0140F00663 REV. A
OR (MED LOW)
BL (MED)
RD (LOW)
GAS VALVE (HONEY WELL)
C
PM
CG W
INTERNAL TO
INTEGRATED CONTROL
JUNCTION
EQUIPMENT GND
FIELD GND
DIAGNOSTIC
LED
2 CIRCUIT
CONNECTOR
HOT
SURFACE
IGNITER
OVERCURRENT
PROT. DEVICE
IGNITER
TH (3)
INTEGRATED
CONTROL MODULE
JUNCTION BOX
LINE-H
INTEGRATED CONTROL MODULE
GND
DISCONNECT
LN
DISCONNECT POWER
BEFORE SERVICING.
WIRING TO UNIT
MUST BE
PROPERLY
POLARIZED
AND GROUNDED.
OVERCURRENT PROTECTION DEVICE
BR
GY
RD
BL
BK
4. IF HEATING AND COOLING BLOWER SPEEDS ARE NOT THE SAME, DISCARD JUMPER BEFORE CONNECTING BLOWER LEADS. UNUSED
BLOWER LEADS MUST BE PLACED ON "PARK" TERMINALS OF INTEGRATED CONTROL OR TAPED.
3. IF ANY OF THE ORIGINAL WIRE AS SUPPLIED WITH THE FURNACE MUST BE REPLACED, IT MUST BE REPLACED WITH WIRING MATERIAL
HAVING A TEMPERATURE RATING OF AT LEAST 105
TERMINAL
SWITCH (PRESS.)
5. UNIT MUST BE PERMANENTLY GROUNDED AND CONFORM TO N.E.C. AND LOCAL CODES.
PK PINK
115 VAC HOT AND PARK TERMINALS
LINE-H
FLAME
SENSOR
FRONT COVER
PRESSURE SWITCH
( SINGLE CONTROL ON 45K BTU )
N
O
C
GY
BK
PLUG CONNECTION
FIELD SPLICE
SWITCH (TEMP.)
OR
24V THERMOSTAT
CONNECTIONS
GR
GND
115 VAC
24 VAC
BLOWER
COMPARTMENT
DOOR SWITCH
(OPEN WHEN
DOOR OPEN)
DOOR
SWITCH
WARNING:DISCONNECT POWER BEFORE
SERVICING.WIRING TO UNIT MUST BE
PROPERLY POLARIZED AND GROUNDED.
BK
GND
DISCONNECT
L
POWER SUPPLY WITH
OVERCURRENT PROTECTION
DEVICE
WH
JUNCTION
BOX
OR
ID BLOWER
PRESSURE
SWITCH
HEAT-H
GND
WH
RD
WH
GND
BURNER COMPARTMENT
BLOWER COMPARTMENT
NOTE 4
SEE
N
O
COOL-H
BK (HI)
BR
BR
CAPACITOR
YL
WH
YL
CONTROL
PRIMARY LIMIT
AUTO RESET
BL
PU
MANUAL RESET ROLLOUT LIMIT CONTROL(S)
RD
OR
PK
BK
WH WH
BLOWER
INDUCED DRAFT
MANUAL RESET
AUXILIARY LIMITS
(1) IN UPFLOW
BLOWER DECK
(2) IN C'FLOW
BLOWER HOUSING
C
CIRCULATOR
BLOWER
FS
LIMIT CONTROLS
MANUAL RESET AUXILIARY
H
I
H
E
A
T
-
H
L
O
H
E
A
T
-
H
IGNITER
HOT SURFACE
IND
IGN
EAC-H
AIR CLEANER
ELECTRONIC
BLWR
CIRCULATOR
BLWR
ID
FLAME SENSOR
115 VA C
TRANSFORMER
40 VA
24 VAC
GND
CONTROL
LIMIT
PRIMARY
AUTO RESET
(SINGLE CONTROL ON 45K BTU)
LIMIT CONTROL(S)
MANUAL RESET ROLLOUT
RO1 (5)
RO2 (11)
HLO (1)
HLI (7)
MVC (9)
GND (8)
BL
YL
OR
RD
GR
BR
PK
GY
BK
MICRO
TO
C
G
Y
W
R
TRANSFORMER
40 VA
2
WH
OR
BL
YL
OR
OR
GY
PK
RD
OR
GY
XFMR-H
TERMINALS
GY
OR
GR
BR
1
2
3
12
11
10
98
7
65
WARNING:
C. USE COPPER CONDUCTORS ONLY.
24 VAC
HUMIDIFIER
24 VAC
HUMIDIFIER
HUMIDIFIER
PSO (4)
MVL(2)
PS (10)
C
NO
C
NO
FRONT COVER
PRESSURE SWITCH
ID BLOWER
PRESSURE
SWITCH
0
C
7
6
5
4
3
2
1
OFF = CONTROL FAILURE
STEADY ON = NORMAL OPERATION
1 FLASH =
2 FLASHES = PRESSURE SWITCH STUCK CLOSED
3 FLASHES = PRESSURE SWITCH STUCK OPEN
4 FLASHES = OPEN HIGH LIMIT
5 FLASHES = FLAME SENSE WITHOUT GAS VALVE
OPEN ROLLOUT OR OPEN FUSE
7 FLASHES = LOW FLAME SIGNAL
6 FLASHES =
SYSTEM LOCKOUT (RETRIES EXCEEDED)
CONTINUOUS/RAPID FLASHES = REVERSED 115 VAC POLARITY
CONTROL
MODULE
INTEGRATED
FUSE
ON
OFF
2ND
STAGE
DELAY
MODE
HEAT
OFF
DELAY
FS
1
3
2
HI
PM
GAS
VALVE
C
HI
MVH (12)
FACTORY SETTINGS
SHOWN
*
*
*
*
SEE
NOTE 6
COOL-H
TO 115VAC/ 1
Ø /60 HZ POWER SUPPLY WITH
PU
Y
6. TO RECALL THE LAST 5 FAULTS, MOST RECENT TO LEAST RECENT, DEPRESS SWITCH FOR MORE THAN 2 SECONDS WHILE IN
STANDBY (NO THERMOSTAT INPUTS)
8
GY
BK
WH
BK
TR
6
XFMR-H
4
N
TO 115 V
A
C / 1Ø / 60HZ
1
PK
WH
WH
WH
OR
8 FLASHES = CHECK IGNITER OR IMPROPER GROUNDING

Table of Contents

Related product manuals