EasyManua.ls Logo

Graf PLATIN - 9. Minimax Filter Package Installation; 9.1 Minimax Internal Filter; 9.2 Technical Specifications; 9.3 Installation of inflow pipe and overflow siphon

Graf PLATIN
18 pages
Print Icon
To Next Page IconTo Next Page
To Next Page IconTo Next Page
To Previous Page IconTo Previous Page
To Previous Page IconTo Previous Page
Loading...
12 / 18
9. Minimax Filter Package Installation
10. Inspection and servicing
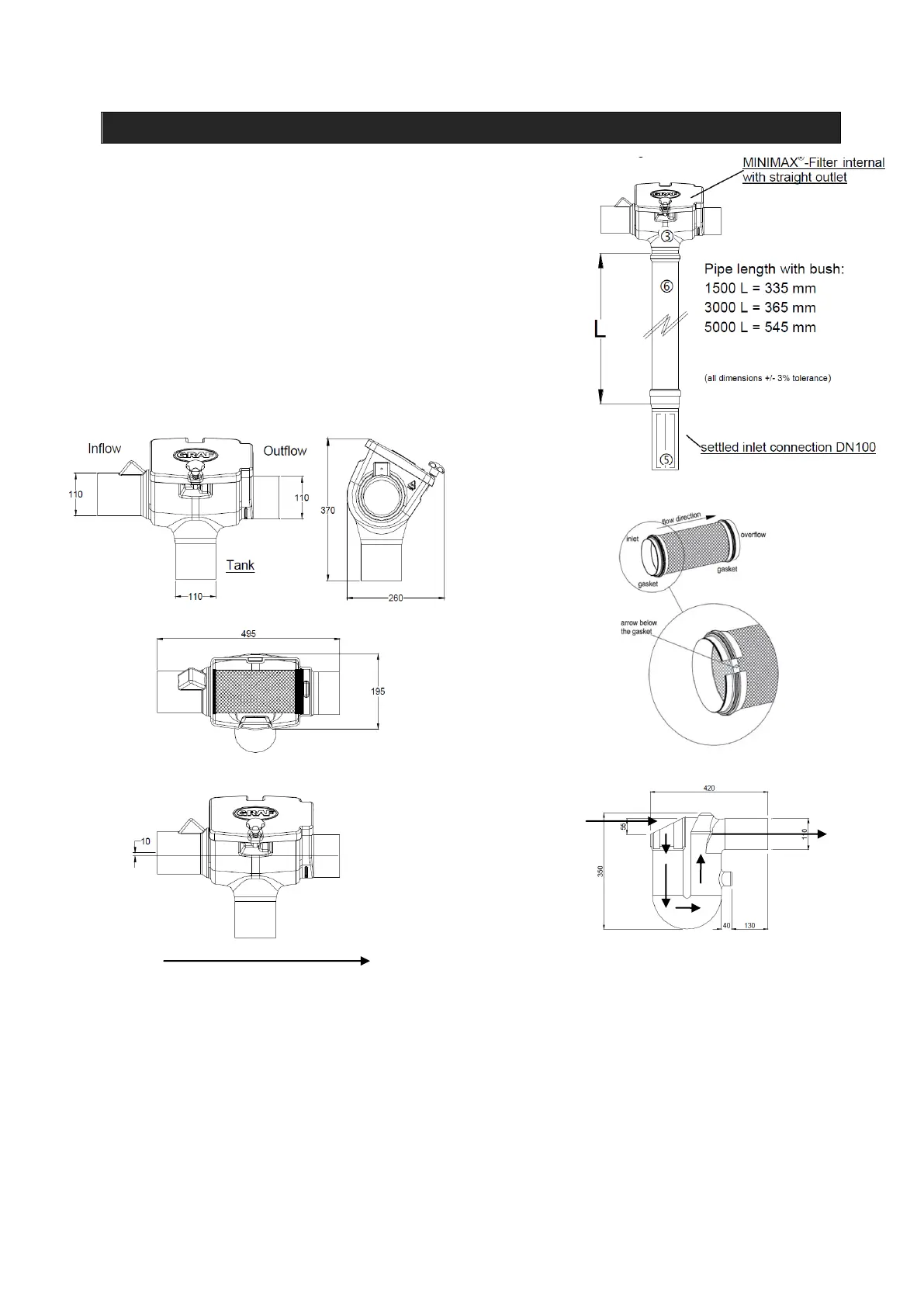
9.1. Minimax Internal Filter
The Filter Package is supplied with Filter Body, Filter Basket,
Spray Cleaner, Two Spannfix Collars, Emergency Overflow Siphon,
Rodent Guard, Settled Inlet Connection, One 150mm Rubber Ring
Adaptor and One 250mm Rubber Ring Adaptor
The filter has a built in difference between inflow/outflow of 10mm.
• The filter is suitable for roof areas up to 350 square metres.
• The mesh width in the sieve insert is 0.35mm.
9.2. Technical Specifications
9.3 Installation of inflow pipe and overflow siphon
The emergency overflow siphon (pictured at top on page on the left and on Page 13) is installed at 90
degrees to the inlet and outlets of the tank; the Rodent Guard is inserted in the opening of the trap.
9.4 Filter Installation
Connect the filter body into the bell end of 100 mm PVC pipe. Having already cut the pipe to the required
length connect it with the inlet stilling system ensuring it is firmly in place.
Flow
Overflow Siphon/Skimmer

Other manuals for Graf PLATIN

Related product manuals