EasyManua.ls Logo

Gree FGR30Pd/DNa-X

Gree FGR30Pd/DNa-X
41 pages
To Next Page IconTo Next Page
To Next Page IconTo Next Page
To Previous Page IconTo Previous Page
To Previous Page IconTo Previous Page
Loading...
Ducted Type Split Air-Conditioner Units(Inverter Series)
3
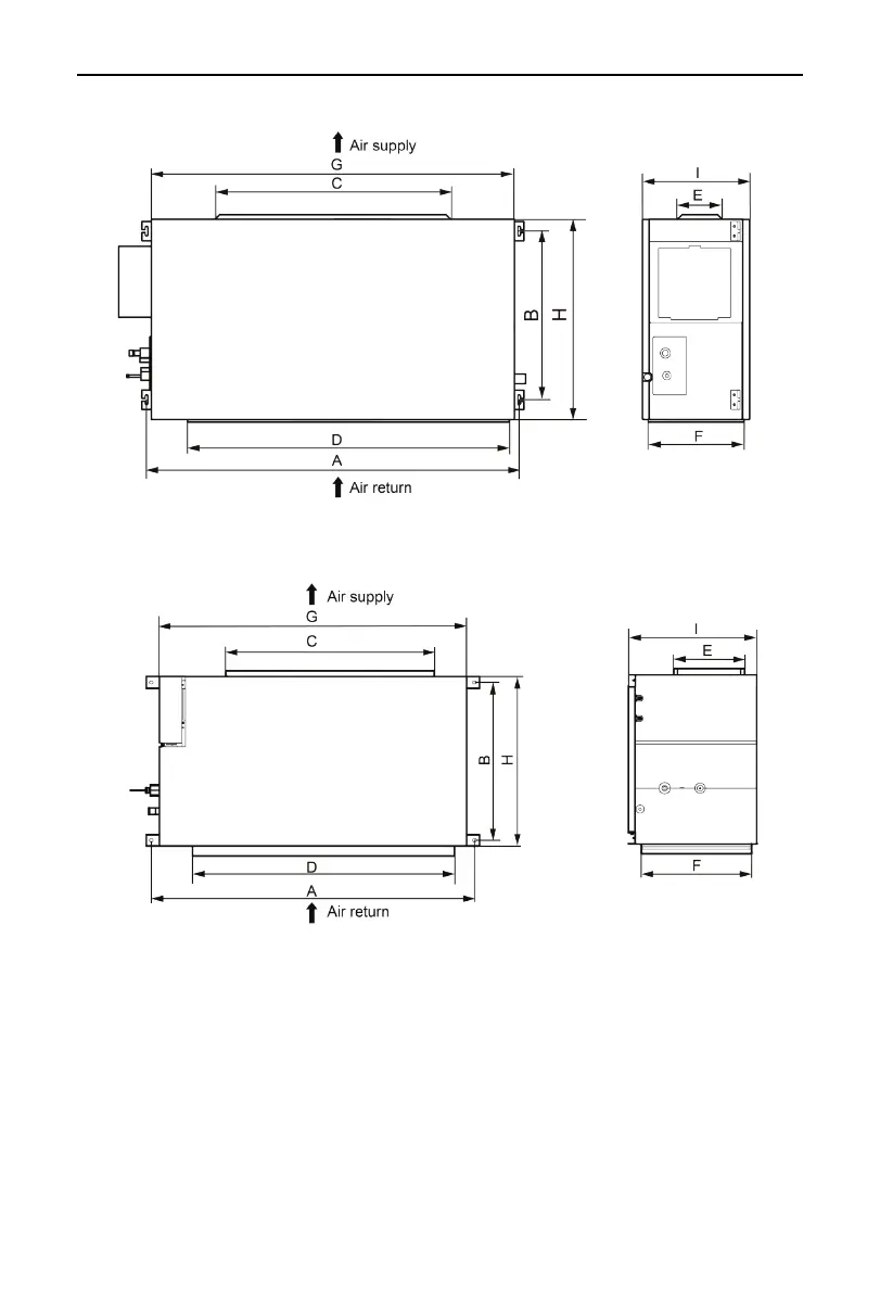
(1) Below are the outline dimension applicable to indoor units:
a.20/25/30kW
b. 40kW
Fig.1

Other manuals for Gree FGR30Pd/DNa-X

Related product manuals