EasyManua.ls Logo

Gree FP-170WAF-R

Gree FP-170WAF-R
5 pages
To Next Page IconTo Next Page
To Next Page IconTo Next Page
To Previous Page IconTo Previous Page
To Previous Page IconTo Previous Page
Loading...
Climatiseur ventilé encastrable
Guide d'utilisation (Instructions d’origine)
Climatiseurs commerciaux
AVERTISSEMENT !
L’installation et la mise en service doivent être effectuées par un professionnel qualié, conformé-
ment aux instructions de ce manuel. Dans le cas contraire, il existe un risque de fuites, de choc
électrique ou d’incendie, etc.
L’unité doit être câblée conformément au schéma de câblage. Dans le cas contraire, le moteur
électrique risque de s’enammer.
L’unité doit être mise à la terre de manière sécurisée pour éviter des blessures aux personnes ou
d’endommager les biens du fait d’une mauvaise isolation.
Avant d'accéder aux bornes, déconnecter tous les circuits d'alimentation.
Avis à l’utilisateur
Cet appareil est conçu pour être utilisé par des utilisateurs qualiés ou formés au sein
de boutiques, dans l’industrie légère ou des fermes, ou pour un usage commercial par des
utilisateurs novices.
MISE AU REBUT : Ne pas mettre ce produit au rebut avec les déchets ménagers. Il doit
faire l’objet d’un tri sélectif et d'un traitement spécial d’élimination.
Cet appareil peut être utilisé par des enfants de 8 ans et plus,
et par des personnes présentant des capacités physiques, senso-
rielles ou mentales réduites, ou ne disposant d'aucune expérience
ou connaissance, à condition qu'ils aient reçu une supervision ou
des instructions relatives à l'utilisation sûre de l'appareil, et qu'ils
comprennent les risques encourus. Les enfants ne doivent pas jouer
avec cet appareil. Le nettoyage et l'entretien à la charge de l'utilisa-
teur ne doivent pas être réalisés par des enfants sans surveillance.
1 PORTÉE D’APPLICATION
(1) La température d’entrée d’eau pour la climatisation ne doit pas être inférieure à 5 °C. Dans le cas
contraire, de la condensation peut se former sur la surface de l’unité. La température d’entrée
d’eau pour le chauffage ne doit pas excéder 80 °C (60 °C). Dans le cas contraire, le tuyau en
cuivre risque de se corroder.
(2) La plage de température ambiante pour la climatisation devrait être de 16 à 40 °C pour la
climatisation et de 10 à 35 °C pour le chauffage. L'humidité relative ne doit pas dépasser 95 %.
(3) L’unité fait partie des climatiseurs de confort ; elle ne doit pas être installée en présence de gaz
inammable, de fumée huileuse (comme une cuisine) et d’humidité (comme une buanderie).
Dans le cas contraire, elle ne fonctionnerait pas correctement et sa durée de vie en serait réduite.
(4) Le niveau de pression acoustique continu équivalent pondéré A est inférieur à 70 dB.
2 INSTRUCTIONS D'INSTALLATION
(1) L’unité doit être installée par un technicien qualié qui possède les connaissances du produit,
mais aussi des lois et réglementations locales.
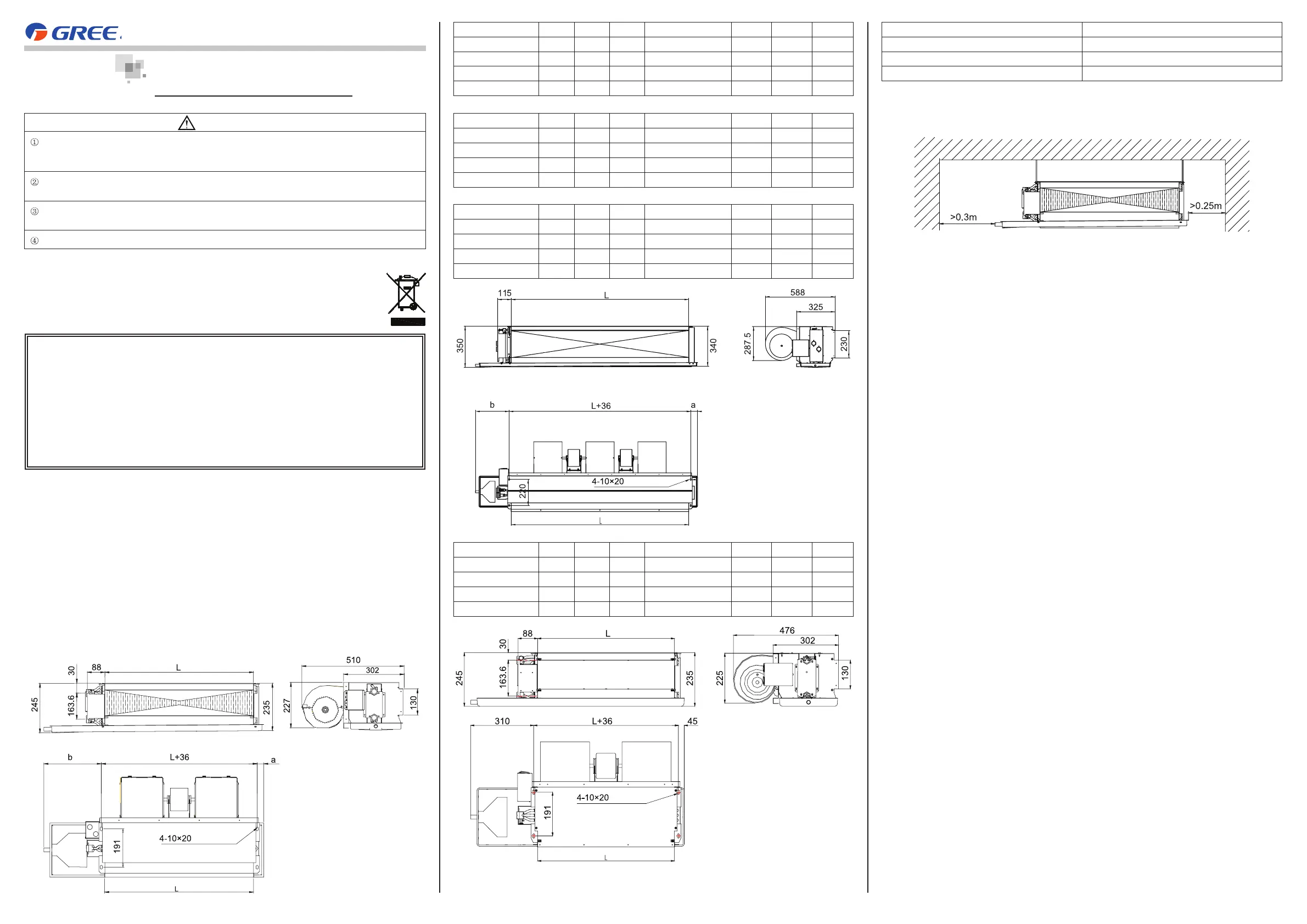
(2) Voir les chiffres ci-dessous pour les dimensions de l’installation. (Unité : mm)
Trou oblong
Séries WA-K L a b Séries WA-K L a b
FP-34WA(H)-K 490 45 310 FP-102WA(H)-K 820 45 310
FP-51WA(H)-K 620 45 310 FP-136WA(H)-K 1400 75 250
FP-68WA(H)-K 740 45 310 FP-170WA(H)-K 1400 75 250
FP-85WA(H)-K 820 45 310 FP-204WA(H)-K 1400 75 250
Séries WAS L a b Séries WAS L a b
FP-34WAS-R 490 45 310 FP-102WAS-R 980 45 310
FP-51WAS-R 620 45 310 FP-136WAS-R 1400 75 250
FP-68WAS-R 740 45 310 FP-170WAS-R 1500 75 310
FP-85WAS-R 820 45 310 FP-204WAS-R 1500 75 310
Séries F-T L a b Séries F-T L a b
FP-34WAF(T)-R 490 45 310 FP-102WAF(T)-R 980 45 310
FP-51WAF(T)-R 620 45 310 FP-136WAF(T)-R 1400 75 250
FP-68WAF(T)-R 740 45 310 FP-170WAF(T)-R 1500 75 310
FP-85WAF(T)-R 820 45 310 FP-204WAF(T)-R 1500 75 310
Trou oblong
Séries WAS L a b Séries F-T L a b
FP-238WAS-R 1250 68 284 FP-238WAF(T)-R 1250 68 284
FP-272WAS-R 1250 68 284 FP-272WAF(T)-R 1250 68 284
FP-306WAS-R 1500 68 284 FP-306WAF(T)-R 1500 68 284
FP-340WAS-R 1500 68 284 FP-340WAF(T)-R 1500 68 284
Trou oblong
Séries WA-K L
FP-51WA5S-K 620
FP-68WA5S-K 740
FP-102WA5S-K 820
(3) L’installation de l’unité doit être sécurisée. Lors de la pose des boulons de suspension, s’assurer
qu’ils sont capables de supporter 4 fois le poids de l’unité. En cas de doutes, ils doivent être
renforcés. Le poids de l'unité est spécié sur la plaque signalétique.
(4) Laisser sufsamment d’espace autour de l’unité, comme indiqué dans la gure ci-dessous.
(5) Le bac d'écoulement doit être penché vers la sortie d’évacuation avec l’inclinaison souhaitée.
Les boulons de suspension sont destinés à supporter uniquement le poids de l’unité, sans tenir
compte de la force externe de la gaine, des tuyaux d’eau et autres.
(6) La longueur de la gaine doit être compatible avec la pression statique nominale ; dans le cas
contraire, l’unité ne fonctionnera pas correctement. L’entrée et la sortie de la gaine doivent être
raccordées à l’aide de raccords exibles.
(7) Les tuyaux d’eau doivent être nettoyés avant l’installation ; la sortie doit être équipée d’un ltre
pour empêcher le colmatage des soupapes par des corps étrangers.
(8) L’unité doit être protégée contre la poussière durant la pose.
(9) Un ltre doit être installé sur la bouche de reprise d’air ; celui-ci doit être nettoyé fréquemment
pour garantir l’efcacité espérée de l’échange de chaleur.
(10) La gaine doit respecter les exigences énoncées ci-dessous.
1) La gaine doit être conçue et installée conformément aux normes locales.
2) La gaine doit être conçue de sorte que sa surface sectionnelle ne puisse pas changer
soudainement et que la direction de l’air ne modie pas la sortie.
3) La gaine doit être isolée avec abilité pour éviter que de la condensation ne se forme pendant
la climatisation.
(11) Les tuyaux d’eau ne doivent pas respecter les exigences énoncées ci-dessous.
(12) Le tuyau d'évacuation et le tuyau d’entrée/sortie doivent être dotés de raccords respectant les
normes. Les tuyaux d’eau doivent être installés conformément aux normes locales. Durant
l’installation, ne pas serrer excessivement les raccords des tuyaux pour éviter d’endommager
le collecteur et les connexions du serpentin.
1) Le tuyau d’entrée/sortie doit être installé conformément aux étiquettes en vigueur ; il doit être
équipé de connexions exibles résistant aux séismes et de joints amovibles, ainsi que de ltres
adaptés pour éviter la surcharge de travail de l’échangeur de chaleur dont l’efcacité baisserait
en conséquence.
2) Le tuyau d’entrée/sortie doit être équipé de vannes de commande et d’arrêt du débit d’eau. Le
poids des tuyaux d’eau ne doit pas être supporté par l’unité principale.
3) Le tuyau d’entrée/sortie, le tuyau d'évacuation et les vannes doivent être isolées pour éviter
que de la condensation ne se forme pendant le fonctionnement de la climatisation durant l’été.
4) Le tuyau d’évacuation des condensats doit être penché vers le bas, avec une inclinaison de plus
de 5 % pour faciliter l’évacuation.
5) Ne pas traîner et tirer fortement les tuyaux d’eau et les étanchéier avec du ruban en téon
pour éviter les fuites.
(13) S’assurer que l’alimentation est conforme aux spécications de la plaque signalétique et
qu’elle est déconnectée avant l’installation électrique. Le câblage électrique doit être effectué
conformément au schéma de câblage électrique comme indiqué sur la gure suivante ; l’unité
doit par ailleurs être correctement mise à la terre. L'appareil doit être installé conformément aux
réglementations nationales en matière de câblage.
(14) Les spécications recommandées du câble d'alimentation sont les suivantes : 0.5*3 (Unité :
mm
2
*ROT).
(15) Si le câble d’alimentation est endommagé, il doit être remplacé par le fabricant, son technicien
de maintenance ou toute personne qualiée assimilée, an d'éviter tout risque.
(16) Des moyens de déconnexion doivent être incorporés au câblage xe conformément aux normes
de câblage.
(17) L’appareil est conçu pour être connecté en permanence au réseau d’approvisionnement en eau
et non à un jeu de tuyaux.
-1- -2- -3-

Other manuals for Gree FP-170WAF-R

Related product manuals