EasyManua.ls Logo

Gree GMV-N45G/A3A-K - Installation of Compact 2-Way Cassette Type Unit

Gree GMV-N45G/A3A-K
276 pages
To Next Page IconTo Next Page
To Next Page IconTo Next Page
To Previous Page IconTo Previous Page
To Previous Page IconTo Previous Page
Loading...
GREE GMV5 INDOOR UNIT SERVICE MANUAL
102
3.6 Installation of Compact 2-way Cassette Type unit
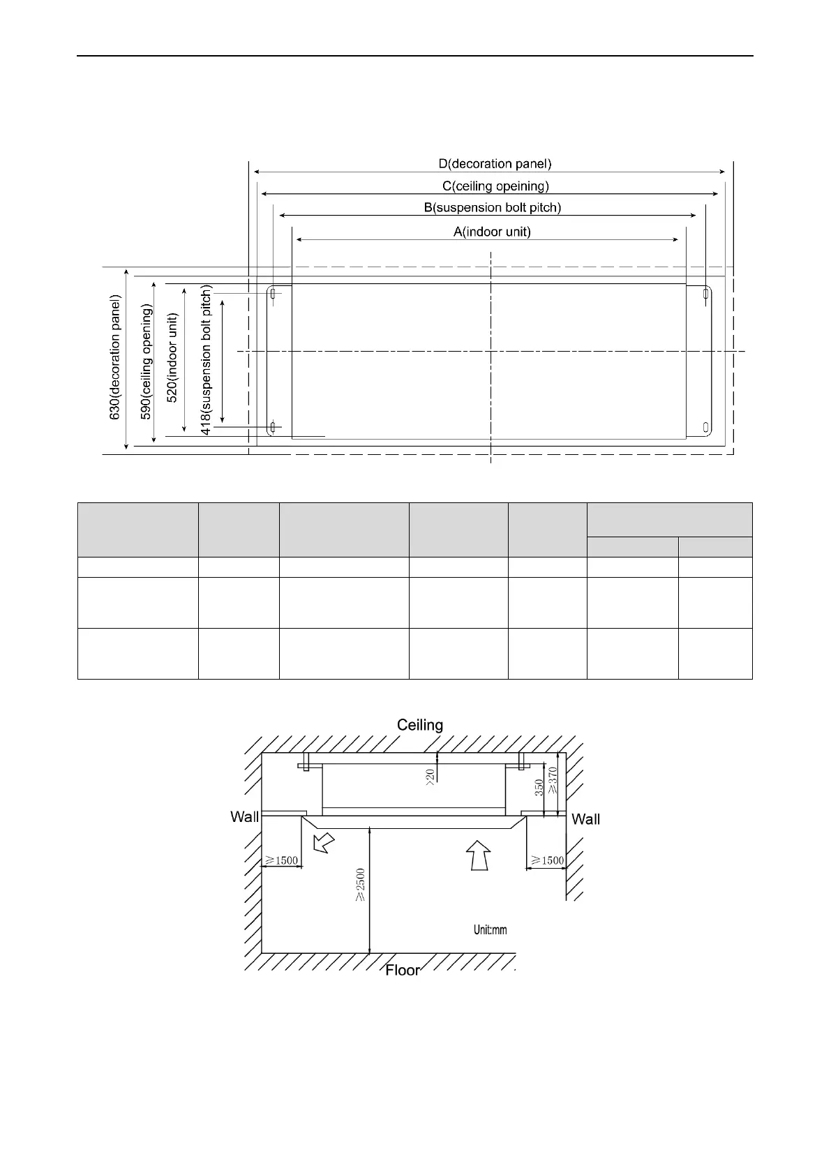
3.6.1 Outline and installation dimension
Unit: mm/inch
Model
Indoor
unit(A)
Suspension bolt
pitch(B)
Ceiling
opening(C)
Decoration
panel(D)
Outer diameter of
connection pipe(mm)
Liquid pipe
Gas pipe
GMV-ND28TS/A-T
1200
1252
1403
1443
6.35
9.52
GMV-ND36TS/A-T
GMV-ND45TS/A-T
GMV-ND50TS/A-T
1200
1252
1403
1443
6.35
12.7
GMV-ND56TS/A-T
GMV-ND63TS/A-T
GMV-ND71TS/A-T
1200
1252
1403
1443
9.52
15.9
3.6.2 Installation space
3.6.3 Installation notice
The unit shall be installed by the professional personnel according to this installation instruction
to ensure proper use.
Please contact the local Gree appointed service center before installation. Any
malfunctioncaused by the unit that is not installed by the Gree appointed service center would

Table of Contents

Other manuals for Gree GMV-N45G/A3A-K

Related product manuals