EasyManua.ls Logo

Gree GMV-N45G/A3A-K - Page 114

Gree GMV-N45G/A3A-K
276 pages
To Next Page IconTo Next Page
To Next Page IconTo Next Page
To Previous Page IconTo Previous Page
To Previous Page IconTo Previous Page
Loading...
GREE GMV5 INDOOR UNIT SERVICE MANUAL
109
GMV-NDX224P/A-T
GMV-NDX250P/A-T
GMV-NDX280P/A-T
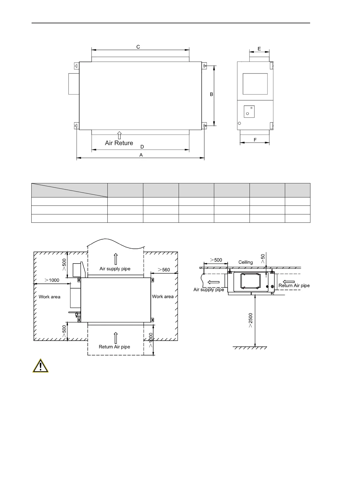
The table below lists the detailed dimensions.
Unit: mm
Item
Model
A
B
C
D
E
F
GMV-NDX224P/A-T
1353
632
992
1150
192
327
GMV-NDX250P/A-T
1353
632
992
1150
192
327
GMV-NDX280P/A-T
1353
632
992
1150
192
327
3.9.2 Installation space
Note:
Installation of the unit must be in accordance with National Electric Codes and local safety
regulations.
Improper installation will affect unit’s performance, so do not install the unit by yourself. Please
contact local dealer to arrange professional technicians for the installation.
Do not connect power until all installation work is finished.
3.9.3 Installation notice
The unit shall be installed by the professional personnel according to this installation instruction

Table of Contents

Other manuals for Gree GMV-N45G/A3A-K

Related product manuals