EasyManua.ls Logo

Gree GMV-ND22T/C-T - Preparations for Installation

Gree GMV-ND22T/C-T
27 pages
To Next Page IconTo Next Page
To Next Page IconTo Next Page
To Previous Page IconTo Previous Page
To Previous Page IconTo Previous Page
Loading...
Multi Variable Air Conditioners Cassette Type Indoor Unit
5
No.
Name
Appearance
Q'ty
Usage
9 Insulation
2 To insulate the gas/ liquid pipe
10 Sponge
4 To insulate the drain pipe.
11
Fastener
4
To fasten the sponge.
3.2 Installation Position Selection
(1) The appliance shall not be installed in the laundry.
(2) The location should be able to withstand the weight of unit.
(3) The water can be drained conveniently from drainage pipe.
(4) There should be no obstruction near air inlet and air outlet.
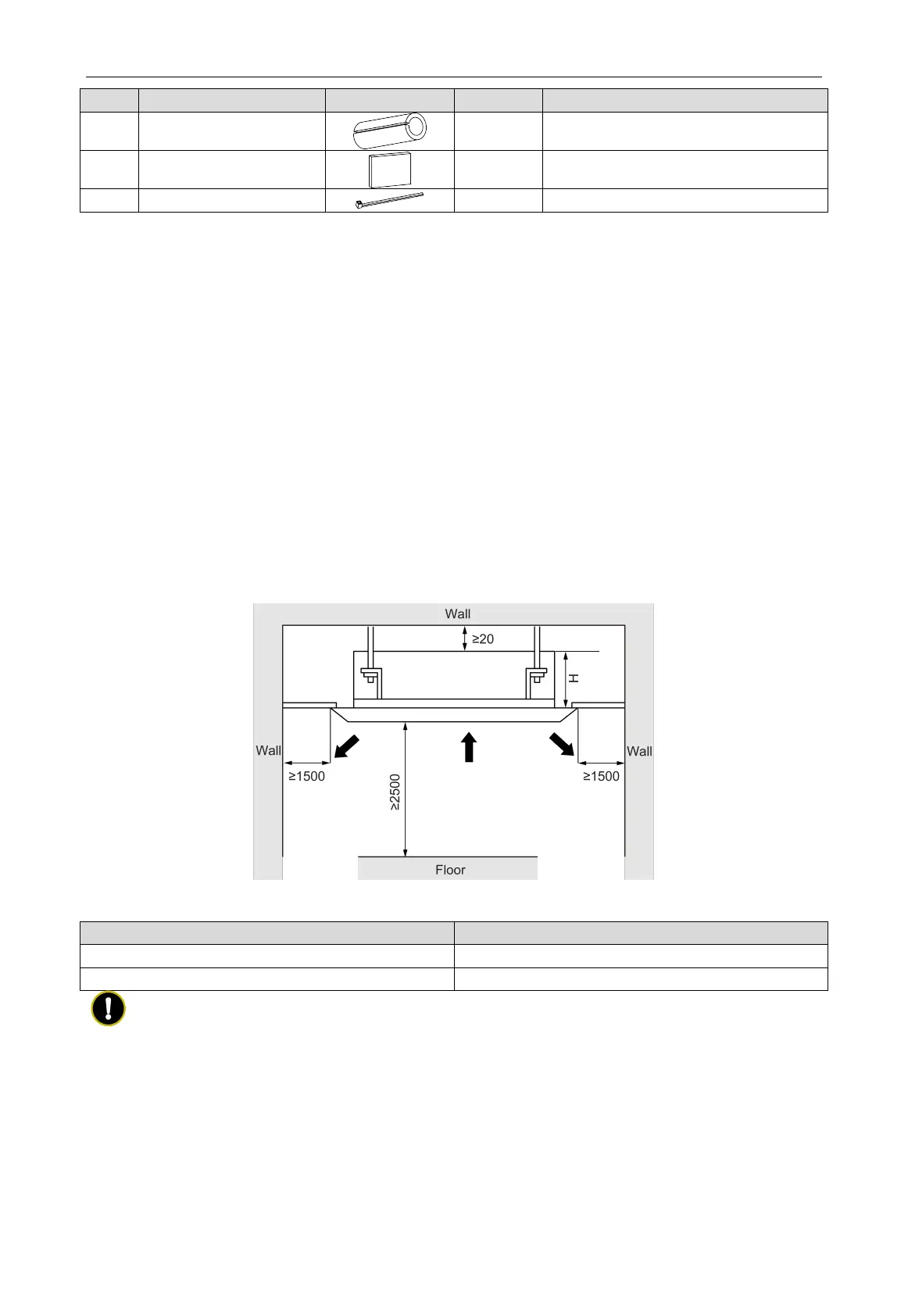
(5) Follow the installation distance required in the fig below to ensure sufficient space for
maintenance.
(6) The installation location should be far from heat sources, flammable or explosive gas, or
smog spread in the air.
(7) The indoor unit, outdoor unit, power cord and connection electricity wire should be at least
1m from television and radio in order to prevent interference and noise (Even though 1m
distance is ensure, there may be noise if the electric wave is too strong).
Unit: mm
Fig.3.2
Model
H(mm)
GMV-ND22~100T/C-T
275
GMV-ND112~160T/C-T
325
NOTES!
The unit shall be installed in accordance with national standards or local regulations.
Only qualified personnel can carry out installation work, please contact with local dealer
before installation.
Make sure all the installation work completed before energizing.
The appliances are not accessible to general public.

Related product manuals