EasyManua.ls Logo

Gree GMV-ND50T/A-T

Gree GMV-ND50T/A-T
227 pages
To Next Page IconTo Next Page
To Next Page IconTo Next Page
To Previous Page IconTo Previous Page
To Previous Page IconTo Previous Page
Loading...
MULTI VRF- INDOOR UNIT SERVICE MANUAL EUROPEAN/LATIN AMETICA (R410A)
93
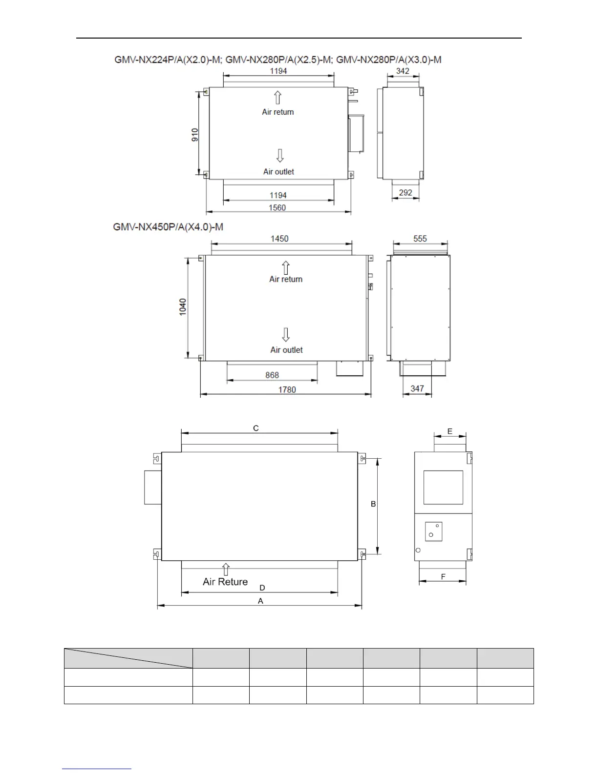
GMV-NDX224P/A-TGMV-NDX280P/A-T
The table below lists the detailed dimensions.
Unit: mm
Item
Model
A
B
C
D
E
F
GMV-NDX224P/A-T
1353
632
992
1150
192
327
GMV-NDX280P/A-T
1353
632
992
1150
192
327

Table of Contents

Other manuals for Gree GMV-ND50T/A-T

Related product manuals