EasyManua.ls Logo

Gree GVH36ALXH-K3NTC7A/I - Outline Dimension Diagram; Indoor Unit

Gree GVH36ALXH-K3NTC7A/I
94 pages
To Next Page IconTo Next Page
To Next Page IconTo Next Page
To Previous Page IconTo Previous Page
To Previous Page IconTo Previous Page
Loading...
12
Technical Information
Service Manual
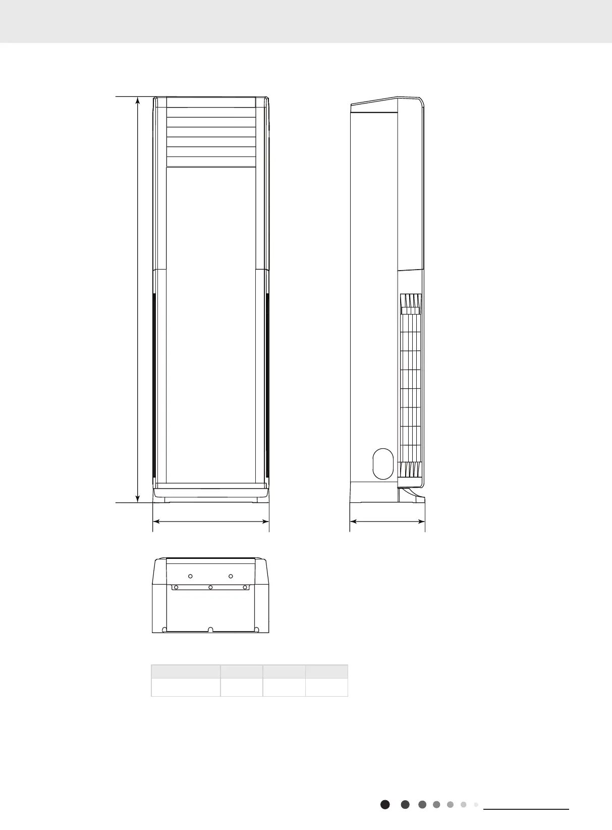
3. Outline Dimension Diagram
3.1 Indoor Unit
Unit:mm
W
H
D
Model W H D
36/48/55K 587 1882 394

Related product manuals