EasyManua.ls Logo

Greenheck EDD-401 - Page 2

Greenheck EDD-401
2 pages
Print Icon
To Previous Page IconTo Previous Page
To Previous Page IconTo Previous Page
Loading...
468788 • Splice Angle Installation, Rev. 3, January 2019 Copyright 2019 © Greenheck Fan Corporation2
As a result of our commitment to continuous improvement, Greenheck reserves the right to change specifications
without notice.
Product warranties can be found online at Greenheck.com, either on the specific product page or in the literature
section of the website at Greenheck.com/Resources/Library/Literature.
®
Phone: 715.359.6171 • Fax: 715.355.2399 • Parts: 800.355.5354 • E-mail: gfcinfo@greenheck.com • Website: www.greenheck.com
Our Commitment
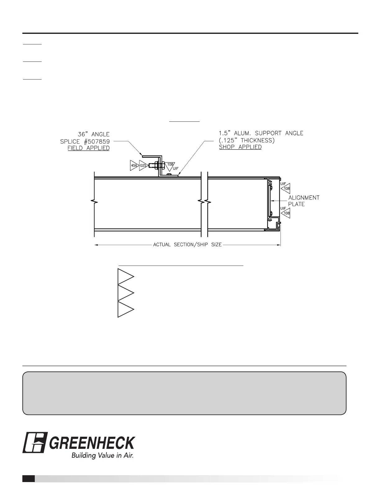
Step 1
Attach the 36" angle splice to the lower section with 18" above the lower section. (See "TOP VIEW" for orientation of angle splice.)
Step 2
Drill 3/8" holes in the support angle on both the upper and lower sections to match with the 36" splice angle.
Step 3
Attach the splice angle with 5/16" bolts. Six (6) bolts per splice angle are required.
NOTE: Please reference the Alignment Plate IOM if alignment plates are to be field installed.
INSTALLATION GUIDELINES
Top View
These fasteners supplied by Greenheck
025 5/16-18x1 HH ZP CS
456 5/16-ZP Spin-Lock Nut
108 #10-16 x3/4 TPH 18-8 SS

Related product manuals