EasyManua.ls Logo

Greenheck ERCH - Page 11

Greenheck ERCH
56 pages
Print Icon
To Next Page IconTo Next Page
To Next Page IconTo Next Page
To Previous Page IconTo Previous Page
To Previous Page IconTo Previous Page
Loading...
General Description - NOT model specificEnergy Recovery Ventilator with Heating and Cooling
®
11
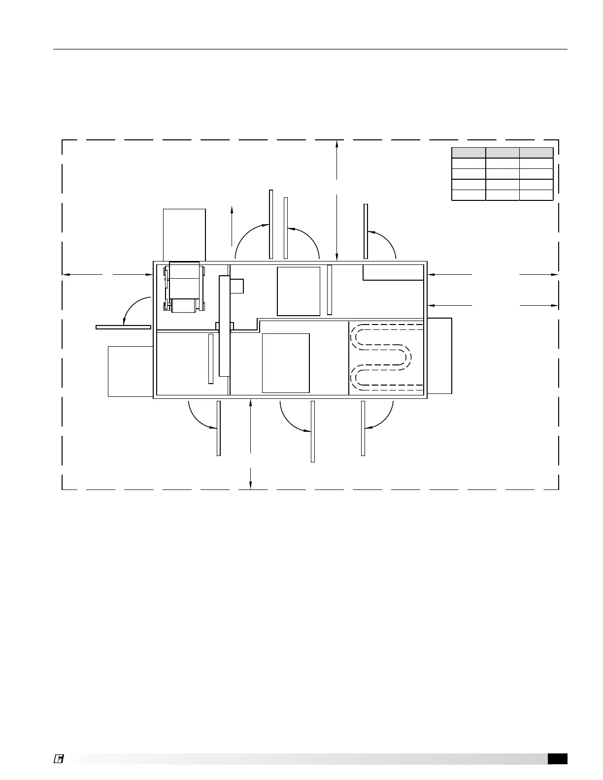
Service Clearances / Access Panel - Evaporative Cooling
Units require minimum clearances for access on all sides for routine maintenance. Filter replacement, drain pan
inspection and cleaning, energy wheel cassette inspection, fan bearing lubrication and belt adjustment are examples
of routine maintenance that must be performed. Blower and motor assemblies, energy recovery wheel cassette, coil
and filter sections are always provided with a service door or panel for proper component access.
EXHAUST FILTERS
OUTDOOR AIR FILTERS
EXHAUST AIR
WEATHERHOOD
WHEEL CASSETTE
OUTDOOR
WEATHERHOOD
INDIRECT GAS FURNACE
ELECTRICAL BOX
INDIRECT
EVAP
DIRECT
EVAP
B
*CASSETTE REMOVAL
ACCESS DOOR
ACCESS DOOR
ACCESS DOOR
ACCESS DOOR
36 inches
ACCESS DOOR
ACCESS DOORS
52 inches
CLEARANCE WITH
IG HEATER
0 inches
CLEARANCE WITHOUT
IG HEATER
A
*Cassette removal only available
on housing sizes 20 and 45.
Model A (in.) B (in.)
ERCH-20 48 36
ERCH-45 64 42
ERCH-55 42 42
ERCH-90 42 48
Drawing shows optional indirect gas furnace. Electric heat is also available. Only one can be selected.
Unit Installation

Related product manuals