EasyManua.ls Logo

Greenheck ERCH - Page 9

Greenheck ERCH
56 pages
Print Icon
To Next Page IconTo Next Page
To Next Page IconTo Next Page
To Previous Page IconTo Previous Page
To Previous Page IconTo Previous Page
Loading...
General Description - NOT model specificEnergy Recovery Ventilator with Heating and Cooling
®
9
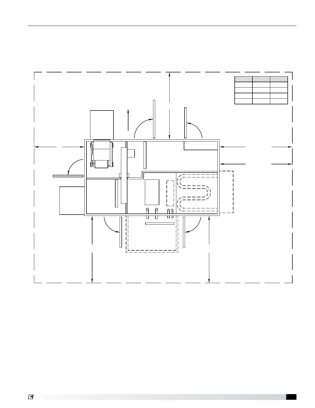
Service Clearances / Access Panel - Cooling Coil (with or without heating)
Units require minimum clearances for access on all sides for routine maintenance. Filter replacement, drain pan
inspection and cleaning, energy wheel cassette inspection, fan bearing lubrication and belt adjustment are examples
of routine maintenance that must be performed. Blower and motor assemblies, energy recovery wheel cassette, coil
and filter sections are always provided with a service door or panel for proper component access.
EXHAUST FILTERS
OUTDOOR AIR FILTERS
WHEEL CASSETTE
OUTDOOR
WEATHERHOOD
COOLING COIL
INDIRECT GAS FURNACE
ELECTRICAL BOX
HEATING COIL
A
48 inches
52 inches
B
ACCESS DOOR
ACCESS PANEL
*CASSETTE REMOVAL
CLEARANCE WITH
IG HEATER
ACCESS DOOR
PIPING VESTIBULE
(OPTIONAL)
0 inches
CLEARANCE WITHOUT
IG HEATER
36 inches
CLEARANCE
WITH
VESTIBULE
CLEARANCE
WITHOUT
VESTIBULE
ACCESS DOOR
ACCESS DOOR
ACCESS DOOR
*Cassette removal only available
on housing sizes 20 and 45.
Model A (in.) B (in.)
ERCH-20 48 36
ERCH-45 64 42
ERCH-55 42 42
ERCH-90 42 48
EXHAUST AIR
WEATHERHOOD
Drawing shows both heating coil and indirect gas furnace options. Only one can be selected.
Unit Installation

Related product manuals