EasyManua.ls Logo

GU BKS - Page 27

GU BKS
Print Icon
To Next Page IconTo Next Page
To Next Page IconTo Next Page
To Previous Page IconTo Previous Page
To Previous Page IconTo Previous Page
Loading...

2.3 Mantenimiento
Para garantizar la idoneidad del uso se deben comprobar los sistemas de cierre al menos cuatro veces al año.
Debe comprobarse el sistema de cierre para asegurar su buen estado de funcionamiento.
Se deben realizar y documentar los siguientes controles de mantenimiento rutinarios a este respecto:
Inspección y accionamiento del dispositivo antipánico para garantizar que todos los componentes del
sistema de cierre se encuentren en un estado de funcionamiento satisfactorio.
Se debe garantizar que los dispositivos de cierre no estén bloqueados ni atascados.
Se debe comprobar que el dispositivo antipánico se haya lubricado conforme a las instrucciones del
fabricante.
Se debe comprobar que no se añadan posteriormente a la puerta otros dispositivos de bloqueo adicionales.
Se debe comprobar con regularidad que todos los componentes de la instalación sigan coincidiendo con la
lista de componentes originales autorizada y suministrada con la instalación.
Se debe comprobar con regularidad que el elemento de mando esté bien apretado.
2.4 Información y responsabilidades de instrucciones
Para cumplir con la información necesaria y con las responsabilidades de instrucciones según las leyes de
responsabilidad de productos los intermediarios, cerrajerías, arquitectos, diseñadores, fabricantes y usuarios
pueden utilizar los siguientes servicios y catálogos:
Catálogos, folletos, especificaciones, ofertas, planes de funcionamiento amaestramientos,
DIN , DIN , DIN , DIN , DIN EN , DIN EN , etc.,
Instrucciones de montaje, utilización y mantenimiento,
Consultas de nuestro personal.
Para elegir el dispositivo de cierre
adecuado, instalación, operación, uso y
mantenimiento
Arquitectos y oficinas de planifica-
ción pueden pedir y seguir la infor-
mación de producto adecuada,
Intermediarios deben seguir la infor-
mación de producto adecuada en la
lista de precios y entregar toda la
información requerida al montador.
Si falta en el envío toda la documen-
tación puede pedirse a BKS,
Montadores deben seguir la
información de producto adecuada y
entregar al usuario las instruccio-
nes de uso y mantenimiento. Las
instrucciones perdidas pueden
pedirse a BKS.
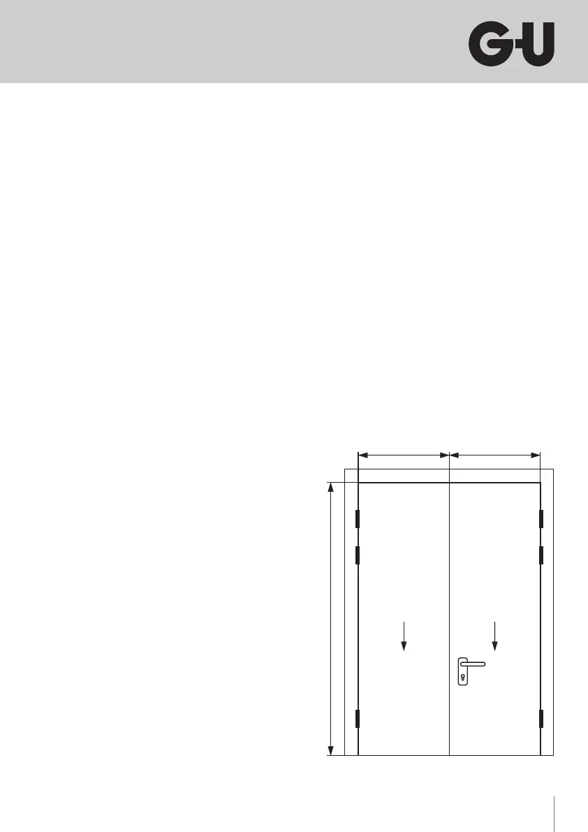
max. 4500 mm
max. 1500 mm max. 1500 mm
max. 300 kg max. 300 kg
Fig. : máx. Dimensiones y peso de puerta

Related product manuals