EasyManua.ls Logo

haacon S/DK - Démontage et Élimination des Déchets

Default Icon
Print Icon
To Next Page IconTo Next Page
To Next Page IconTo Next Page
To Previous Page IconTo Previous Page
To Previous Page IconTo Previous Page
Loading...
– 16 –
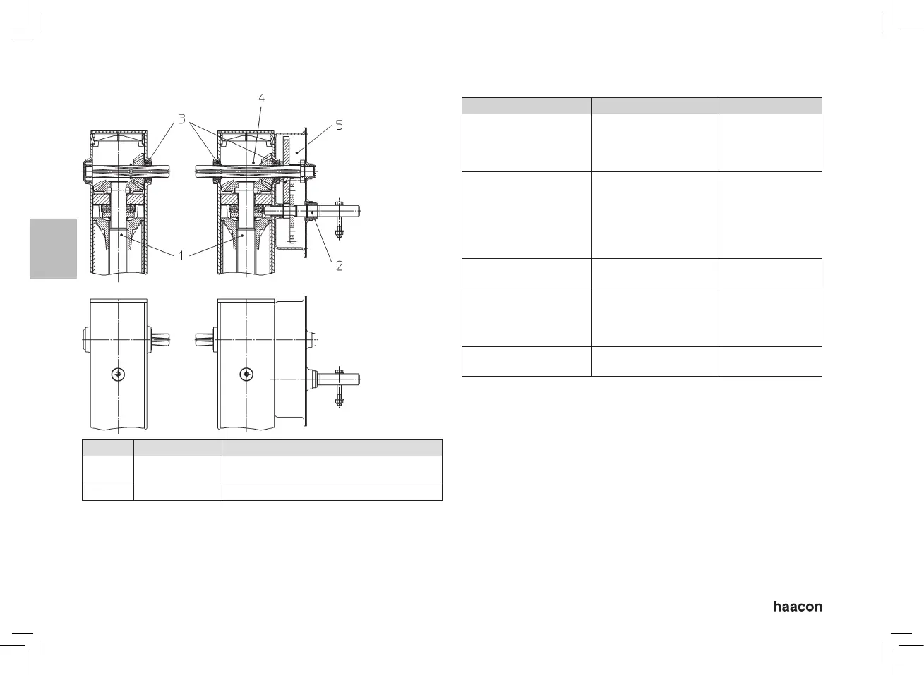
Plan de lubrification
Pos. Lubrifiant Utilisation
1, 2, 3
Rhenus LFC 2
ou
KP 2 K-30
Remplir les flancs du filetage pos. 1
Remplir les points d‘appui
4 + 5 Remplir de graisse, chacun 250 à 300 g
Dépanner
Malfonction Cause Remède
Béquille télescopique
ne descend pas
Vis ou engrenage
endommagé
Tube exterieur ou
interieur déformé
Réparer la béquil-
le télescopique
Béquille télescopique
ne descend jusqu‘au
sol.
Vitesse incorrecte Commuter de la
vitesse rapide
sur la vitesse en
charge avant que
le pied ne touche
le sol
Commuter la vitesse
n‘est pas possible
Engrenage en panne Réparer la béquil-
le télescopique
Béquille télescopique
ne remonte pas
Vis ou engrenage
endommagé
Tube exterieur ou
interieur déformé
Réparer la béquil-
le télescopique
Broche de positionne-
ment est bloquée
Tubes télescopiques
sont coincées
Réparer la béquil-
le télescopique
8. DÉMONTAGE ET ÉLIMINATION DES DÉCHETS
Démontage seulement par des experts
Respecter les indications de sécurité.
Éliminer l'appareil et ses ingrédients de manière à ne pas porter
préjudice à l'environnement.
FR