EasyManua.ls Logo

haacon S/DK - Störungssuche; Abbau, Entsorgung

Default Icon
Print Icon
To Next Page IconTo Next Page
To Next Page IconTo Next Page
To Previous Page IconTo Previous Page
To Previous Page IconTo Previous Page
Loading...
– 6 –
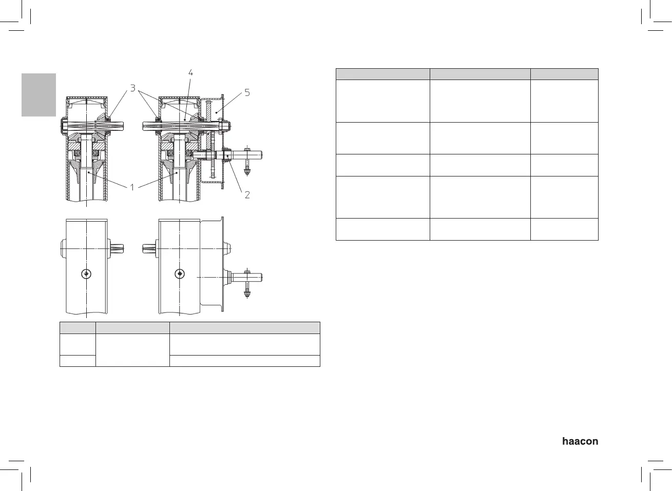
Schmierplan
Pos. Schmiermittel Handhabung
1, 2, 3
Rhenus LFC 2
oder
KP 2 K-30
Gewindeflanken Pos. 1 fetten
Lagerstellen fetten
4 + 5 Mit Fett füllen je 250 - 300 g.
Störungssuche
Störung Ursache Abhilfe
Spindelstütze lässt sich
nicht ausfahren
Spindel oder Getriebe
defekt
Stütz- oder Innenrohr
verbogen
Spindelstütze
instandsetzen
Spindelstütze lässt
sich nur bis Bodenkon-
takt ausfahren
Falscher Gang eingelegt Lastgang vor
Bodenkontakt
einlegen
Gangwechsel nicht
möglich
Getriebe defekt Spindelstütze
instandsetzen
Spindelstütze lässt sich
nicht einfahren
Spindel oder Getriebe
defekt
Stütz- oder Innenrohr
verbogen
Spindelstütze
instandsetzen
Fallstützrohr lässt sich
nicht bewegen
Teleskoprohre sind
verklemmt
Spindelstütze
instandsetzen
8. ABBAU, ENTSORGUNG
Abbau nur durch Fachpersonal.
Sicherheitshinweise beachten.
Gerät und dessen Inhaltsstoffe gemäß den gültigen Vorschriften
umweltgerecht entsorgen.
DE