EasyManua.ls Logo

Haas VF-7 - Page 244

Haas VF-7
564 pages
Print Icon
To Next Page IconTo Next Page
To Next Page IconTo Next Page
To Previous Page IconTo Previous Page
To Previous Page IconTo Previous Page
Loading...
244
PROGRAMMING EXAMPLES
96-8000
June 1999
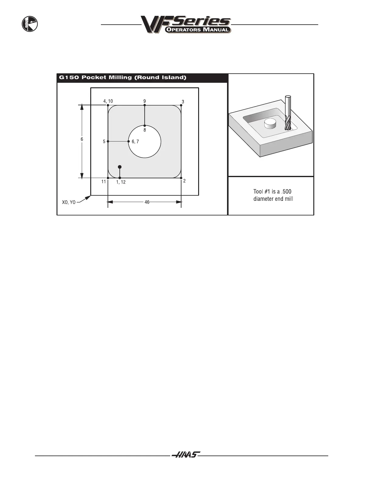
ROUND ISLAND:
Round island programming exercise using G150.
%
O1000
T1 M06 (Tool is a .500 diameter end mill)
G00 G90 G54 S2500 M03
G43 H01 Z.1 M08
G01 Z0 F10.
G150 X1.0 Y1.0 Z-.5 F15. R.1 Q.25 I.4 K.01 P500 D01 G41
G00 Z1.0 M09
G40 G28 G91 Y0 Z0
M30
%
%
O0500
G01 X0 Y0
X6.0
Y6.0
X0
Y3.0
X2.0
G02 I1.0
G01 X0
Y0
M99
%

Table of Contents

Related product manuals