EasyManua.ls Logo

Haier AB092XCERA - Page 109

Haier AB092XCERA
143 pages
Print Icon
To Next Page IconTo Next Page
To Next Page IconTo Next Page
To Previous Page IconTo Previous Page
To Previous Page IconTo Previous Page
Loading...
-109-
>_]]VbTZR\ <Zb >_^UZdZ_^Vb
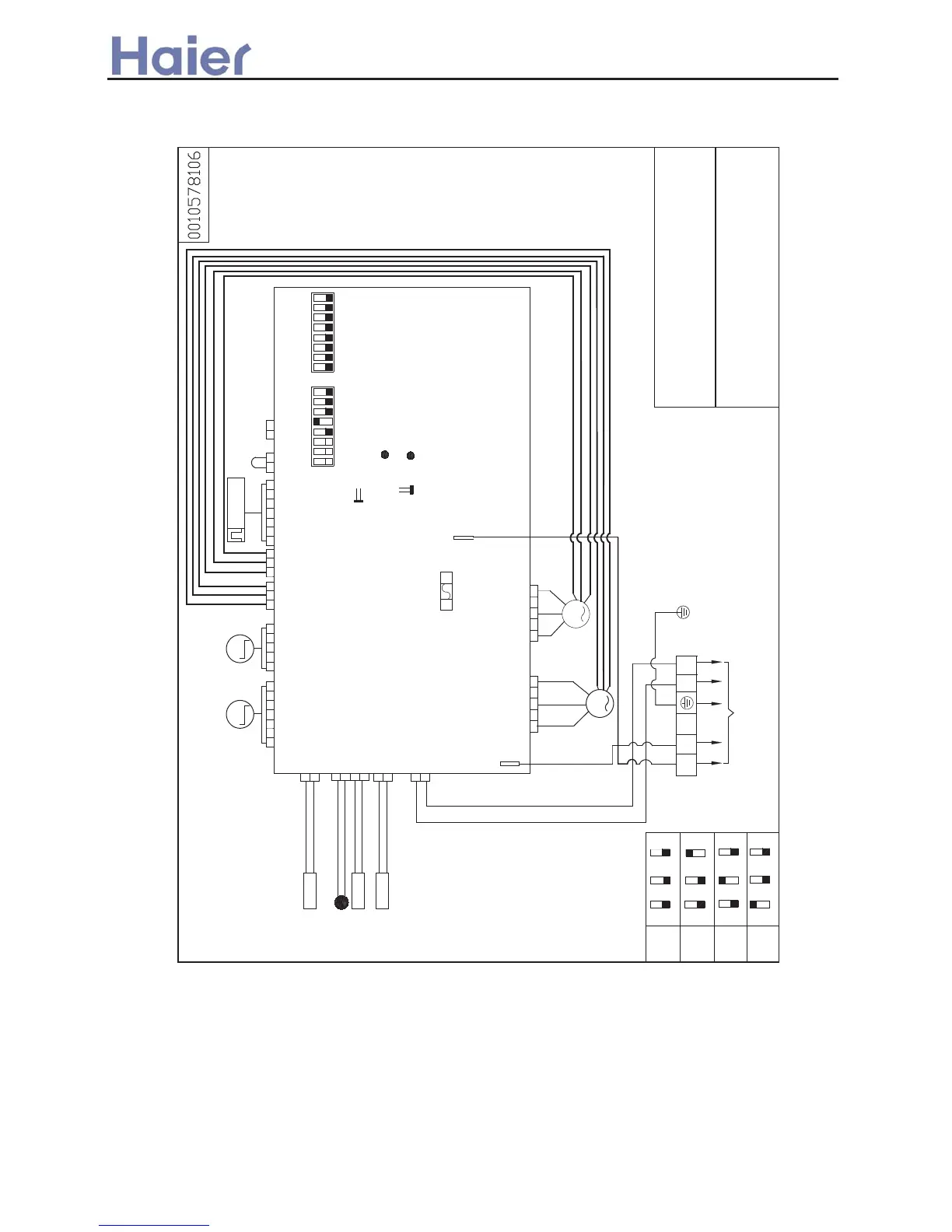
5.2.7. AF092-122XCERA
FUSE1
T3.15A
250V
Tm
CN4
CN7
W
W
W
W
W
W
W
TC2
TC1
CN5
B
CN6
W
LED2
LED1
CN18
TO OUTDOOR UNIT
Q
P
L N
CN10
SWING
MOTOR
M
B: BLACK BR: BROWN
R: RED W : WHITE
Y/G : YELLOW/GREEN BL:BLUE
Y:YELLOW OR:ORANGE
M
8765432
1
ON
SW02
CN20
CN19
LED
SW01
ON
1
2 3 4 5 6 7 8
CN2
CN1
M
SWING
MOTOR
SWING
MOTOR
SW02-2 SW02-3
ON
SW02-1
SW02-1
ON
SW02-3SW02-2
SW02-2 SW02-3
ON
SW02-1
SW02-3SW02-2SW02-1
ON
14000
BTU
18000
BTU
12000
BTU
9000
BTU
Ta:AMBIENT TEMPERATURE SENSOR
Tm:PIPING TEMPERATURE SENSOR
Ta
CN3
CN11 CN13 CN12 CN14
R
CN16 CN17
SWING
MOTOR
M
TC2:LIQUID PIPING TEMPERATURE SENSOR
TC1:GAS PIPING TEMPERATURE SENSOR
BR R
Y/G
B
W
R