EasyManua.ls Logo

Haier AB092XCERA - Page 112

Haier AB092XCERA
143 pages
Print Icon
To Next Page IconTo Next Page
To Next Page IconTo Next Page
To Previous Page IconTo Previous Page
To Previous Page IconTo Previous Page
Loading...
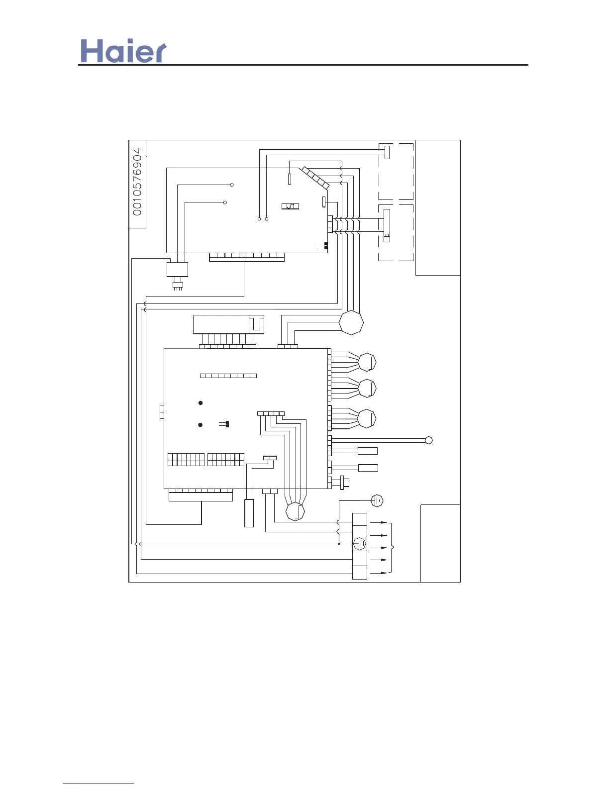
5.2.10. AS***XVERA Wiring Diagram
-
>_]]VbTZR\ <Zb >_^UZdZ_^Vb
PIPING
TEMPER-
ATURE
SENSOR
AMBIENT
TEMPERATURE
SENSOR
SWING
MOTOR
CN18
CN19
SW03
CN16
SW02
SW01
SWING
MOTOR
SWING
MOTOR
CN22
CN21
SWING
MOTOR
CN23
AC FAN MOTOR
M
B: BLACK BR: BROWN
R: RED W : WHITE
Y/G : YELLOW/GREEN
BL:BLUE Y:YELLOW
CN3
FUSE1
CN2
220_N
ION
GENERATOR
CN25
LCD
CN12
CN1
CN11
CN8
T3.15A
250VAC
FRESH
CONTROLLER
CN10
TO OUTDOOR
UNIT
B
W
R
BR
Y/G
ULTRAVIOLET
RADIATION
CN4
CN17
CN20
LED2
LED1
CN14
CN13
NOTE:
WHEN THE UINT HAS NOT THE
FUNCTION OF HEALTH WITHOUT
THE PARTS IN THE DOTTED LINE.
BL
B
W
W
R
R
WW
220_L
CN5
CN9
1(L)
2(N)
CN24
R
CN26
3
4
Y
M M M
M
PIPING
TEMPER-
ATURE
SENSOR
WW
W
W
W
W
W
B
A
C
AS07/09/122XVERA:
112-