EasyManua.ls Logo

Haier AB092XCERA - Page 99

Haier AB092XCERA
143 pages
Print Icon
To Next Page IconTo Next Page
To Next Page IconTo Next Page
To Previous Page IconTo Previous Page
To Previous Page IconTo Previous Page
Loading...
-
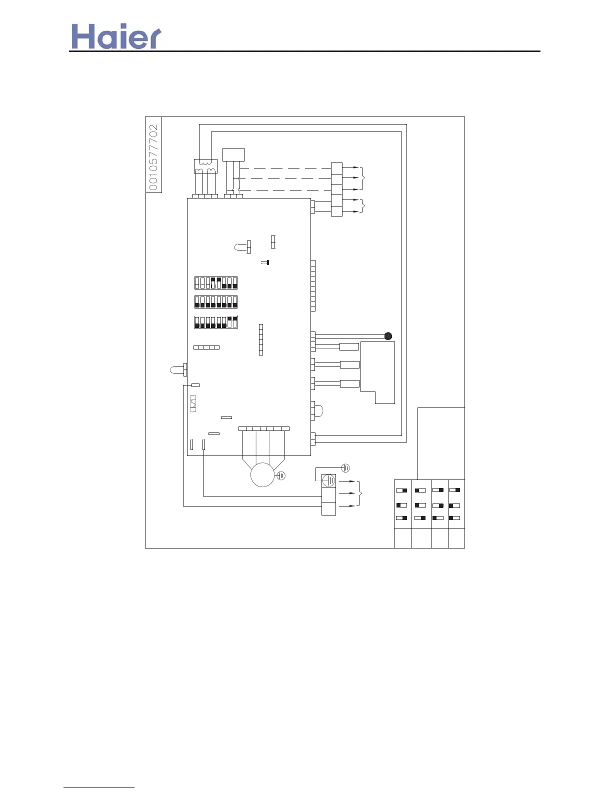
>_]]VbTZR\ <Zb >_^UZdZ_^Vb
AD***XLERA
CN3
CN2
CN21
CN1
FUSE1
T3.15A
250VAC
M
AC FAN
MOTOR
Y/G
L
N
Y/G
TO OUTDOOR
UNIT
CN20
CN4
CN19
W
W
G
CN22
R
CN24
W
CN14 CN13
B W
CN12 CN10
W
Tm
PIPING
TEMPERATURE
SENSOR
AMBIENT
TEMPERATURE
SENSOR
TC2TC1
CN15
Y
CN11
SW01 SW02 SW03
W
CN26
R
CN16
W
P
Q
BA
C
TO
OUTDOOR
UNIT
TRANSFORMER
B: BLACK BR: BROWN
R: RED W : WHITE
Y/G : YELLOW/GREEN
BL:BLUE Y:YELLOW
OR
ORANGE
WIRED
CONTROLLER
alternative)
CN7
W
BL
CN8
CN9
BL
ON
1
2
3
4
5
6
7
8 8
7
6
5
4
3
2
1 1
2
3
4
5
6
7
8
ON/OFF
CARD
9000
BTU
12000
BTU
18000
BTU
14000
BTU
ON
SW03-1 SW03-2 SW03-3
SW03-1
ON
SW03-3SW03-2
SW03-2 SW03-3
ON
SW03-1
SW03-1
ON
SW03-3SW03-2
CN18
BR BL
A
B
C
ON ON
BR
R
BL
Y
OR
WIRED
CONTROLLER
(default set
from factory)
99-

Related product manuals