EasyManua.ls Logo

Haier AD105S2SM3FA - Installation

Haier AD105S2SM3FA
257 pages
To Next Page IconTo Next Page
To Next Page IconTo Next Page
To Previous Page IconTo Previous Page
To Previous Page IconTo Previous Page
Loading...
21
7. Installation
Before Installation
Selection Of Installation Place
<Don't discard any accessories until comp>
(1) Installation place shall meet the following and agreed by customers
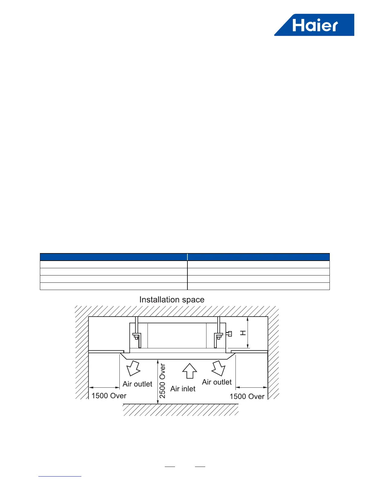
(2) Ceiling height
Indoor unit can be installed on ceiling of 2.5-3m in height. (Refer to foeld setting and installation manual of
ornament panel.)
(3) Install suspending bolt.
Check if the installation place is strong enough to hold weight. Take necessary measures in case it is not safe.
(Distance between holes are marked on paper pattern. Refer to paper pattern for place need be reinforced)
• Determine the way tocarry unit toinstallation place.
• Don't remove packing until unit reaches installation place.
• If unpacking is unkavoidable, protect unit properly.
• Place where proper air ow can be ensured.
• Noblock toair ow.
• Water drainage is smpoth.
• Place strong enough to support unit weight.
• Place where inclination is not evident on ceiling.
• Enough space for mainenance.
• Indoor and outdoor unit piping length is within limit. (Refer to Installation Manual for outdoor unit.)
• Indoor and outdoor unit, power cable, inter unit cable are at least 1m away fromT.V. radop. This is helpful to avoid
picture disturbance and noise. (Even if 1m iskept, noise can still appear if radio wave is strong)
Model H
AB25S2SC1FA AB35S2SC1FA AB50S2SC1FA 320
AB25S2SC2FA AB35S2SC2FA AB50S2SC2FA 320
AB50S2SF1FA 236
AB71S2SG1FA 257
236
AB25S2SC1FA AB35S2SC1FA AB50S2SC1FA
AB50S2SF1FA AB71S2SG1FA
AB25S2SC2FA AB35S2SC2FA AB50S2SC2FA
Distance between
Distance between
Indoor unit 570mm
Ceiling opening 650mm
Ornament panel 700mm
Indoor unit 840mm
Ceiling opening 890mm
Ornament panel 950mm
suspending bolts 535mm
suspending bolts 765mm
Indoor unit 570mm
Indoor unit 840mm
Ceiling opening 650mm
Ceiling opening 890mm
Ornament panel 700mm
Ornament panel 950mm
Overlap between ceiling and
ornament panel shall be 25mm
Overlap between ceiling and
ornament panel shall be 25mm
Suspending bolts
Suspending bolts
Ceiling
Ceiling
Ornament panel Ornament panel
150
130
260
30
Distance between sus
pending bolts 765mm

Other manuals for Haier AD105S2SM3FA

Related product manuals