EasyManua.ls Logo

Haier AD71S2SS1FA - Page 151

Haier AD71S2SS1FA
210 pages
Print Icon
To Next Page IconTo Next Page
To Next Page IconTo Next Page
To Previous Page IconTo Previous Page
To Previous Page IconTo Previous Page
Loading...
Unidade interior
17
Procedimentos de Instalação
Seleccionar a posição de montagem para instalar as unidades interiores
Duto de Ar
Seleccione locais apropriados onde o ar que saí pode ser distribuído por toda a sala e é conveniente
dispor os tubos e cabos de conexão e o tubo de drenagem ao exterior.
A estrutura de tecto deve ser forte o suficiente para suportar o peso da unidade.
O tubo de conexão, tubo de drenagem e cabo de conexão devem ser capazes de passar pela
parede do edifício e conectar as unidades interior e exterior.
O tubo de conexão entre as unidades interior e exterior assim como o tubo de drenagem devem ser tão curtos quanto
possível.
É necessário ajustar a quantidade de enchimento do refrigerante, por favor, consulte o manual de instalação anexado à
unidade exterior.
A flange conectora deve ser fornecida pelo próprio utilizador.
A unidade tem duas saídas de água, uma das quais e obstruída na fábrica (com uma tampa de borracha). Apenas a saída não
é obstruída (lado de entrada e saída de líquido) será geralmente usada durante a instalação. Se aplicável, ambas as saídas
serão usadas juntas.
Como porta de acesso deve ser fornecida durante a instalação da unidade interior para manutenção.
Depois de seleccionar o local de instalação da unidade, siga os seguintes passos:
1. Faça um buraco na parede e insira o tubo de conexão e o cabo através do tubo por parede PVC
comprado localmente. O buraco na parede deve ser inclinado para baixo pelo menos 1/100.
2. Antes de fazer o buraco, verifique se não há tubos ou barras de reforço mesmo atrás da posição da
perfuração. A perfuração deve evitar posições com cabos eléctricos e tubos
3. Monte a unidade num telhado de edifício forte e horizontal. Se a base não for firme irá haver ruído, vibração e vazamento.
4. Monte a unidade num telhado de edifício forte e horizontal. Se a base não for firme irá haver ruído, vibração e vazamento.
5. Mude a forma do tubo de conexão, cabo de conexão e tubo de drenagem para que passem pelo tubo de parede facilmente.
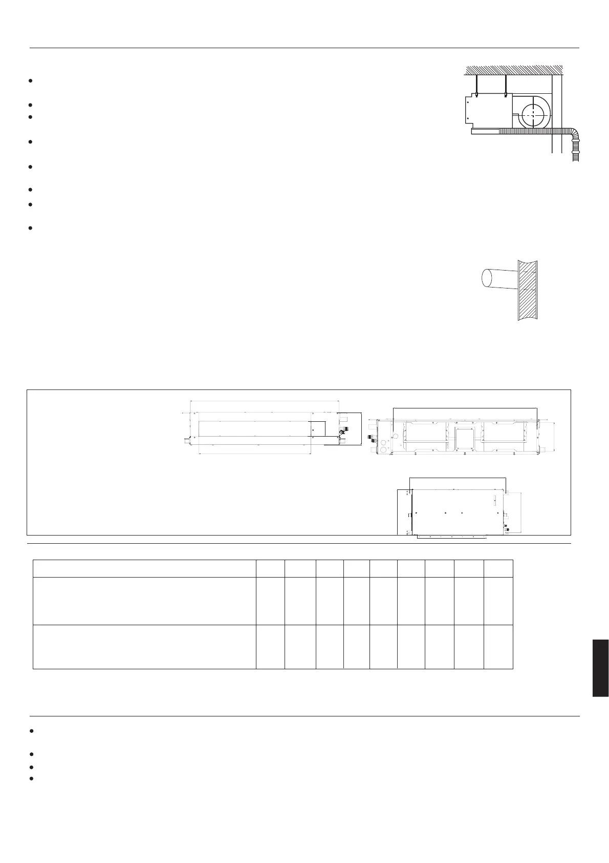
Cada duto de envio de ar e duto de retorno de ar deve ser fixado no painel pré-fabricado no chão com faixas de ferro. A
distância recomendada entre bordas do duto de retorno de ar e a parede é mais de 150mm.
A gradiente de tubo de água condensada deve ser mais de 1%.
O tubo de água condensada deve ser isolado termicamente.
Quando instalar a unidade interior de tipo ocultada no tecto, o duto de retorno de ar deve ser desenhado e instalado como
na figura.
Procedimentos de Instalação
Dimensão de instalação
Português
Dimensões da unidade interior (unidade: mm)
B
A
C
H
I
D
E
F
G
Modelo de unidade
A B C D E F G H I
420 892 370 850 185 640 90 760 152
AD25S2SS1FA AD35S2SS1FA
AD25S2SS2FA AD35S2SS2FA
AD25S2SS1FA-1 AD25S2SS1FA(H)
AD35S2SS1FA-1 AD35S2SS1FA(H)
AD25S2SS1FA AD35S2SS1FA
AD50S2SS1FA AD71S2SS1FA
AD25S2SS2FA AD35S2SS2FA
AD50S2SS2FA AD71S2SS2FA
AD25S2SS1FA-1 AD25S2SS1FA(H)
AD35S2SS1FA-1 AD35S2SS1FA(H)
AD50S2SS1FA-1 AD50S2SS1FA(H)
AD71S2SS1FA-1 AD71S2SS1FA(H)
AD50S2SS1FA AD50S2SS2FA
AD71S2SS1FA AD71S2SS2FA
AD50S2SS1FA-1 AD50S2SS1FA(H)
AD71S2SS1FA-1 AD71S2SS1FA(H)
420 1212 370 1170 185 960 90 1080 152

Table of Contents

Other manuals for Haier AD71S2SS1FA

Related product manuals