EasyManua.ls Logo

Haier AD71S2SS1FA - Page 99

Haier AD71S2SS1FA
210 pages
Print Icon
To Next Page IconTo Next Page
To Next Page IconTo Next Page
To Previous Page IconTo Previous Page
To Previous Page IconTo Previous Page
Loading...
Unité intérieure
17
Procédure d’installation
Sélection de la position de montage pour installer les unités intérieures
Conduite d’air
Sélectionnez des endroits appropriés dans lesquels la sortie d’air peut être envoyé à l’ensemble de la
pièce, et pratique pour poser le tuyau de connexion, le câble de connexion et le tuyau de drainage vers
l’extérieur.
Après avoir sélectionné l’emplacement de l’installation de l’unité, suivez les étapes suivantes :
1. Percez un trou dans le mur et insérez le tuyau de raccordement et le câble à travers un tube en PVC
passant à travers le mur acheté localement. Le trou dans le mur devrait être avec une pente descendante
extérieure d’au moins 1/100.
Chacune des gaines d’envoi d’air et de retour d’air devrait être fixé sur un panneau préfabriqué du plancher par un support
en fer. La distance recommandée entre le bord de la gaine de retour d’air et le mur est de plus de 150 mm.
Le gradient du tuyau d’eau condensée devrait être maintenu au-dessus de 1 %.
Le tuyau d’eau condensée devrait être isolé thermiquement.
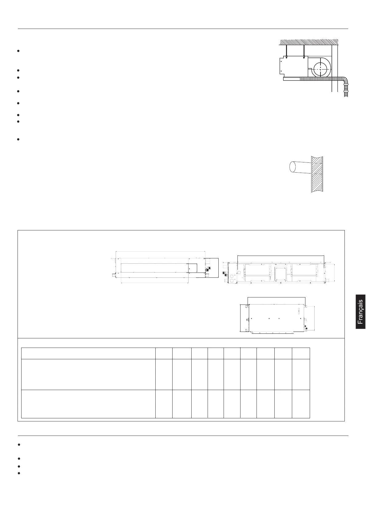
Lors de l’installation de l’unité intérieure couverte par le faux-plafond, la gaine de retour d’air doit être conçue et installé
conformément à la figure affichée.
Procédure d’installation
Dimension de l’installation.
Dimensions de l’unité intérieure (unité: mm)
B
A
C
H
I
D
E
F
G
Modèle d’unité
A B C D E F G H I
420 892 370 850 185 640 90 760 152
AD25S2SS1FA AD35S2SS1FA
AD25S2SS2FA AD35S2SS2FA
AD25S2SS1FA-1 AD25S2SS1FA(H)
AD35S2SS1FA-1 AD35S2SS1FA(H)
AD50S2SS1FA AD50S2SS2FA
AD71S2SS1FA AD71S2SS2FA
AD50S2SS1FA-1 AD50S2SS1FA(H)
AD71S2SS1FA-1 AD71S2SS1FA(H)
420 1212 370 1170 185 960 90 1080 152
La structure du plafond doit être suffisamment solide pour soutenir le poids de l’unité.
Le tuyau de la connexion, le tuyau de drainage et le câble de connexion devrait pouvoir passer à
travers le mur du bâtiment pour se connecter entre les unités intérieures et extérieures.
Le tuyau de connexion entre les unités intérieures et extérieures ainsi que le tuyau de drainage devraient être aussi court que
possible.
S’il est nécessaire d’ajuster la quantité à remplir de réfrigérant, veuillez vous référer au manuel d’installation joint à l’unité
extérieure.
La bride de raccordement devrait être fournie par l’utilisateur lui-même.
L’unité intérieure a deux sorties d’eau, et l’une d’elle est obstruée en usine (avec un capuchon en caoutchouc) Seul la sortie non
obstruée (côté de l’entrée et de la sortie du liquide) sera généralement utilisée pendant l’installation. Si cela est applicable,
chacune des sorties devrait être utilisée conjointement.
Un port d’accès doit être fourni pendant l’installation de l’unité intérieure pour la maintenance.
2. Avant de percer, vérifiez qu’il n’y a pas de tuyau ou de barre de renforcement juste derrière l’emplacement où vous
percez.
Le perçage devrait être évité aux positions proches de câbles électriques ou de tuyaux.
3. Montez l’unité sur un toît de bâtiment résistant et horizontal. Si le socle n’est pas ferme, cela provoquera du bruit, des
vibrations et des fuites.
4. Soutenez l'unité finement.
5. Changez la forme du tuyau de raccord, du câble de connexion et du tuyau de drain, afin qu’ils puissent passer à travers le trou
du mur facilement.
AD25S2SS1FA AD35S2SS1FA
AD50S2SS1FA AD71S2SS1FA
AD25S2SS2FA AD35S2SS2FA
AD50S2SS2FA AD71S2SS2FA
AD25S2SS1FA-1 AD25S2SS1FA(H)
AD35S2SS1FA-1 AD35S2SS1FA(H)
AD50S2SS1FA-1 AD50S2SS1FA(H)
AD71S2SS1FA-1 AD71S2SS1FA(H)

Table of Contents

Other manuals for Haier AD71S2SS1FA

Related product manuals