EasyManua.ls Logo

Haier FlexFit Pro Series - Page 61

Haier FlexFit Pro Series
121 pages
To Next Page IconTo Next Page
To Next Page IconTo Next Page
To Previous Page IconTo Previous Page
To Previous Page IconTo Previous Page
Loading...
57
FlexFit Pro
1U48LP2VHA
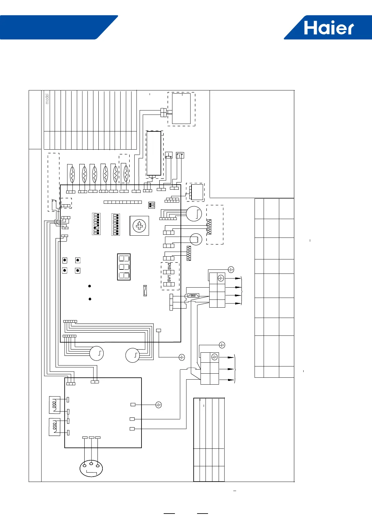
CIRCUIT DIAGRAM OF OUTDOOR UNIT
***************************************************************
Tcm:Temperature sensor of condenser’s middle position
Ts:Compressor suction temperature sensor
Te: Defrost tempreature sensor
Tao:Outdoor unit ambient temperature sensor
Td:Compressor dischargetemperature sensor
Th:Temperature sensor of hot wateroptional
E.E.V:Electronic expansion valve
LP:Low pressure switch
HP:High pressure switch
DERD:Demand response enabling device
(Only used in
Australia and New Zealand area
***************************************************************
BLK:black WHT:white RD:red Y/G:yellow/green
Explanation of abbreviations 1:
0
1
2
3
SW 8
Definition
model
model
4
5
6
7
8
9
A
B
C
D
E
F
Reserved
Reserved
Reserved
Reserved
Reserved
Reserved
L
POWER SUPPLY
N
Y/G
BLU
BLK
W
U
CO
M
P
RES
SOR
V
U
V
W
AC_L
AC_N
DRIVER
MODULE
L1
REACTOR2
CN605
L2
L2
FILTER&
L1
Y/G
L
E
D
1
L
ED
2
power
indicate
communication
indicate
T6.3A/250VAC
FU
SE1
CN
2
DRED
CN
1
CN
14
CN10
CN23
CN
21
CN
5
CN
3
CN
4
C
N6
CN
7
CN24
CN
8
CN
18
CN13
CN12
M
DC F
AN MOT
OR 1
M
DC F
AN MOT
OR 2
L
E
D
3
error&status indiate
SW1
O
N
4321
8765
SW6
O
N
4321
8765
CO
NT
R
O
L
B
O
A
R
D
0
F
E
D
C
B
A
9
8
7
6
5
4
3
2
1
S
W
8
S
W2
S
W3
S
W5
S
W4
MODE
UP
SET
DOWN
WHT
L
NSIG
M
E.E.V
CN19
SV1
CN17
SV2
CN20
CN16
CN9
RD
WHT
BLK
12V
GND
CN25
PWD
module
com1
C
N
15
C
N
11
module
com2
CN22
REACTOR1
Bottom heater
(BHTR)
Crankcase
heater
(CHTR)
4WV
Tcm
Td
Te
Ta
TS
TH
CENTRAL
CONTROLLER
/BMS DEVICE
Parameters monitor
adaptor /
Hydro unit
LP
Reserved
SW7
O
N
21
BLU:blue BRN:brown
1.Dashed parts are optional.marks①②③④
⑤⑥⑦are function in future.
2.SW6 is used for central control adress selection
refer to service manual to get more details
3.Once out of factory ,do not change the switches
of SW1,SW6,SW7,SW8 without technical guidence.
4.Can do the parameters checking work by button
switches SW2/SW3/SW4/SW5 and digital display
LED 3,refer to service manual to get more details.
5.For maintenance safety ,please operate after pow-
er supply cut off at least 3 minutes
SW1-1
SW1-2
SW1-3
SW1-4
SW1-5
SW1-6
SW1-7
SW1-8
ON
OFF
Manually
forced operation
valid
Manually
forced operation
invalid
Manually
forced
cooling
Manually
forced
heating
low stand
by power
cost
normal
stand by
cost
unit as
air conditi-
oner
water he-
ater or hea-
ting only
BMS
central
control
Refrigerant
R410A
Refriger
ant R32
Defrost
automatic
Defrost
by time
Not for
base
station
Base
station
application
NOTE:
SW7-1
OFF
OFF
OFF
ON
ON
OFF
ON
ON
SW7-2
Definition
DERD test selcetion 0
DERD test selcetion 1
DERD test selcetion 2
DERD non-test selcetion
external dry contact
input(
ON/OFF signal
GND
S
CN624
5V
BLK
GROUND
CN604
CN602
CN601
4WV:Four way valve
BMS:Building Management System
0150516939U
( UPPER MOTOR )
( LOWER MOTOR)
CON1
Y/G
HP
A
B
C1 C2
RD
BRN
BLK
RD
WHT
TO INDOOR UNIT
1
2
Y/G
3
REACTOR3
1U24LP2VHA
Reserved
Reserved
1U36LP2VHA
1U42LP2VHA
1U48LP2VHA
Reserved
Reserved
Reserved

Related product manuals