EasyManua.ls Logo

Haier HRF520BS - Sensor Layout Plan

Haier HRF520BS
43 pages
Print Icon
To Next Page IconTo Next Page
To Next Page IconTo Next Page
To Previous Page IconTo Previous Page
To Previous Page IconTo Previous Page
Loading...
22
SERVICE MANUAL
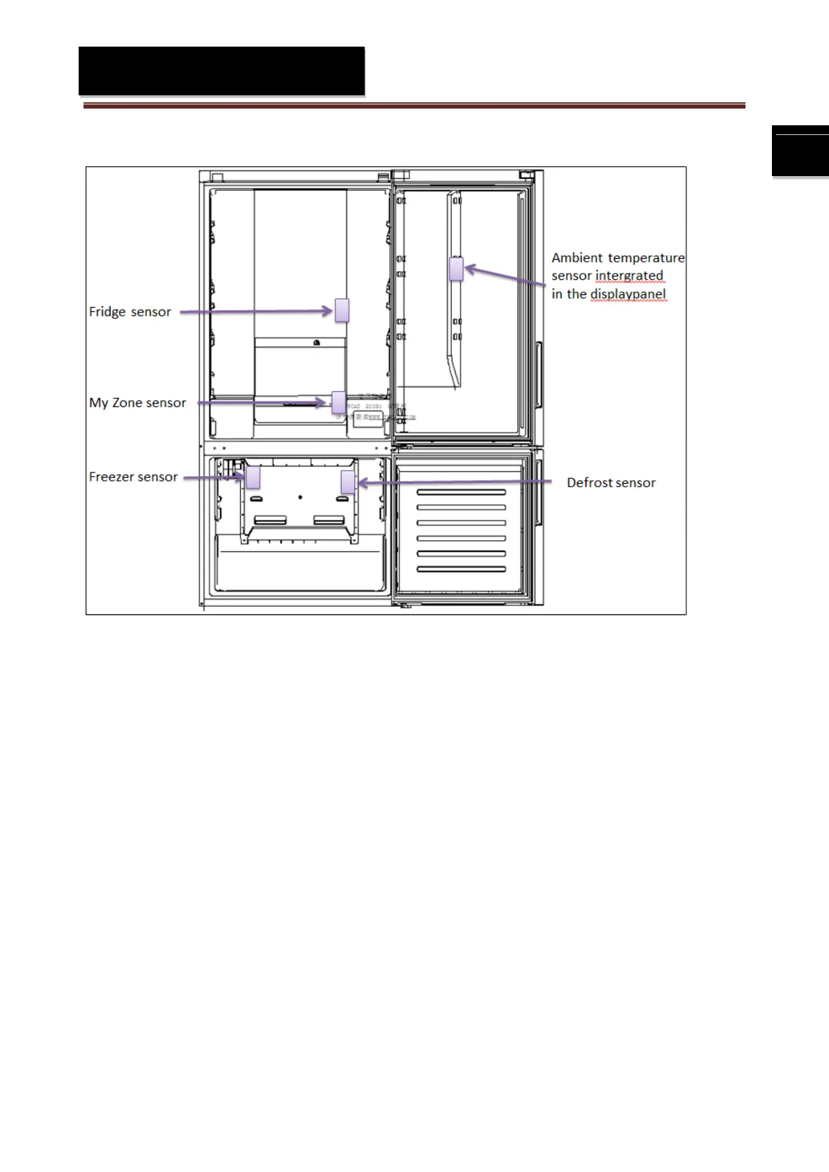
5-2 Sensor layout plan

Other manuals for Haier HRF520BS

Related product manuals