EasyManua.ls Logo

Haier HSU-07C03 - Wiring Diagrams

Haier HSU-07C03
78 pages
To Next Page IconTo Next Page
To Next Page IconTo Next Page
To Previous Page IconTo Previous Page
To Previous Page IconTo Previous Page
Loading...
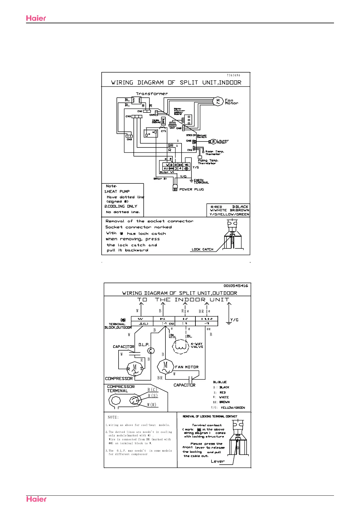
+6807& $SSHQGL[
72
'RPHVWLF$LU&RQGLWLRQHU
:LULQJ'LDJUDPV
,QGRRUXQLW
2XWGRRUXQLW

Related product manuals