EasyManua.ls Logo

Haier HTW5618DNMG - 10-Εγκατάσταση

Haier HTW5618DNMG
482 pages
To Next Page IconTo Next Page
To Next Page IconTo Next Page
To Previous Page IconTo Previous Page
To Previous Page IconTo Previous Page
Loading...
33
EL
10-Εγκατάσταση
10-Εγκατάστασ η
10.1 Aποσυσκευασία
Προειδοποίηση!
Η συσκευή είναι βαριά. Πάντοτε θα πρέπει να χειρίζονται τη συσκευή δύο
άτομα τουλάχιστον.
Κρατήστε όλα τα υλικά συσκευασίας μακριά από τα παιδιά και απορρίψτε
τα με φιλικό προς το περιβάλλον τρόπο.
Βγάλε τη συσκευή από τη συσκευασία.
Αφαιρέστε όλα τα υλικά συσκευασίας.
10.2 Περιβαλλοντικές συνθήκες
Η θερμοκρασία δωματίου πρέπει να είναι πάντα μεταξύ 10°C και 43°C, καθώς
μπορεί να επηρεαστεί η θερμοκρασία στο εσωτερικό της συσκευής και
η κατανάλωση ενέργειάς της. Μην εγκαθιστάτε τη συσκευή κοντά σε άλλες
συσκευές που εκπέμπουν θερμότητα (φούρνους, ψυγεία) χωρίς μόνωση.
10.3 Αντιστρεψιμότητα πόρτας
Πριν εγκατασταθεί μόνιμα η συσκευή, ελέγξτε τη σωστή θέση του μεντεσέ της
πόρτας. Εάν είναι απαραίτητο, δείτε την ενότητα ΑΝΤΙΣΤΡΕΨΙΜΟΤΗΤΑ ΠΟΡΤΑΣ.
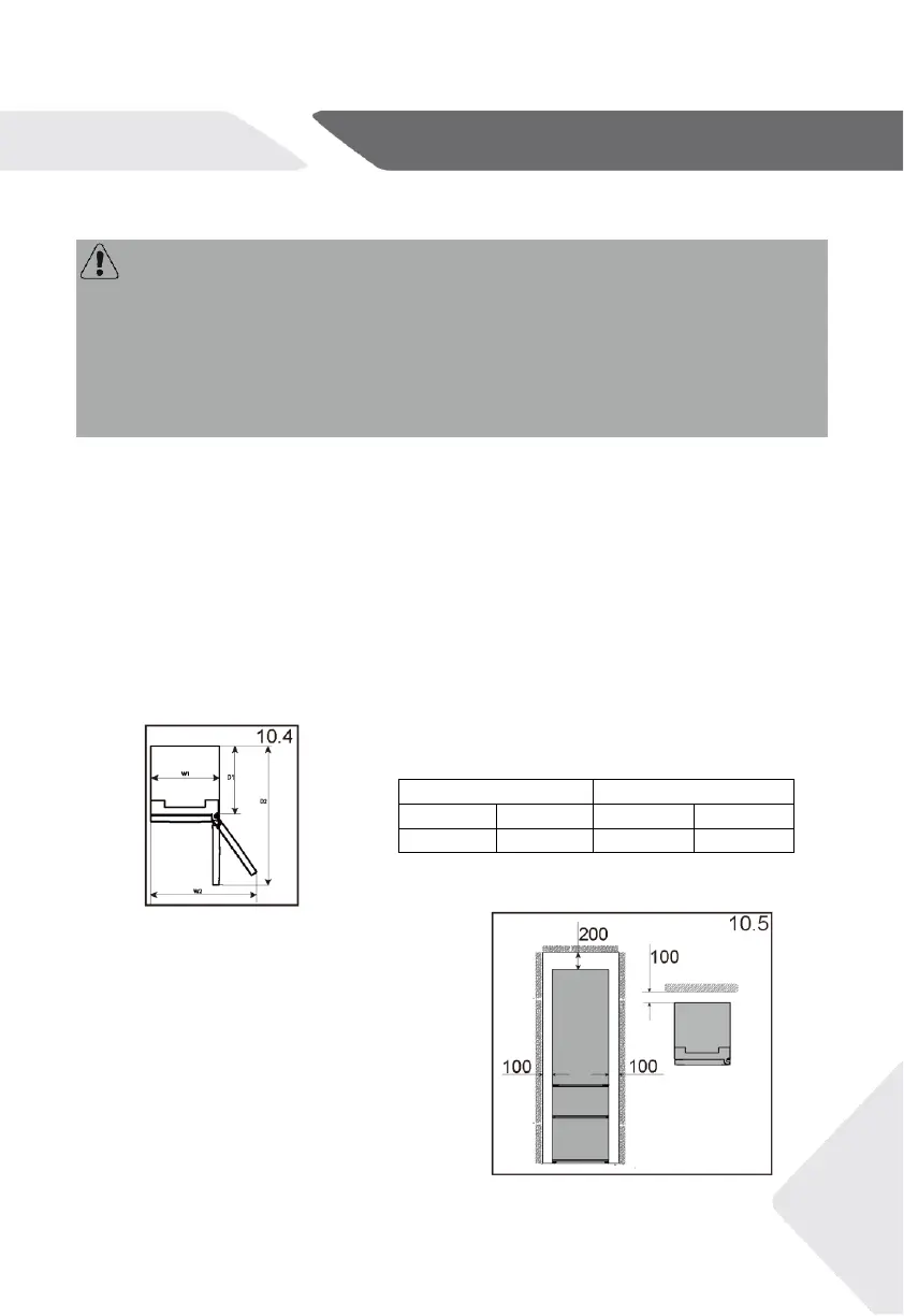
10.4 Απαιτήσεις χώρου
Απαιτούμενος χώρος όταν η πόρτα είναι ανοικτή (Εικ. 10.4):
Πλάτος συσκευής σε mm
Βάθος συσκευής σε mm
W1
W2
D1
D2
595
918
600
1220
10.5 Διατομή εξαερισμού
Για να επιτευχθεί επαρκής αερισμός
της συσκευής για λόγους ασφαλείας,
πρέπει να τηρούνται οι πληροφορίες
των απαιτούμενων διατομών
αερισμού (Εικ. 10.5).

Table of Contents

Related product manuals